A Montréal, la 'shoebox' réinventée

  • image
  • image
  • image
  • image
  • image
  • image
  • image
  • image
  • image
  • image
  • image

À l'origine du projet situé à Montréal, une ‘'shoebox', petite maison modeste d'un étage construite dans les années '20, qui dispose d'une façade aussi prosaïque que ses espaces intérieurs. Pour les architectes - Fugere Architecture et M-architecture - l’enjeu principal du projet est de savoir si cette typologie de maison, que certains considèrent comme patrimonial, doit être conservée et protégée. 

 

Après une phase d'idéation féconde, un principe de conception s’est imposé : préserver la façade principale d'origine et développer le projet de maison unifamiliale autour de cette dernière.

Utilisation optimale de la lumière naturelle

Le second principe ayant guidé la conception s’articule autour de l’utilisation optimale de la lumière naturelle dans les espaces intérieurs. En effet, les contraintes habituelles de construction de résidences mitoyennes contraignent à des espaces centraux dépourvus de lumière du jour. L’installation d’un grand puits de lumière au milieu de la maison s’est décidé naturellement, avec un escalier qui parcourt les 3 étages de la maison et qui aide à diffuser cette lumière dans les chambres, les espaces de vie et même au sous-sol.

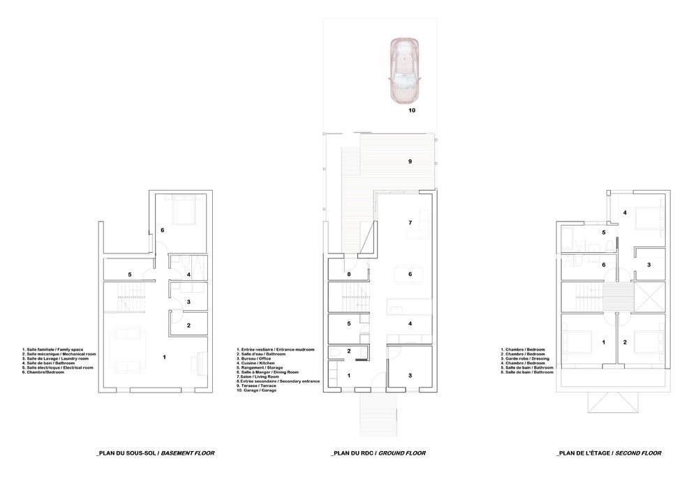
À partir de ces 2 postulats, l’organisation fonctionnelle a été établie assez rapidement, avec une salle de jeux, une chambre et les locaux techniques au sous-sol, les espaces de vie et un bureau au rez-de-chaussée et enfin 3 chambres et 2 salles de bain à l’étage.

Travail sur les façades

Au niveau des façades, la composition et certains items décoratifs en béton de la façade d’origine ont été conservée au rez-de-chaussée mais la maçonnerie a été refaite. Le mur au second étage a été réalisé en retrait par rapport au mur du rez-de-chaussée dans le but de garder une trace de l’ancienne 'shoebox' (voir à ce sujet le plan, en photo). Par ailleurs, une couleur de maçonnerie différente a été choisie à cet étage afin de rappeler davantage la typologie première de cette résidence. Sur les façades arrières, le bois brulé a été retenu comme revêtement pour son esthétisme et sa durabilité.

Au final, cette réflexion sur ces maisons 'shoebox', dans un contexte de croissance immobilière et de densification urbaine, a permis la construction d’une maison hybride, résolument moderne mais avec une trace du passé.

 

Source v2com

  • Partager cet article

Nos partenaires