A2M livre un nouvel îlot mixte et passif dans le quartier Nord de Bruxelles

  • image
  • image
  • image

A Bruxelles, le quartier Nord est en mutation : réhabilitation, requalification et construction neuve visent la création d’un quartier urbain renouvelé en profondeur. Le bureau A2M apporte sa pierre à l’édifice avec la réalisation d’un projet d’ampleur aux objectifs clairs : urbanité, mixités sociale et fonctionnelle, et durabilité.

Un programme important et des enjeux multiples

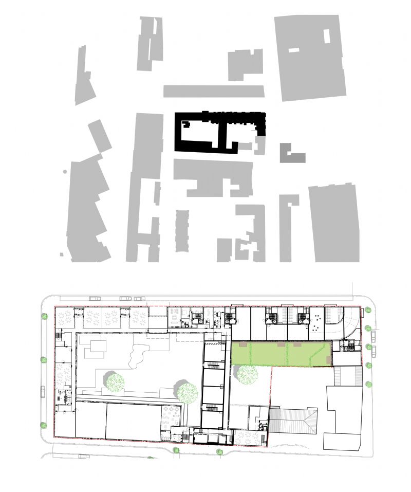
Situé entre le canal et la gare du Nord, le futur d’un îlot déconstruit a été confié par la Ville de Bruxelles au bureau d’architectes A2M, via une procédure d’appel d’offre. Le programme prévoyait la construction de 51 logements, d’une école et d’un local co-accueillantes. Le projet comprenait également la rénovation de bâtiments existants qui ont été intégrés à la démarche globale. Le projet soulevait par ailleurs un enjeu urbanistique important : l’îlot initial n’étant pas fermé, la lisibilité de la structure urbaine en était fortement affaiblie. Ce constat a alimenté les réflexions d’A2M au niveau de l’implantation et des gabarits à adopter pour rendre à la rue son caractère urbain.

 

Densité et vie de quartier

Le projet Simons-Anvers aborde la problématique de la densité à inscrire dans des gabarits imposés et limités. L’organisation du projet et sa volumétrie respectent les prescriptions du PPAS. Ainsi, une moitié d’îlot est occupée par un ensemble bâti comptant 5 étages et accueillant les 51 logements, tandis que la deuxième partie de l’îlot présente une partie basse dans laquelle vient se loger l’école. Le projet instaure une certaine unité tout en permettant à chacune des parties un fonctionnement différencié et une identité propre. L’implantation des bâtiments permet de conserver des espaces libres de taille relativement importante et, quand c’est possible, végétalisés. L’intérieur d’îlot a été traité de façon à créer des espaces de rencontre pour les résidents et, de façon plus large, pour les riverains. Dans cette même dynamique, divers espaces de l’école (salle de sports, bibliothèque, ...) sont mis à disposition pour des activités de quartier le soir et le week-end. Ceci renforce la volonté d’ancrer le projet dans son contexte et de permettre le développement d’une vie de quartier, maillon indispensable d’une durabilité globale.

 

Le bien-être en ligne de mire, à faible coût

Le bien-être des occupants a été au cœur des préoccupations lors de la conception du projet. A2M a tenté de privilégier autant que possible la qualité des espaces sous tous ses aspects : fonctionnalité, qualité architecturale, luminosité naturelle, performance acoustique et, bien entendu, thermique. Le projet proposé par A2M est entièrement passif, que ce soit pour la nouvelle construction ou pour la partie rénovée. L’expérience dans le domaine des architectes d’A2M et la collaboration immédiate entre concepteur et constructeur, imposée dans l’appel d’offre, a permis d’atteindre le standard passif au coût très modéré de 1100€/m2 HTVA, soit pour 10% de moins qu’un projet non passif ! Pour A2M, cette performance est le fruit d’une ligne de conduite architecturale guidée par la volonté de simplicité, d’optimalisation et de durabilité appliquée à chacun des choix qui font un projet d’architecture.

 

La durabilité à plusieurs visages

Le projet Simons-Anvers tente de répondre aux différents aspects de la durabilité. Avec sa certification passive, l’économie d’énergie est bien entendu présente grâce à un ensemble de dispositions (isolation, gestion de la ventilation, optimisation des apports solaires, usages des ressources naturelles via des panneaux solaires thermiques, …), mais n’est pas la seule facette abordée de la durabilité. Ainsi, la question de la gestion de l’eau de pluie et son utilisation a largement été étudiée avec, pour résultat, la mise en œuvre de 900 m2  de toiture végétalisée, en plus des 945m2 de jardin, et la présence de citernes pluviales de grande capacité. Cela assurera une bonne infiltration des eaux de pluie et l’approvisionnement des toilettes de l’école primaire. Les matériaux employés ont également fait l’objet de recherches pour limiter au maximum la dépense d’énergie grise et les problèmes de pollution intérieure. Environ 50% des matériaux utilisés sont en effet classés en dessous du niveau 3 selon la classification NIBE. Au vu des ces dispositions, il n’est sans doute pas étonnant que le projet ait été lauréat du concours BATEX qui distingue les bâtiments exemplaires à Bruxelles et en Wallonie. Enfin, notons que le projet a également été choisi par la Région Bruxelloise pour faire partie des 3 projets pilotes dans le cadre de l’initiative européenne PassREG qui promeut l’architecture passive et l’emploi des énergies renouvelables en Europe.

  • Partager cet article

Nos partenaires