C3A : Les installations électriques du bâtiment avec Revit

  • image
  • image
  • image

Les installations électriques dans les bâtiments forment une partie très spécifique de la conception et de la réalisation des projets de construction. Cet aspect est abordé de manière aussi réaliste que possible dans le modèle BIM-Revit grâce aux extensions C3A-Revit, de sorte qu’autant les architectes-concepteurs que les bureaux d’études et les exécutants puissent concevoir, mettre au point, analyser et réaliser conjointement l’équipement électrique.

En collaboration étroite entre C3A et WITAS, tout a été préalablement bien préparé pour pouvoir aborder la question de manière optimale dans Revit, puis le nouveau développement, très utile pour les extensions C3A et Revit, a été lancé via une série de workshops en novembre 2015 avec une nécessaire explication pour tous les utilisateurs C3A-Revit.

Dans beaucoup de projets, l’architecte-concepteur traduira d’abord les attentes du maître d’ouvrage dans un schéma de conception, avec indication sur les plans des installations souhaitées. En outre, il sera indiqué où précisément doivent être prévus quels éléments d’éclairage ainsi que les interrupteurs correspondants. La position des prises et des points de raccordement pour les télécommunications et les raccordements au réseau seront indiqués, et encore une série d’autres équipements pour l’installation électrique. L’architecte peut peut-être bien se limiter à un schéma brut, mais (certainement dans les projets plus gros et plus complexes) l’ingénieur et l’exécutant vont le mettre au point minutieusement, avec la position exacte de tous les points de raccord, les conduits, les appareils, jusqu’au schéma unifilaire.

Dans un modèle BIM virtuel avec Revit et avec toutes les sortes d’équipements spécifiques à Revit MEP/Systems, c’est beaucoup plus facile à réaliser que dans un dessin CAD traditionnel. Et il y existe toujours plus d’expériences au sujet de la manière multidisciplinaire optimale dont cela peut se passer dans Revit, en collaboration entre les différents partenaires de la construction.

La collaboration entre les disciplines Architecture/Construction/Structure et MEP/Systèmes est généralement aussi une collaboration entre des partenaires de la construction à des emplacements différents, avec d’autres méthodes de travail, d’autres modules de calcul, etc. L’interaction entre ces partenaires, avec une méthode bien contrôlable, peut mieux se passer grâce à des modèles liés les uns aux autres. Grâce aux outils de collaboration Revit (tels que Copy/Monitor), chacun garde le contrôle sur son propre modèle Revit et sur les adaptations/suggestions des autres partenaires.

 

Préparatifs dans le gabarit C3A-Revit

Un certain nombre de prédispositions dans le gabarit Revit et une série de fichiers « Revit.rfa » bien préparés étaient souhaitables pour mettre au point de manière fluide et pratique cet équipement électrique ajouté à l’architecture. Plusieurs tableaux ou tables de métrés ont été préparés dans le gabarit : une série de tables « EL_* » aide pour toutes sortes d’aperçus et de moyens de contrôle, les quelques tables « ME » sont destinées à l’extraction du métré conformément à la méthode C3Admin.

Il y a également des panneaux de tables disponibles dans Revit Full, mais pour générer automatiquement un schéma unifilaire, il faut encore un logiciel supplémentaire… mais Witas dispose déjà de cela dans le « Witas-be-localiser ».

 

BERSnl Elek Families – via Witas

Quelques nouvelles familles pour mettre au point une installation électrique limitée font déjà partie du nouveau gabarit de C3A. Nul doute que ceci sera encore complété après quelques feedbacks des membres du Userclub C3A… Ce sont aussi les premiers RFA dans les extensions C3A avec une dénomination conforme aux standards Revit « hollandais/belges » à venir, qui poussent à un renforcement progressif des dispositions pour les dénominations et apparentés. Voilà pourquoi ce préfixe « BERSnl » dans ce composant Revit

 

Exemple C3A

Pour tester un certain nombre de choses et pour avoir un exemple pratique, le rez-de-chaussée du bâtiment C3A (dans la version Revit récente, disponible via le cours de base Revit de 6 jours chez C3A) a été équipé avec l’équipement électrique essentiel. Tout d’abord, l’architecte-concepteur dessine le tableau de répartition, les prises, les interrupteurs et les luminaires là où ils sont souhaités…

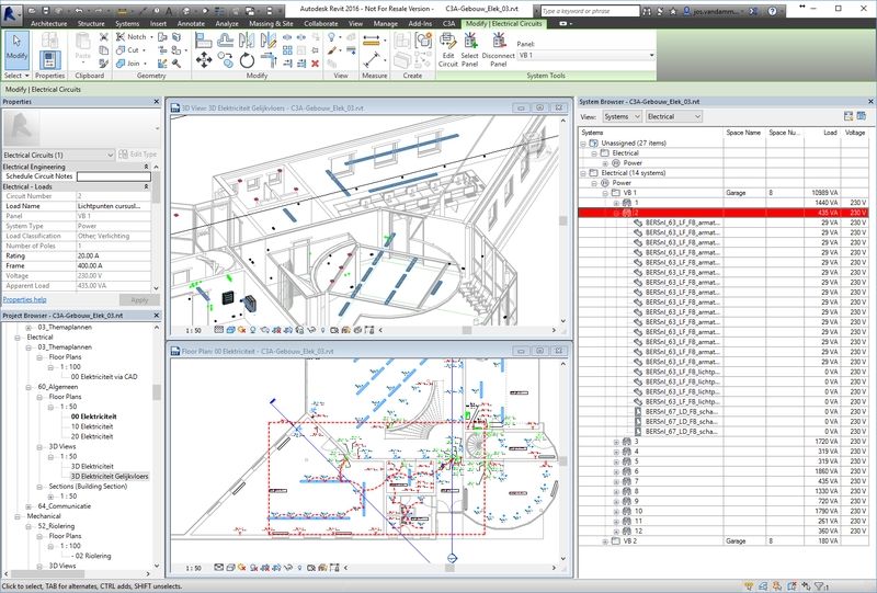
Dans Revit MEP/systèmes, les techniques spéciales sont possibles avec les familles de la catégorie Équipement Électrique, Installation Électrique, Dispositif Électrique et Installation d’Éclairage. Le placement de l’armoire de répartition « la plus intelligente », des points d’éclairage et interrupteurs, des prises et similaires, via ces RFA, peut aussi bien être fait avec Revit LT qu’avec un Revit Full, mais l’utilisation complète de l’information BIM dans ce modèle est effectivement prévue pour le Revit Full MEP/systèmes… Les symboles Élec sont vraiment mis au point comme des composants 3D BIM qui se dessinent convenablement en 2D (avec un affichage Faible/Moyen/Élevé au choix) et avec toute l’information BIM nécessaire et souhaitée.

 

Collaboration multidisciplinaire architecte-concepteur, ingénieur technique et exécutant

La trame est telle qu’un bureau d’études techniques peut continuer à travailler avec le contenu élaboré par l’architecte-concepteur. Witas a pour cela un gabarit Revit en propre, avec des équipements spéciaux pour l’Ingénierie-système typique. Le modèle architectural sera en outre lié et connecté à l’environnement de travail du bureau d’études et grâce à « Copy/Monitor », toute la géométrie nécessaire sera reprise. L’étude de cette technique (Élec – dans ce cas) est examinée en détail avec les services d’analyse et de calcul nécessaires et les adaptations et ajouts nécessaires sont appliqués.

La conception électrique peut encore être optimalisée par le bureau d’études. On peut ainsi faire des études d’éclairage, générer des schémas unifilaires, etc. Le résultat final du modèle technique peut à la fin être ramené en tant que lien dans le modèle de construction architectural, afin qu’un dossier d’exécution ou as-built correct puisse être produit.

Pour plus d’informations, voir le site : http://www.c3a.be/nieuws/c3a-wijzer/elektrische-installaties-gebouwen-met-revit

Arch. Jos Vandamme

Source C3A

  • Partager cet article

Nos partenaires