Comme une accueillante maison : POLO conçoit un siège social transparent pour l'entreprise de construction Van Laere

  • image
  • image
  • image
  • image
  • image
  • image
  • image
  • image
  • image
  • image
  • image
  • image
  • image
  • image
  • image
  • image
  • image
  • image
  • image
  • image

Avec le nouveau siège social de l’entreprise de construction Van Laere NV à Zwijndrecht, le bureau d’architecture POLO a conçu un bâtiment de bureaux indépendant qui allie les exigences fonctionnelles d’un bureau moderne à une vision architecturale axée sur la rencontre et la collaboration. Le bâtiment est conçu comme une « maison pour le travail et les rencontres » : une boîte en verre transparente qui effleure subtilement le sol. Grâce à sa généreuse ouverture et à son cadre structurel clair, il offre des espaces de bureaux efficaces, tout en intégrant des cloisons modulables pour répondre aux besoins futurs.

Un bâtiment ultramoderne et durable

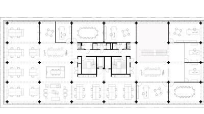
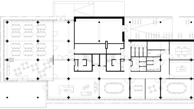
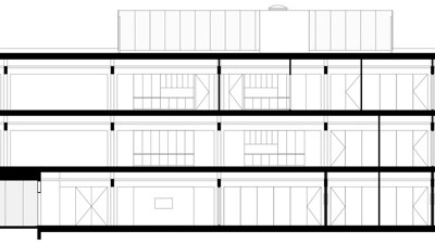
Situé à quelques pas de l’ancien siège social et des entrepôts de Van Laere, un entrepreneur général réputé, ce tout nouveau bâtiment est implanté dans un parc d’activités. POLO y a réalisé 3.300 m² d’espace de bureau ultramoderne répartis sur trois étages. Le bâtiment regroupe les services administratifs, des salles de réunion et des espaces d’interaction avec les clients et partenaires.

Volume suspendu

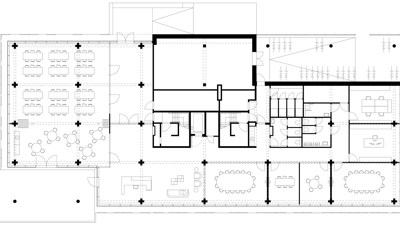
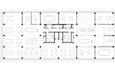
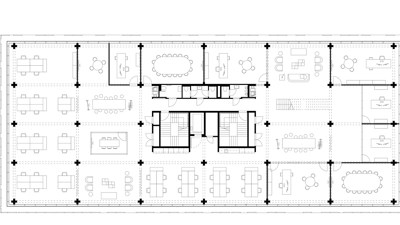
Inspiré par les villas urbaines belges traditionnelles des 19ᵉ et début 20ᵉ siècles, ce bâtiment de bureaux se présente comme une maison représentative et accueillante. Sa structure repose sur une grille simple de colonnes et de poutres, permettant un espace de bureau ouvert tout en offrant une flexibilité pour l’aménagement en départements distincts ou en espaces fermés. Les plans peuvent être aisément adaptés à l’évolution des besoins.

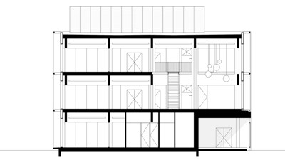
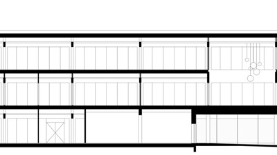
Le bâtiment repose sur une dalle en béton avec un bord en porte-à-faux qui le détache visuellement du paysage. Cette dalle semble prolonger le revêtement de la zone de parking en dessous. Sur deux coins opposés, la dalle se plie pour former un mur et un plafond abritant une station de vélos à l’entrée, ainsi qu’une terrasse pour les employés.

Écrans métalliques perforés

Le caractère flottant du bâtiment souligne son apparence omnidirectionnelle et indépendante, comme un objet dans le paysage. Un aménagement paysager stratégique protège le bâtiment de l’autoroute voisine, guide les visiteurs vers l’entrée et préserve l’intimité de la terrasse. Les parkings, situés entre des arbres matures, utilisent un revêtement perméable favorisant l’infiltration de l’eau et réduisant l’effet d’îlot de chaleur.

Le traitement des façades renforce la légèreté du design. Le volume rectangulaire est habillé d’un motif d’écrans métalliques perforés, dont la densité varie selon l’orientation des façades. Par exemple, la façade sud, plus exposée au soleil, comporte davantage d’écrans que la façade nord. Cette couche translucide adoucit le contour du bâtiment et lui permet de s’intégrer harmonieusement au paysage.

Un système structurel flexible

Les écrans pare-soleil en acier sont légèrement décalés par rapport à la façade vitrée, créant ainsi des espaces pour des plateformes d’entretien externes. Ces plateformes, dotées de sols grillagés, entourent l’ensemble du bâtiment. Tant les écrans en acier que la structure en aluminium de la façade sont réalisés dans une teinte vert foncé, également utilisée à l’intérieur pour les balustrades, les escaliers et d’autres éléments métalliques.

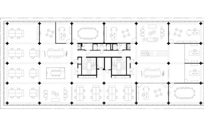
Le système structurel repose sur une grille de poutres et colonnes configurées en cadres portiques bidimensionnels, un agencement typique des bâtiments industriels. Ici, ces cadres sont utilisés dans deux directions, avec quatre cadres se rejoignant dans des colonnes en croix aux points d’intersection. Ces colonnes expressives structurent l’espace, soulignent les travées rectangulaires et offrent des points d’ancrage naturels pour les cloisons.

Une grande flexibilité d’aménagement

Cette structure en grille permet une flexibilité maximale, rendant le bâtiment facilement reconfigurable ou partiellement louable. Une colonne centrale abritant les sanitaires, les locaux techniques et les circulations verticales stabilise la structure sans nécessiter de renforts supplémentaires.

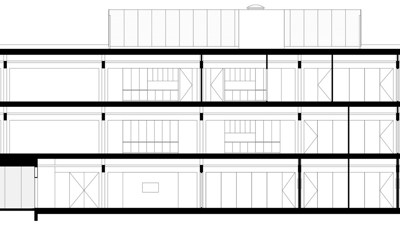
Dans ce système flexible, il est possible de retirer des sections de plancher pour créer des mezzanines, favorisant ainsi des connexions spatiales entre les étages. Un escalier en acier imposant relie ces niveaux, encourageant l’interaction et renforçant la dynamique de l’environnement de travail.

Matériaux et durabilité

Le bâtiment combine des poutres et colonnes en bois lamellé-collé (glulam) avec des dalles de béton. L’utilisation du bois contribue aux ambitions de durabilité tout en conférant une atmosphère chaleureuse et naturelle à l’intérieur.

Le choix varié mais sobre des matériaux fait de ce bâtiment une vitrine du savoir-faire de Van Laere NV. La colonne centrale en béton brut, les colonnes et poutres en bois, les écrans pare-soleil en acier et la façade vitrée illustrent leur expertise. Le bâtiment ne se limite pas à être un espace de bureaux fonctionnel, il sert également de carte de visite pour son maître d’ouvrage.

Source POLO

  • Partager cet article

Nos partenaires