Comment concevoir une école du rail au-dessus de tunnels de métro ?

  • image
  • image
  • image
  • image

Nous vous en avons déjà parlé sur architectura, l’Infrabel Academy, première « école du rail » belge en son genre, a ouvert ses portes à Molenbeek-Saint-Jean. Un emplacement très particulier pour un bâtiment qui a constitué un véritable défi technique pour les architectes et les ingénieurs en charge de ce projet hors-normes. Nous en parlons avec Anne Dengis et Pauline Schils, du bureau Canevas architectes et ingénieurs.

 

 

L’Infrabel Academy a trouvé place sur une ancienne friche industrielle très étroite en bordure de la ligne 28, au sein d’un quartier densément peuplé et dominé par des tours de logements sociaux des années ‘60. Le nouveau bâtiment est situé entre les stations de métro Beekkant et Gare de l’Ouest et à proximité d’anciens hangars industriels.

L’équipe de conception ayant remporté le concours lancé par Infrabel en 2016 est composée des bureaux Atelier Kempe Thill et Canevas. « Nous avons été sollicités par différents bureaux pour ce concours parce que nous étions occupés à terminer d’autres bâtiments et projets pour Infrabel et que nous étions en phase avec la façon de penser et de travailler de ce maître d’ouvrage », explique Anne Dengis. « Et les références de l’Atelier Kempe Thill complétaient très bien les nôtres. »

 

Un programme complet

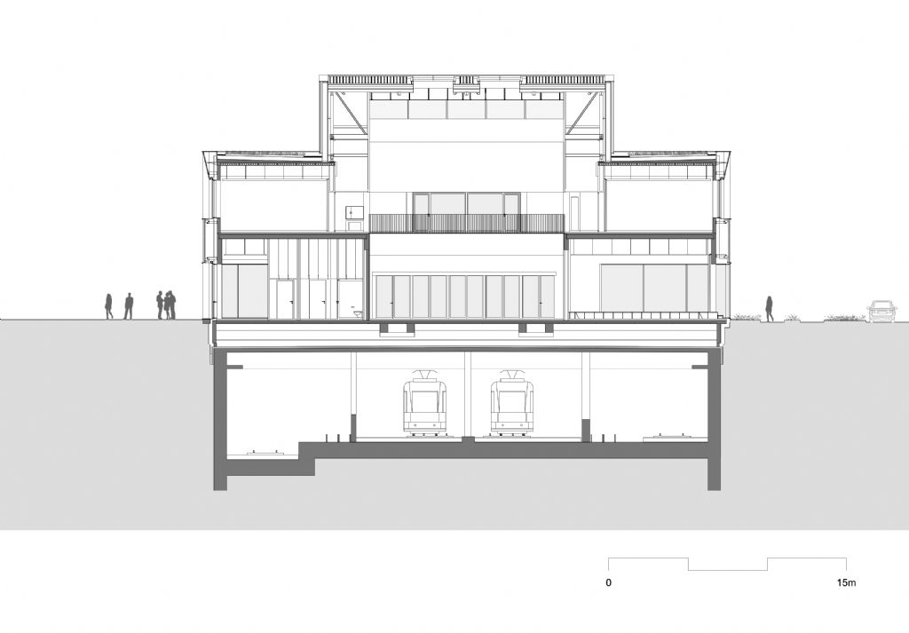
Le site comporte plus de 8700 m² d’espaces intérieurs et près de 7500 autres en extérieur. Les utilisateurs sont accueillis dans un porche traversant qui, à l’image d’une rue intérieure, permet l’accès aux espaces pratiques du rez-de-chaussée d’un côté et conduit, de l’autre, à la zone théorique abritant sur deux niveaux, une salle polyvalente d’une capacité de 200 personnes, une cafétéria, 40 salles de classe, des vestiaires, des sanitaires et un flex office prévu pour 50 personnes. A l'extérieur, dix installations - tracé de voies, caténaires à hauteur d'homme, équipement de signalisation, mât GSM-R, équipements ICT, passage à niveau, ‘train-école’ - ont été aménagées afin que les élèves puissent apprendre en toute sécurité.

Le bâtiment est structuré autour de trois atriums baignés de lumière naturelle grâce aux sheds vitrés installés en toiture. Répartis sur la longueur du bâtiment, le premier marque l'entrée de la section théorique, le deuxième celle de la zone pratique tandis que le troisième crée un lien visuel intérieur entre les ateliers de formation pratique du rez-de-chaussée et les salles d’enseignement théorique situées à l’étage. L’implantation des locaux techniques, des gaines et des trémies d’ascenseur est étudiée de manière à maximiser les vues traversantes au sein du bâtiment et vers l’extérieur.

 

Un bâtiment construit sur trois tunnels de métro

Impliquant des études vibratoires et acoustiques pointues – notamment à la jonction entre la superstructure et le bâtiment– un défi technique majeur a été relevé en implantant l’Infrabel Academy au-dessus de trois tunnels de métro. « La Direction de l’Infrastructure des Transports Publics, propriétaire des installations du métro, nous a imposé que le bâtiment ne s’appuie pas du tout sur la toiture des tunnels de métro passant sous le bâtiment », précise Pauline Schils.

« L’implantation du bâtiment a donc été intimement conditionnée par la configuration des parois moulées du métro entre lesquelles d’importantes poutres transversales ont été créées, formant une superstructure indépendante de la toiture existante du métro. Et, malgré le recours à des solutions constructives légères, nous avons dû prévoir des colonnes intermédiaires pour reporter les efforts sur le radier des tunnels existants, car il n’était pas possible de réaliser le tout en un seul franchissement. Nous avons également pris en compte la possibilité qu’une rame de métro déraille et fauche l’une ou l’autre colonne ; les désordres consécutifs à cet accident ne pouvant ni causer la ruine des tunnels ni l’effondrement du bâtiment  Via une étude de progressive collapse, différents scénarios de déraillement ont été mis au point pour déterminer quelles colonnes seraient touchées, en fonction du lieu du déraillement et de la vitesse du train, et  analyser comment le bâtiment pourrait se déformer sans s’écrouler. La largeur et la trame du bâtiment ont donc été dictées par ce qui se passait en sous-sol. »

La collaboration fructueuse menée entre les architectes et les ingénieurs ont permis l’édification d’un bâtiment de grande qualité architecturale intégrant subtilement des contraintes techniques majeures.

Anne Dengis conclut : « Il est inévitable que les contraintes du lieu et du site influencent de manière fondamentale, a fortiori dans un milieu urbain, la conception d’un projet. On ne peut pas dissocier les deux, l’objet et le design d’une part et toutes les contraintes et les opportunités d’autre part. Cette approche constitue une des bases de tous les projets de notre bureau. »

Quant au Learning Center, par son architecture, il véhicule parfaitement l’esprit d’entreprise d’Infrabel. Les espaces intérieurs généreux favorisent la mixité et les échanges. Ses matériaux et sa typologie l’ancrent au tissu urbain. Et la dynamique des façades tisse un lien spirituel avec le chemin de fer.

 

  • Partager cet article

Nos partenaires