Coup de projecteur sur Pacheco 32, lauréat RENOLAB.B 2022

  • image
  • image
  • image
  • image
  • image
  • image
  • image

Ce 25 avril 2023 étaient mis à l’honneur les premiers lauréats de l’appel à projet RENOLAB, l’un des outils de la stratégie Renolution de la Région de Bruxelles-Capitale. Lancé fin 2021, il est un véritable laboratoire de projets de rénovation durable et circulaire, de la maison unifamiliale au grand projet mixte. En 2021-2022, 90 candidatures ont été reçues. 57 projets (47 pour le volet B de RENOLAB et 10 pour le volet ID) ont été sélectionnés et ont reçu un important soutien technique et financier. Parmi ceux-ci, on retrouve « Pacheco 32 », la rénovation lourde de l’ancien bâtiment de la Monnaie Royale en un ensemble contemporain de programmation mixte incluant bureaux, logements en co-living, espaces commerciaux et horeca.

Le projet, conçu par architectesassoc+ pour le compte de Befimmo, respecte le patrimoine tout en ouvrant le bâtiment au quartier. Il est aussi ambitieux des points de vue énergétiques et environnementaux. La conception intègre une réflexion sur le caractère évolutif, la pérennité d’usage et le choix des matériaux selon leurs impacts carbone et sanitaires.

Mattias D'Hooghe, architecte-partner chez architectesassoc+ nous en dit plus. « Pour avoir un bon projet durable, il faut d’abord un maître d’ouvrage avec suffisamment de volonté et d’ambitions dans le domaine, ce qui est clairement le cas de Befimmo (ndlr : on retrouve Befimmo notamment derrière le projet ZIN). Quant à notre atelier d’architecture, il est pionnier en matière de construction durable depuis le début des années 2000, avec AEROPOLIS qui a été au moment de sa conception le plus grand immeuble de bureau passif d’Europe, détrôné par ELIA 3 ans plus tard. »

 

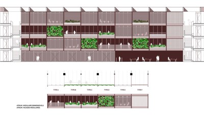
Pérenniser l’existant en apportant de la flexibilité

Le résultat projeté est ouvert et transparent, là où le bâtiment d’origine (où l’on frappait monnaie) apparaissait fermé et opaque, à l’image du coffre-fort qu’il était… Désormais, grâce à de nouvelles ouvertures, l’intérieur sera baigné de lumière naturelle. Tout l’art dans ce type de projet consiste à conserver un maximum pour ne remplacer que ce qui n’offre pas de garanties suffisantes pour la vie du bâtiment sur le long terme, notamment grâce à une flexibilité maximale. Quand on lui demande ce qu’il pense être les raisons de cette mise à l’honneur de Pacheco 32 par RENOLAB, Mattias D’Hooghe répond : « Nous avons travaillé selon une approche holistique. Le projet est (très) bas carbone puisque nous gardons 90 % du béton du bâtiment existant, pour ne remplacer que les noyaux, qui n’étaient pas adaptés au projet car ne permettant pas une réversibilité à long terme. L’agencement des cloisons est pensé pour une modularité optimale, ce qui permet aussi d’offrir une flexibilité/réversibilité dans le temps. Et dans les complexes, comme ceux des façades, tout est démontable jusqu’au niveau des éléments ; on est vraiment dans une philosophie circulaire telle que préconisée par la philosophie BAMB ». Le bâtiment est alors considéré comme un stock de matériaux, susceptibles d’être démontés pour réemploi dans un autre projet. On le voit, l’enjeu dépasse de loin les seuls aspects énergétiques.

 

UTILISER DES Matériaux biosourcés

Les ajouts sont réalisés quant à eux en matériaux biosourcés, que ce soit l’étage supplémentaire (en bois), les épaisseurs impressionnantes d’isolant appliquées de l’intérieur (fibres végétales, ce qui a demandé des études poussées pour éviter les risques de condensation) ou encore toute l’ossature du nouveau mur-rideau (également en bois). « Nous sommes partis sur des matériaux les moins impactants possible au niveau de leur cycle de vie. Jadis, on avait tendance à utiliser des matériaux d’origine pétrochimique mais, à présent, des alternatives biosourcées existent. Les mentalités évoluent dans le bon sens. Les fabricants fournissent spontanément fiche technique ou déclaration d’impact environnemental, des plateformes de matériaux de réemploi comme Opalis se développent, tout cela nous donne une autre perspective qu’il y a encore quelques années. Et puis, outre la nature durable des matériaux, il faut respecter une certaine séquence dans la pose des différentes couches, justement pour permettre la démontabilité. »

 

Aider au changement et le rendre visible

Si RENOLAB se veut une vitrine de projets inspirants comme l’a été avant lui l’appel à projets Batex, il peut aussi aider concepteur et maître d’ouvrage à garder le cap. Mattias D’Hooghe : « Pour nous qui avons investi dans ce dossier RENOLAB, l’appel à projet nous challenge, en plus d’apporter une certaine visibilité. Les ambitions de départ sont parfois revues à la baisse en phase chantier. Les subsides RENOLAB alloués aux projets primés le sont sur base de promesses, mais un suivi est réalisé en cours du chantier. Ainsi, RENOLAB nous aide à garder intactes nos ambitions. »

Comme tous les autres projets primés lors de cette première « cuvée » RENOLAB.B, que vous pouvez retrouver ici, Pacheco 32 est une source d’inspiration pour les candidat·e·s de demain. N’hésitez donc pas à participer. La procédure à suivre est expliquée sur cette page. Le prochain jury se réunira le 10 octobre 2023 pour statuer sur les candidatures déposées avant le 10 septembre. Notez également que RENOLAB comprend un second volet, nommé RENOLAB.ID, qui vise à soutenir les idées, les projets (en cours ou à créer), les outils et mécanismes (financiers, sociaux, économiques, techniques, etc.) qui permettent de lever les freins à la rénovation.

  • Partager cet article

Nos partenaires