Gérard-Lemaire & Associés donne forme au centre de formation du FOREM à Flémalle

  • image
  • image
  • image
  • image
  • image

A Flémalle, en région liégeoise, le FOREM a confié la construction de son nouveau site de formation au bureau Gérard-Lemaire & Associés. Au départ d’une commande sans prétentions, les architectes sont parvenus à insuffler les détails qui font d’un bâtiment un projet d‘architecture.

 

De la fonction à l’architecture grâce à…

Pour ce projet, le bureau d’architectes Gérard-Lemaire & Associés intervient dans le cadre d’une demande simple : la conception d’un bâtiment industriel accueillant un centre de formation aux métiers de la construction. La fonctionnalité et la sobriété budgétaire sont de mise. L’édifice doit comprendre une partie administrative avec des salles de classe et un grand hall polyvalent pour l’apprentissage pratique (maçonnerie, pavage, etc). Les architectes font le pari de faire évoluer ce programme strictement fonctionnel en un projet qui intègre d’autres aspects de la réflexion architecturale. La relation au contexte, la qualité visuelle et l’application de certains principes bioclimatiques sont autant d’intentions qui poussent le projet plus en avant, et qui donnent du sens à ce qui aurait pu être un hall industriel sans âme.

 

… une logique constructive sans fard

La construction est on ne peut plus rationnelle. Son efficacité a permis de ne pas dépasser les limites budgétaires et a apporté une lecture claire des différentes fonctions du bâtiment. La construction présente un seul niveau de plain-pied. Elle est scindée en deux parties contigües et abritées sous une seule et même toiture. La partie occupée par les salles de classe et les fonctions administratives est construite en maçonnerie de béton et recouverte d’un bardage en bois vertical. Le hall, dédié aux exercices pratiques et à l’entretien des machines, emploie quant à lui une structure de portiques en béton et en bois lamellé-collé, complétée par des caissons métalliques en façade. Par beau temps, les grandes portes sectionnelles permettent d’ouvrir les activités sur l’extérieur. Enfin, la grande toiture qui recouvre l’ensemble se pose sur les poutres en bois lamellé-collé dont la présence rythme naturellement les espaces.

 

… une approche créative du bioclimatisme

A partir de l’équation de départ, les architectes du bureau Gérard-Lemaire & Associés ont souhaité affiner l’étude volumétrique du projet. L’intégration de principes bioclimatiques a donné les premières directives : en façade sud, un généreux débordement de toiture protège le bâtiment de la surchauffe. Au niveau des salles de classes, le bâtiment marque un large retrait. Le débordement de toiture se transforme alors en un large auvent qui surplombe l’entrée de l’édifice et en marque très clairement l’usage. Dans le hall, l’éclairement naturel est assuré par les surfaces vitrées qui courent tout au long de la façade, sous le débordant de toiture. Cette dernière est profilée pour récolter les eaux de pluie, utiles au nettoyage quotidien des machines de chantier. Au fil de la conception, la toiture est devenue l’élément principal du projet sous lequel se développe le bâtiment. A la fois fonctionnelle et dynamique, c’est la toiture qui donne au projet son caractère par sa présence marquée et ses inclinaisons aléatoires inspirées par le relief du paysage.

 

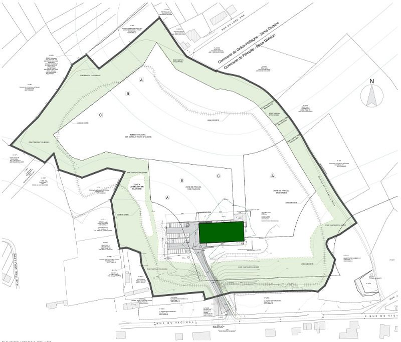
… une lecture mesurée du paysage

De fait, le projet prend place sur un terrain inhabituel : il s’agit d’un terril arasé sur lequel la végétation a repris ses droits. La faune et la flore qui s’y développent en périphérie sont caractéristiques. Elles sont protégées par des restrictions prescrites par le réseau Natura 2000 ainsi que par un rapport urbanistique et environnemental. L’implantation de l’édifice découle directement de ces contraintes : le projet prend place à l’intérieur de la parcelle, sur une partie plate non végétalisée. Le bâtiment se positionne de façon à conserver l’espace nécessaire aux manoeuvres pour l’apprentissage de la conduite des engins de chantier. Le choix de placer le bâtiment en intérieur de parcelle a aussi permis de protéger les riverains des nuisances sonores et visuelles liées à l’activité du centre. L’incurvation naturelle du site et le rideau de végétation forment en effet une barrière naturelle. Les matériaux employés pour les façades, le bardage en bois et la tôle nervurée de teinte verte, sont également en accord avec le contexte boisé. Les architectes assument consciemment un certain mimétisme avec les éléments naturels du site. Leur réinterprétation est par ailleurs à l’origine des lignes brisées de la toiture, inspirées des courbes  naturelles des talus du terril.

  • Partager cet article

Nos partenaires