La Cuisine Centrale d'Anderlecht (ncbham x Level studio) répond désormais à toutes les normes

  • image
  • image
  • image
  • image
  • image
  • image
  • image

Pour terminer 2021 en beauté, le dernier projet publié sur architectura cette année sera consacré à la rénovation de cuisines préparant quotidiennement 10 000 repas pour les crèches et les écoles de la région bruxelloise. Un projet imposant, au budget d'un peu plus de 2,2 millions €, conçu par deux bureaux, le saint-gillois ncbham et le namurois Level studio. Voici un article court et digeste, idéal en ces temps de fêtes et de repas copieux...

 

Le bureau ncbham est l'un des seuls, à notre connaissance, à avoir dans son portefeuille autant de clients issus du monde de la restauration et du catering. C'est sans doute la raison qui a poussé Les Cuisines Bruxelloises à confier au bureau saint-gillois, en collaboration avec le bureau Level studio, la rénovation complète des bâtiments des Cuisines Centrales d'Anderlecht. Un projet auquel ont également collaboré les ingénieurs et le bureau d'études de BSolutions.

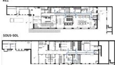
A l’origine centre de tir, ce site fut d’abord réaffecté une première fois en espace cuisine pour l’entreprise Sodexo. « Les Cuisines Bruxelloises ont ensuite décidé d’y implanter leur centrale de production, nécessitant une transformation et rénovation complète du site, incluant une remise aux normes de toutes les techniques et des espaces intérieurs », explique Aurore Havenne, responsable de la communication chez ncbham. 

« Avec une surface totale de 1 640 m², ce site de production alimentera les écoles et les crèches de la région, représentant environ 10 000 repas quotidiens. Afin de répondre aux normes d’hygiène de l’AFSCA, une réflexion globale a été portée sur le bâtiment principal avec la reconfiguration complète de l’aménagement et la mise en place d’une marche en avant stricte, développée sur les deux niveaux des cuisines. »

 

Source LEVEL STUDIO & ncbham

  • Partager cet article

Nos partenaires