Le bureau CENTRAL désigné pour la future salle de concerts du Magasin 4

  • image
  • image
  • image
  • image

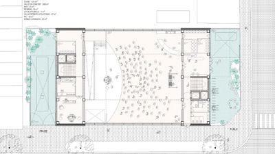
La Société d’Aménagement Urbain (SAU), en concertation avec la Ville de Bruxelles, le cabinet du Ministre-Président de la Région bruxelloise et le Bouwmeester Maître Architecte, a désigné CENTRAL office for architecture and urbanism pour la conception de la nouvelle salle de concerts du Magasin 4, sur un terrain situé à l’angle de l’avenue du Port et de la rue de l’Entrepôt, près du site de Tour et Taxis.

 

Fin 2020, un accord avait été conclu entre la Ville de Bruxelles, la Région de Bruxelles-Capitale, le Port de Bruxelles et la SAU pour permettre à la salle de concerts punk-rock alternative de trouver une implantation pérenne. L’accord conclu entre ces partenaires comprend une concession entre le Port et la Ville pour le terrain, le financement du futur bâtiment du Magasin 4 par la Région dans le cadre du Contrat de rénovation urbaine n° 1 Citroën-Vergote et une convention entre la Ville et la SAU. La SAU assurera la maîtrise d’ouvrage de la construction de cette nouvelle salle de concerts pour le compte de la Ville.

Selon Gilles Delforge, le directeur de la SAU, « le projet de CENTRAL est celui qui répondait le mieux aux critères de sélection du marché, parmi lesquels figuraient notamment les qualités architecturales et fonctionnelles, la plus-value pour le quartier, l’identité, la durabilité, l’approche circulaire et réversible, le budget, etc. (...) La SAU se réjouit de jouer à nouveau ici son rôle d’assemblier du développement territorial bruxellois, en charge de la réalisation de grands projets d’aménagement urbain et d’équipements publics d’envergure régionale culturels, sportifs, de sécurité… »

Dans le cadre du projet Magasin 4, le bureau CENTRAL s’est entouré des bureaux d’études Servais Engineering Architectural (stabilité), Zeugma Engineering (techniques spéciales), Daidalos Peutz (acoustique, PEB), Covides (coordination sécurité santé) ainsi que de Sandrine Tonnoir (économie circulaire) et d'Elzo Deurt (conseil, participation). Rappelant l'ironie de la situation - l'attribution d'un marché destiné à faire perdurer une activité culturelle alors que le secteur culturel est totalement à l'arrêt depuis de nombreux mois -, léquipe de CENTRAL affirme que « le Magasin 4 voit double. Salle mythique de la culture underground depuis plus de 25 ans, le Magasin 4 trouve enfin un lieu à sa mesure le long du canal de Bruxelles. Véritable infrastructure culturelle et évolutive, le potentiel spatial du lieu est doublé, permettant d’augmenter les activités prévues et s’ouvrir à d’autres futurs possibles. Une architecture publique, célébrant les initiatives et l’énergie bruxelloises, adresse son altérité sur le quartier et la ville. »

Le budget prévu pour la construction s’élève à 1 000 000 € HTVA pour la partie casco, financés par la Région de Bruxelles-Capitale dans le cadre du Contrat de rénovation urbaine n° 1 Citroën-Vergote. La SAU prévoit de déposer la demande de permis en mai 2022 et d’entamer les travaux en 2023.

 

Source MSI-SAU

  • Partager cet article

Nos partenaires