Formulaire de contact

Renson

Les grilles de ventilation circulaires donnent une identité unique au campus universitaire

  • image
  • image
  • image
  • image
  • image

L’AP Hogeschool est logée dans les anciennes halles des abattoirs d’Anvers en Belgique. Les halles entièrement rénovées, ainsi qu’une nouvelle tour, forment le port d’attache des étudiants qui suivent une formation STEM (‘science, technology, engineering et mathematics’). La façade est rythmée par de grandes baies vitrées et du béton apparent. Mais ce qui saute surtout aux yeux, ce sont les formes circulaires dans le béton qui apportent lumière, visibilité et air frais aux locaux situés derrière.

Après la fermeture des abattoirs de la ville en 2006, les terrains et le quartier de ces derniers ont été désertés. Le site présentait toutefois encore un énorme potentiel et le conseil communal a fini par charger les promoteurs immobiliers Triple Living et Immobel d’élaborer un plan directeur ambitieux. Ce plan définissait les grandes lignes d’un quartier innovant en termes d’architecture, d’aménagement paysager, de domaine public, de fonction des bâtiments, etc. Il définit 18 hectares de ville nouvelle, une transformation complète des zones du site des abattoirs, du ‘Noordschippersdok’ et du ‘Lobroekkade’. Le site accueille des logements résidentiels, mais aussi des entreprises locales, des hotels, restaurants, cafés, des initiatives créatives et des étudiants. Le campus de haute technologie, d’une superficie de pas moins de 22 000 mètres carrés, est le complément parfait de ce site varié.

Les halles des abattoirs ont subi une transformation complète qui respecte cependant le bâtiment historique. La restauration du béton, soigneusement exécutée, a nécessité un sérieux travail d’ingénierie. À certains endroits, la façade en béton a par exemple une épaisseur d’à peine 9 centimètres. À côté des halles rénovées se dresse une nouvelle tour de huit étages qui abrite principalement des salles de classe et le personnel administratif de l’école. « Nous avons eu la chance unique de pouvoir établir notre nouveau campus dans ce bâtiment fantastique, véritable emblème pour de nombreux Anversois. », dit-on à l’AP Hogeschool. 

Accueil des étudiants

Triple Living, l’un des plus grands promoteurs d’Anvers, a remporté le concours pour la conception du site des abattoirs et a fait appel au cabinet d’architectes OFFICE Kersten Geers David Van Severen. Le nouveau campus étant réservé aux filières STEM de l’AP Hogeschool, de nombreux espaces de laboratoire ont été prévus. Les équipements techniques ont donc occupé une place centrale dans le projet, avec un accent particulier sur la ventilation et l’extraction de fumée. « Pour les salles de laboratoire situées au premier étage, nous avons facilement pu prévoir l’amenée d’air frais extérieur et l’extraction de l’air vicié intérieur par le toit », explique Inga Karen, du bureau bruxellois OFFICE KGDVS. « Au rez-de-chaussée, c’était plus compliqué. Nous devions prévoir l’amenée d’air par la façade. Nous avons cherché une solution esthétique qui répondait aux exigences de confort. »

Les ouvertures circulaires complètent l’aspect familier de la façade. Par ailleurs, aucune intervention majeure n’a été réalisée sur l’enveloppe du bâtiment. « Les ouvertures circulaires s’intègrent dans le rythme de la façade existante tout en donnant une nouvelle identité au bâtiment », explique Inga. Les équipements techniques, telles que les conduits de ventilation reliés aux ouvertures circulaires, ont été laissées à découvert. En raison de la multitude des équipements techniques, OFFICE KGDVS a mis au point une structure appropriée pour les intégrer. Grâce aux matériaux et aux couleurs choisis, elles s’intègrent parfaitement aux structures en béton existantes avec lesquelles elles forment un résultat visuellement harmonieux. Le rythme de la façade, avec des profils en aluminium anodisé naturel et des portes noires, ainsi que d’autres parties ouvrantes en noir, contribuent à l’aspect harmonieux de l’ensemble.

Reposant sur des étages intermédiaires style mezzanine, les unités de ventilation et les conduits restent subtilement visibles dans la pièce. Ces « étages » techniques sont situés au-dessus des laboratoires. Il s’agit d’un choix à la fois esthétique et pratique. En travaillant avec une mezzanine, les architectes et les entrepreneurs on dû toucher le moins possible à la structure en béton existante. L’abaissement des plafonds n’était donc ni possible ni souhaitable.

Des grilles de façade circulaires, sans cadre de recouvrement

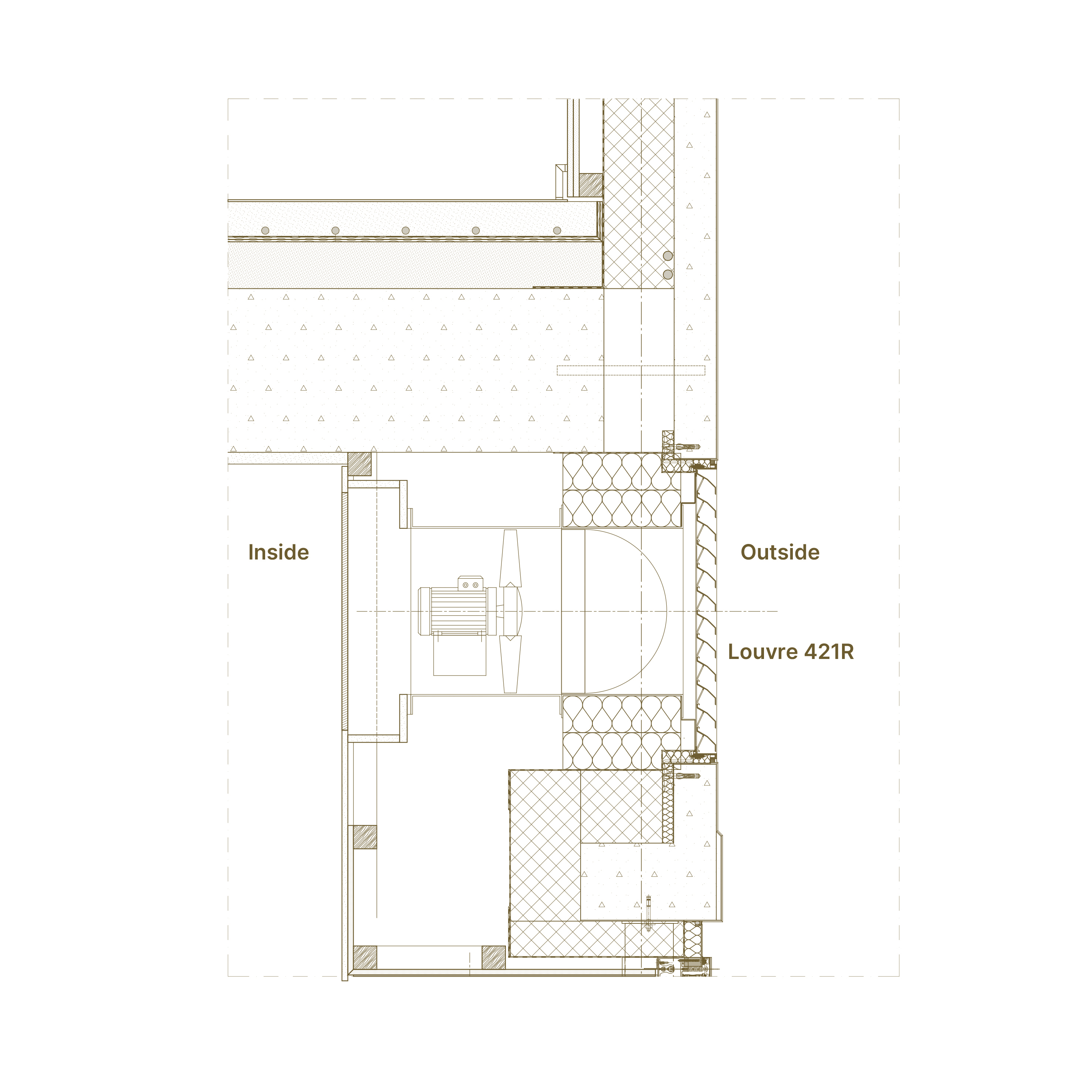
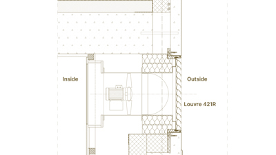
L’équipe d’architectes a intégré trois rangées d’ouvertures circulaires dans les sections en béton de l’enveloppe du bâtiment. Les deux rangées supérieures sont exclusivement constituées de fenêtres circulaires, qui apportent de la lumière aux salles de classe du premier étage. La rangée inférieure dessert le rez-de-chaussée et se compose d’un mélange de fenêtres et de grilles de ventilation. Inga Karen : « Nous avons calculé les débits nécessaires et nous nous sommes basés sur ces calculs pour déterminer le nombre de grilles de ventilation nécessaires. Les conditions d’extraction de fumée ont également joué un rôle décisif. » Au total, 81 grilles rondes 421R ZF de Renson ont été intégrées à la façade. En termes de couleur, les grilles sont assorties aux fenêtres circulaires, qui sont noires. 

De plus, les grilles de ce projet ne possèdent pas de cadre de recouvrement et sont parfaitement encastrées à plat dans la façade, tout comme les fenêtres dans les autres ouvertures. « Comme de nouveaux orifices ont été percés dans la structure en béton existante, nous n’avions aucune possibilité de monter les grilles et les fenêtres de l’extérieur », explique Koen Schoemaekers, de Group Ceyssens, pour justifier le choix des grilles sans cadre de recouvrement. Group Ceyssens, une entreprise spécialisée en projets de vitrage et de façades, a installé les grilles de façade circulaires, sans cadre de recouvrement. « Comme pour les fenêtres circulaires, ces grilles ont dû être totalement étanchéifiées à l’extérieur avec un joint de silicone, au ras du mur, pour être ensuite peintes. Du côté intérieur des grilles, nous avons à chaque fois réalisé une manchette en EPDM pour assurer une étanchéité totale. »

Les grilles sans bride extérieure ne sont pas non plus des produits standard chez Renson. Pourtant, Koen n’a pas hésité une seconde à poser la question. « Je sais que Renson se lance dans tous ses projets avec beaucoup d’enthousiasme et que l’entreprise ose aller loin pour trouver la meilleure solution », ajoute-t-il. Pour l’installation des grilles, Group Ceyssens a fabriqué des équerres sur mesure qui peuvent être fixées avec des vis en acier inoxydable sans endommager les grilles. L’installation s’est déroulée sans accroc.

Ce beau résultat est le fruit d’une collaboration harmonieuse, d’une ouverture d’esprit et d’une communication claire. Gert Van Hoof, chef de projet chez Triple Living, conclut : « L’école s’est montrée ouverte à l’approche audacieuse des architectes tout au long du processus de construction. Cela a abouti à ce magnifique résultat. C’est avec une immense satisfaction que nous avons pu livrer le bâtiment à l’école le 30 août 2024. Quelque 2 000 étudiants y seront formés au cours de la nouvelle année académique. »

Source Renson

  • Partager cet article

Nos partenaires