Neocittá, par Jourdain Architectes Associés : encore du nouveau à Seraing !

  • image
  • image
  • image
  • image
  • image
  • image
  • image
  • image
  • image

Dans la foulée de la réalisation de son masterplan, lancé dès 2005, Seraing voit son entrée de ville continuer sa métamorphose avec la construction d’un bâtiment atypique, le long de la rue Cockerill, menant à son centre. 

Un pas de plus vers la revitalisation

Baptisé Neocittà par Eriges, la Régie communale autonome de Seraing, le projet fait partie des efforts de cet organisme et de la Ville de Seraing pour amener dynamisme et mixité au sein de cette cité post-industrielle. Il prend place dans une stratégie globale de revitalisation de la ville dont plusieurs réalisations ont déjà vu le jour, à quelques pas du site qui lui est réservé. Après une procédure de concours initiée en 2010, la conception du projet Neocittà est confiée au bureau d’architecture bruxellois Jourdain Architectes Associés. Son parti-pris réside dans l’intégration du bâtiment dans la ville, déclinée à plusieurs niveaux du projet.

 

Morphologie et transparence

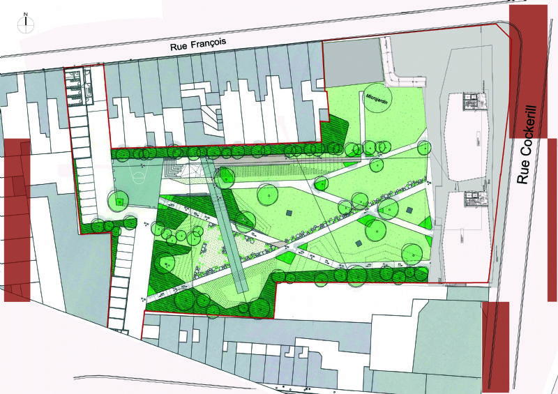
En premier lieu, les architectes ont décidé d’inscrire le bâtiment dans le panorama sérésien avec le dessin d’une toiture présentant un profil segmenté et oblique. Les architectes ont proposé un certain mimétisme de la ligne d’horizon de la ville, en référence aux toitures à sheds encore présentes à Seraing. Ce rappel au passé industriel se retrouve aussi dans le choix du bardage métallique qui habille l’ensemble. Ensuite, en tant qu’élément central du parti architectural, la conception du bâtiment va de pair avec la création d’un parc semi-public, dessiné par l’atelier d’architecture paysagiste Eole. La volonté des architectes a été d’inscrire et de connecter le bâtiment à un espace public de qualité, amenant vie et sécurité dans le quartier. Situé à l’arrière du bâtiment, en intérieur d’îlot, le parc de 6000m2 sera visible et accessible depuis la rue, à travers le rez-de-chaussée de la construction. Pour ce faire, le rez a été dégagé presqu’entièrement de tout élément structurel et accueillera deux volumes totalement vitrés réservés aux commerces. Un des accès du parc est prévu sous un large porte-à-faux présent en bout de bâtiment, au coin de la rue, créant un dégagement dans l’espace urbain et un appel vers le parc depuis la rue. Un deuxième accès est prévu entre les deux volumes vitrés.

 

Un bâtiment conçu comme un pont

La décision de réduire au minimum les éléments structurels du rez-de-chaussée a donné lieu à un beau défi au niveau de la stabilité et a empreint l’ensemble de la conception du projet. Le bâtiment est conçu comme un pont, avec les deux noyaux de circulation verticale en tant que piles et le corps du bâtiment en tant que tablier. Tous les éléments de la construction sont réalisés en béton et créent un ensemble solidaire au niveau structurel. Les deux noyaux de circulation reposent sur des micro-pieux, allant jusqu’à 18 mètres de profondeur, auxquels ils transmettent la quasi totalité des charges de la construction. Le deuxième élément structurel prépondérant est l’important voile central qui traverse le bâtiment de part en part, sur trois niveaux. Avec une épaisseur de 50 cm et un réseau d’armatures impressionnant, celui-ci est la colonne vertébrale de la construction, complétée par les dalles et voiles transversaux réalisés, eux aussi, en béton coulé en place. Cette configuration a donc permis de dégager l’espace au rez-de chaussée, par le franchissement, sans appui intermédiaire, des 25 mètres qui séparent les noyaux de circulation et par la création de larges porte-à-faux de part et d’autre de l’axe de la construction et à son extrémité.

 

De la mixité sous un bardage en acier

Au niveau du programme, le rez est donc attribué à des espaces commerciaux, à hauteur de 600m2, les trois niveaux suivants sont occupés par du logement, tandis que le niveau supérieur accueille des bureaux. Sur les 28 appartements prévus, 24 sont des duplex accessibles depuis la coursive du 2ème étage. Prévue avec une largeur généreuse, les concepteurs du projet espèrent que celle-ci incitera à la convivialité entre les futurs habitants, à l’image des espaces publics créés en interaction avec le bâtiment, au niveau de la rue. Les logements restants se développent sur un seul niveau et sont adaptés aux personnes à mobilité réduite. Concernant les matériaux, le béton est omniprésent. Les finitions des appartements sont volontairement absentes, selon le souhait général des architectes de ne pas ajouter d’éléments superflus. Cette idée se retrouve aussi au niveau du bardage métallique qui, aux endroits opportuns s’interrompt pour jouer le rôle supplémentaire de garde-corps. Enfin, un certain dynamisme est amené par les légères inflexions apportées à l’enveloppe du bâtiment et le dessin discontinu des perforations dans le bardage métallique.

  • Partager cet article

Nos partenaires