Pierre Hebbelinck reconfigurera le rez-de-chaussée du BIP à Bruxelles

  • image
  • image
  • image

La Société d’Aménagement Urbain (SAU), en concertation avec Beliris, a désigné l’Atelier d’Architecture Pierre Hebbelinck comme auteur de projet pour la reconfiguration du rez-de-chaussée du Brussels Info Place (BIP), rue Royale à Bruxelles.

 

Le projet de l’Atelier d’Architecture Pierre Hebbelinck a été retenu par la SAU dans le cadre d’un marché public qu’elle a lancé en avril 2020, qui avait suscité 14 candidatures, dont 3 avaient été shortlistées en août 2020 et appelées à remettre un avant-projet.

Trois partenaires, la Région bruxelloise, la SAU et Beliris, ont signé un protocole de coopération pour la rénovation du rez-de-chaussée du 2-4 rue Royale, c’est-à-dire celui des bâtiments du complexe qui se trouve à l’angle de la place Royale et de la rue Royale. Beliris, le maitre d’ouvrage public fédéral pour Bruxelles, financera les études d’avant-projet et les études de demande de permis d’urbanisme. Situé à côté du Palais Royal, le complexe du Brussels Info Place, ou BIP, appartient à la SAU et constitue une vitrine de la Région de Bruxelles-Capitale. Il abrite notamment les bureaux de visit.brussels, l’exposition permanente experience.brussels et les réunions hebdomadaires du gouvernement régional. La SAU va par ailleurs construire, sur la parcelle adjacente, un immeuble modulable qui accueillera LE CHAT cartoon museum.

Les raisons de la rénovation

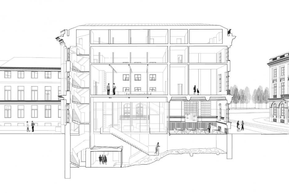
Cette rénovation vise à créer une entrée principale sur la place Royale, à aménager un nouvel espace accueil-restauration et à créer de meilleures connexions entre les différentes fonctions qui occupent le bâtiment. La restructuration des espaces qui est prévue va également apporter une solution au manque de visibilité de ces fonctions depuis l’espace public, améliorer l’accessibilité du bâtiment, en particulier pour les personnes à mobilité réduite et clarifier les circulations au sein du bâtiment.

Sur base de l’avant-projet qui lui a valu d’être sélectionné, l’Atelier d’Architecture Pierre Hebbelinck va à présent développer le projet de reconfiguration du rez-de-chaussée du BIP. La SAU prévoit de déposer la demande de permis d’urbanisme fin 2021 et d’entamer les travaux dès 2023.

Le choix du bureau d'architectes

Gilles Delforge, le directeur de la SAU, précise que « le projet de l’Atelier d’Architecture Pierre Hebbelinck est celui qui a le mieux rencontré les critères de sélection du marché, parmi lesquels figuraient notamment la plus-value que le projet apportera au bâtiment existant et la pertinence de l’intervention proposée par rapport à la valeur patrimoniale de ce bâtiment, qui fait partie d’un ensemble classé. Le fait que le lauréat soit également l’auteur de projet, désigné dans le cadre d’un autre marché public, du bâtiment que la SAU va construire sur la parcelle adjacente aux bâtiments du BIP pour accueillir LE CHAT cartoon museum facilitera une coordination optimale de ces deux projets dans le cadre d’un ensemble architectural de bâtiments chargés d’histoire et imbriqués les uns aux autres ».

L’architecte Pierre Hebbelinck explique que « Notre proposition architecturale pour la requalification du BIP se base sur une étude en profondeur de l’Histoire. Celle-ci nous conduit à formuler l’espace intérieur de l’accueil comme un palimpseste des couches historiques allant du XIIe au XXIe siècles. La coupe esquissée indique que tout visiteur sera immergé dans ce récit physique de l’histoire, par des regards en profondeur vers la ruelle Isabelle et les composantes de l’Ancien Palais et de la chapelle mais aussi en élévation, annonçant la visite de experience.brussels par une large ouverture vers l’étage. Ce visiteur accèdera de plain-pied avec le niveau de la Place Royale de telle manière à rendre non discriminatoire cette vaste vitrine de la Bruxelles mais aussi pour amplifier le potentiel de compréhension de ce lieu unique. Il n’existe pas d’autre lieu à Bruxelles pour comprendre de manière si saisissante les récits du développement de la ville. Il est rare de trouver ce type de configuration dans un accueil de visiteurs en Europe. Le Palais de Charles Quint renvoie lui-même à l’espace européen. L’ambition du projet invite à l’activation de la Place Royale comme espace de qualité offert aux usagers. Donner, par cette stratégie spatiale, un rôle majeur à la compréhension des singularités politiques et culturelles amplifie le rôle symbolique de cette reconfiguration du Palais du Coudenberg. »

 

Source sau-msi.brussels

  • Partager cet article

Nos partenaires