Pléiades 71, un exemple parfait de reconversion

  • image
  • image

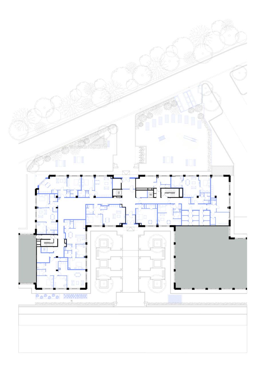
Lauréat de be.circular en 2019, le projet Pléiades 71 vient d'obtenir son permis d'urbanisme. Cet ancien immeuble de bureaux de style postmodernisme, situé à Woluwé-Saint-Lambert, sera transformé en 80 logements à loyers abordables et mettra la circularité en œuvre de différentes manières. Une reconversion imaginée par le bureau DDS+ pour Inclusio. 

Le projet Pléiades 71 transforme un ancien immeuble de bureaux en 80 logements. La programmation de cet ensemble de 8 000 m² a été étudiée en fonction des besoins en logements abordables du quartier : les logements sont le résultat d’un mélange équilibré de différentes typologies, allant du petit studio à l’appartement 4 chambres, avec une série de grands duplex localisés sous la toiture.

Des espaces d'échanges et de convivialité

Au rez-de-chaussée, à proximité immédiate des ascenseurs, sont prévus de grands locaux de rangement pour les poussettes, ainsi qu’un bureau pour la gestion journalière du bâtiment. Un grand espace commun sera mis à disposition pour y tenir des réunions entre locataires ou pour des fêtes de familles. Afin de favoriser les échanges et la convivialité entre les habitants, il est prévu à tous les étages un espace 'buanderie partagée'. De plus, tous les logements se verront attribuer un rangement individuel séparé et situé au même étage. Le parking en sous-sol est maintenu et adapté afin de pouvoir offrir 131 emplacements de voitures et 139 emplacements de vélos. Les logements seront loués à l’Agence Immobilière Sociale (AIS) de la commune de Woluwé-Saint-Lambert.

Une reconversion circulaire

« La transformation suit les principes de l’économie circulaire, fil rouge dans l’approche d’Inclusio », explique-t-on chez DDS+. « Une attention particulière a été portée aux constructions existantes afin de sélectionner les éléments qui peuvent être conservés et ceux qui doivent être remplacés ou supprimés. Il s’agit de maintenir en l’état la structure existante, les volumes et l’homogénéité du bâti. La structure portante originale est maintenue, ainsi que la majorité des façades et la quasi-totalité des noyaux de circulation (3 ascenseurs sur 4). Seuls les parachèvements intérieurs seront remplacés et certaines façades légèrement retravaillées. Enfin, une grande partie des équipements intérieurs soigneusement démontés seront réutilisés à l’échelle locale (portes…) et revendus à l’international (faux-planchers…). »

Les nouveaux parachèvements intérieurs sont en structure légère et facilement démontables et déplaçables ; les matériaux choisis combinent longue durée de vie et réduction maximale des coûts d'entretien. Le choix d’utiliser des éléments modulaires, assemblés à sec et de petite taille, contribue également à l’utilisation de moyens de mise en oeuvre à échelle humaine ; le montage et le démontage peuvent se faire avec des moyens simples et facilement disponibles. Enfin, une attention particulière a été donné à l’accessibilité des techniques, car une bonne accessibilité signifie aussi une meilleure visualisation des problèmes et une maintenance plus aisée.

« Ce projet est la démonstration que l’économie circulaire est une voie possible tant au niveau sociétal que constructif », concluent les architectes.

 

Source DDS+

  • Partager cet article

Nos partenaires