Formulaire de contact

Beddeleem

Réaménagement circulaire des bureaux de hub.brussels avec les produits Beddeleem

  • image
  • image
  • image
  • image
  • image
  • image
  • image
  • image
  • image

En collaboration avec oPla Architecture, Beddeleem a réaménagé les bureaux de hub.brussels, avec une vision écologique et future-proof. Le chef-d'œuvre et point d'orgue de ce réaménagement est un grand escalier, constitué uniquement de matériaux 100% recyclés.

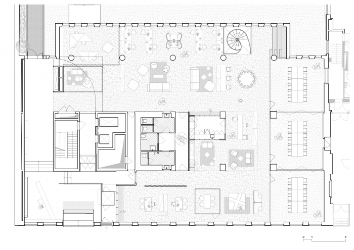
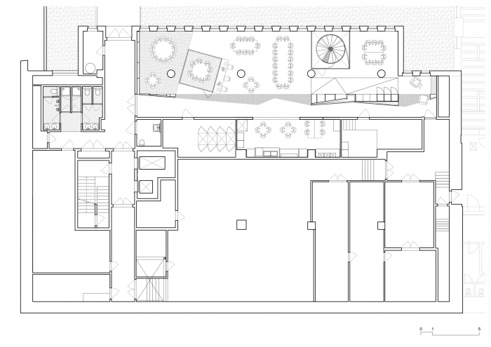
Les bureaux de hub.brussels, l'agence bruxelloise de soutien aux entreprises, sont situés au rez-de-chaussée et au sous-sol du bâtiment de l'ONU, Chaussée de Charleroi à Bruxelles. Tous les espaces, y compris la réception, les salles d'attente et de consultation, les salles de réunion, la cafétéria, la salle de co et les sanitaires ont été relookés.

Beddeleem a remporté le concours, en collaboration avec oPla Architecture, ce qui lui a permis de proposer des solutions pratiques aux l'équipe de conception dès la première phase de conception. Même dans la phase de démantèlement, l'empreinte écologique a ainsi été minimisée : les matériaux et éléments démolis ont été réutilisés sur le site ou d'autres, voire offerts à d'autres parties. Des éléments provenant d'autres sites ont ensuite été utilisés pour fabriquer de nouveaux meubles. Les cloisons JB QBE de la gamme circulaire de Beddeleem ont également été utilisés.

En détail, voici les mesures prises et les solutions installées dans les nouveaux bureaux de hub.brussels  :

  • Tous les nouveaux espaces de travail flexibles sont constitués de meubles fabriqués à partir de meubles existants démontés, et complétés par des éléments provenant d'autres sites. La cuisine a également été récupérée et relookée avec des matériaux récupérés ailleurs, tout comme le nouveau podium, les nouveaux bancs et les équipements d'éclairage ;
  • Les murs et les plafonds ont été peints avec de la peinture Ecolabel EU.
  • Les dalles de sol surélevées en place ont été récupérées à 90 % et tous les plafonds des salles de bain proviennent d'un autre projet Beddeleem où ils ont été soigneusement démontés.
  • La moquette existante a été nettoyée et laissée en place, le vinyle existant a été remplacé par une moquette 100 % sans PVC ni bitume, portant le label "Cradle to Cradle Gold".
  • La box JB QBE provient de la gamme Beddeleem Circular et a donc également été entièrement récupérée d'un autre projet. Et au besoin, elle pourra être réutilisée ailleurs ultérieurement.
  • Pour les systèmes de parois en verre, le choix s'est porté sur le système JB 4000, qui dispose d'un certificat Cradle to Cradle Silver et peut également être récupéré ultérieurement.
  • Le chef d'œuvre absolu du nouveau bureau de hub.brussels est l'escalier entièrement nouveau, d'une hauteur de 4 mètres et réalisé en matériaux 100% recyclés.
  • Partager cet article

Nos partenaires