Reconstruction passive des logements sociaux Musin (Pierre Blondel Architectes)

  • image
  • image
  • image
  • image
  • image
  • image

Début juin ont débuté les travaux de démolition et de désamiantage des logements sociaux Musin à Saint-Josse. La tour de logements sociaux située rue Musin à Saint-Josse-ten-Noode offrait tout le confort moderne lors de sa construction en 1960 sous la direction des architectes Weill et Mortehan. Plus de 50 ans plus tard, les habitations ne répondent plus aux normes de confort et une transformation lourde s’avère nécessaire. Beliris a confié cette mission à Pierre Blondel Architectes. Les travaux devraient être achevés à l'été 2016.

Démolition du bâtiment existant

Pour des raisons techniques et financières, le projet nécessite une démolition de l’immeuble existant. L’état avancé de corrosion des armatures, la faible résistance au feu des structures actuelles et leur limite de surcharge justifient déjà à elles seules cette démolition.

 

Identité du site

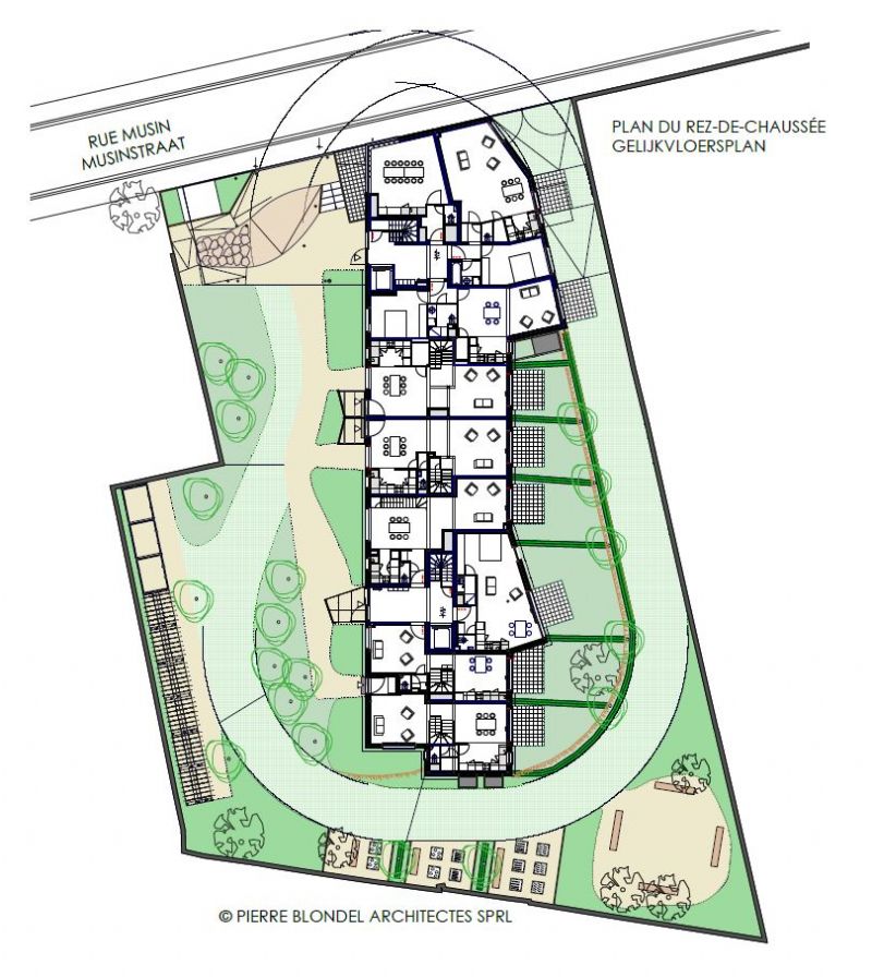
Le projet d’architecture a une identité propre grâce à trois paramètres : le jeu des volumes, le porche à front de la rue Musin et les grandes baies vitrées.

• À la recherche d’une architecture qui s’intègre mieux au contexte urbain, le nouveau bâtiment aura une surface au sol plus grande que le bâtiment d’origine, ce qui permettra de diminuer sa hauteur. Le volume initial qui sera déconstruit est composé d’un seul bloc de 38,2 m de long, 11,4 m de large et 22,5 m de haut alors que le nouvel immeuble sera conçu comme un escalier composé de plusieurs volumes. Le 1er bloc situé du côté de la rue Musin sera d’une hauteur égale à celle de l’hôtel Bloom situé de l’autre côté de la rue. La hauteur des blocs décroit ensuite pour atteindre le niveau des habitations unifamiliales qui composent le reste de l’environnement du quartier. L’immeuble sera également aligné sur la rue Musin.

• Le porche à front de rue permettra une entrée vers l’intérieur du site et une connexion à la rue Musin tout en masquant la façade arrière de l’hôtel.

• Caractérisé aussi par ses nombreuses baies vitrées, le nouveau bâtiment veut redynamiser la rue Musin autrefois perçue comme une allée de service.

 

Réduire la facture et préserver l’environnement

Si le projet imposait au départ des normes basse énergie, les intervenants ont souhaité aller encore plus loin et atteindre le critère passif, c’est-à-dire, une consommation de chauffage inférieure à 15 kWh/m2 par an. Le projet veut préserver l’environnement et permettre aux locataires de faire des économies sur leurs factures d’énergie.

 

Luminosité

Pour donner une première impression plus agréable et plus accueillante, les halls d’entrée seront inondés de lumière naturelle. Cette ouverture sur l’extérieur est aussi pensée pour diminuer l’exposition au vandalisme et aux dégradations et pour augmenter le sentiment de sécurité.

Les logements disposeront tous d’une façade Sud-Ouest, de plusieurs orientations et d’une cuisine donnant une vue sur l’extérieur. Chaque appartement, entre 1 et 4 chambres, disposera d’une terrasse ou d’un petit jardin privatif au rez-de-chaussée.

 

Aménagements des abords et facilités

Un jardin et un potager collectif seront aménagés. Le site disposera également d’un abri pour vélos et d’un local extérieur pour la collecte des déchets des locataires. Un espace de réunion sera réservé au rez-de-chaussée pour le Conseil Consultatif des Locataires (COCOLO). Le site sera entièrement accessible aux personnes à mobilité réduite. Les véhicules d’urgence et de déménagement pourront faire le tour complet du site et accéder à tous les appartements.

 

  • Partager cet article

Nos partenaires