Siège de Greenpeace Belgique : les qualités cachées d'un ancien atelier d'orgue (archipelago)

  • image
  • image
  • image
  • image
  • image
  • image
  • image
  • image
  • image
  • image
  • image
  • image
  • image
  • image
  • image
  • image
  • image

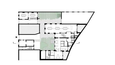
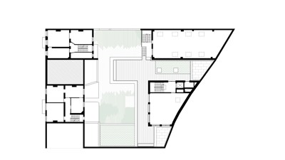
Au cœur de Bruxelles, caché dans un îlot densément bâti, Greenpeace Belgique a trouvé un nouveau siège. Le bureau d’architecture Archipelago a transformé un ancien atelier d’orgues en un espace de travail durable et flexible. Ce projet allie une réaffectation innovante à un impact environnemental minimal, créant ainsi un environnement dynamique pour cette organisation activiste. La rénovation repose sur le principe de la « suffisance », ajoutant uniquement ce qui est strictement nécessaire. De plus, les espaces ne sont pas agencés de manière traditionnelle, mais adaptés aux diverses activités de Greenpeace, allant des réunions et du travail de concentration jusqu’à… l’escalade en intérieur.

Le nouveau siège est installé dans un bâtiment qui abritait autrefois la Manufacture d’Orgues de Bruxelles. Archipelago a révélé les qualités cachées de cette structure industrielle en adoptant une approche de « mise en correspondance » : les caractéristiques spatiales et climatiques existantes ont été associées aux besoins de Greenpeace. Le résultat ? Un environnement de travail à la fois low-tech et de haute qualité, fonctionnel et économe en énergie.

La suffisance comme principe de conception

Au cœur du projet, le principe de la « suffisance » a guidé la rénovation. L’approche consistait à exploiter au maximum les structures et les ressources énergétiques déjà en place, plutôt que de démolir pour reconstruire. Archipelago a choisi d’ajouter uniquement ce qui était strictement nécessaire aux besoins spécifiques de Greenpeace, limitant ainsi l’empreinte écologique tout en préservant l’identité historique du bâtiment.

Un aspect marquant du projet est l’approche basée sur l’activité. Plutôt que d’organiser les espaces de manière conventionnelle, ceux-ci ont été conçus pour répondre aux différents usages : réunions, travail en concentration, échanges informels et même escalade intérieure. Le partage des espaces avec d’autres organisations favorise une utilisation efficace des lieux tout en stimulant les interactions sociales et le sentiment de communauté. Des aménagements acoustiques et des zones flexibles permettent ainsi la coexistence harmonieuse de diverses activités sans interférences.

Une véritable « puzzle architecturale »

L’organisation du bâtiment repose sur une succession d’espaces intérieurs et extérieurs, de zones publiques et privées, ainsi que de climats intérieurs variés. L’ancien atelier d’orgues est aujourd’hui un espace de travail pour les activistes de Greenpeace, tandis que les maisons situées à l’avant du bâtiment accueillent des chambres pour les invités. Entre ces espaces, des zones de transition maximisent la lumière naturelle, la ventilation et les interactions.

Avec cette transformation, Archipelago démontre comment une architecture à faible impact environnemental peut offrir une qualité spatiale exceptionnelle. Le nouveau siège de Greenpeace Belgique n’est pas seulement un lieu de travail efficace et durable, mais aussi un exemple inspirant de la manière dont le réemploi et la suffisance peuvent donner naissance à une architecture innovante.

Source archipelago

  • Partager cet article

Nos partenaires