Un projet mixte innovant va compléter le quartier des Guillemins à Liège (Altiplan)

Liège se prépare à accueillir un nouveau visage architectural à l'angle emblématique de la Place des Guillemins et de la rue Paradis. ARDENT REAL ESTATE, un acteur clé du secteur immobilier liégeois, propose un ambitieux projet de construction, sous la houlette de ALTIPLAN°architects qui combine habitation, commerce, et un espace dédié aux professionnels du TEC. Ce développement marque une étape significative dans la revitalisation urbaine autour de la gare des Guillemins, promettant de redéfinir l'esthétique et la fonctionnalité de ce quartier.

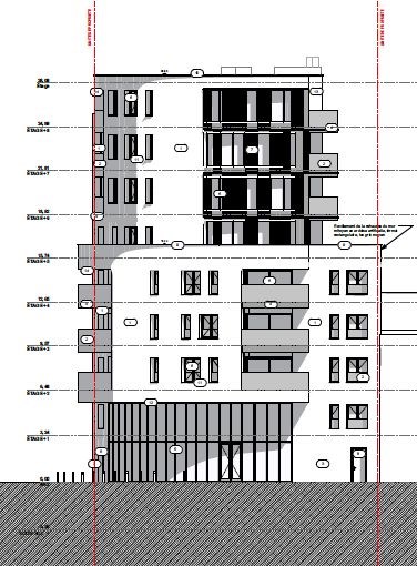
La proposition d'ARDENT REAL ESTATE, soumise à une enquête publique jusqu'au 26 avril, envisage l'édification d'un bâtiment de neuf étages offrant 13 logements variés, un espace commercial au rez-de-chaussée et un espace spécialement conçu pour le bien-être des chauffeurs du TEC. Cette composition mixte répond à la demande croissante de logements de qualité et d'espaces commerciaux innovants à Liège, tout en soutenant les professionnels en déplacement.

Le projet se distingue par son architecture moderne, avec une forme arrondie et un revêtement en aluminium, dessiné par les renommés ALTIPLAN°architects. Ces choix architecturaux audacieux nécessiteront des ajustements de la voirie, mais promettent de doter le quartier d'une signature esthétique marquante, renforçant l'attrait de la zone en tant que pôle d'activité vibrant et accessible.

Ardent Real Estate, déjà impliqué dans le développement du Liège Office Center, réaffirme son engagement envers le développement urbain de Liège. Ce projet, situé à un emplacement stratégique face à la gare des Guillemins, est le symbole d'une vision à long terme pour le quartier, visant à attirer de nouveaux résidents, visiteurs et professionnels, et à contribuer à l'essor économique et social de la ville.

  • Partager cet article

Nos partenaires