Une extension en continuité pour le crématorium de Court-Saint-Étienne (Atelier d’Architecture Mathen)

  • image
  • image
  • image
  • image
  • image
  • image
  • image
  • image

L’extension du crématorium de Court-Saint-Étienne, en Brabant wallon, a été récemment inaugurée. Le projet est conçu par l’Atelier d’Architecture Mathen, sous la direction de Jean-Christophe Mathen, en collaboration avec GAMACO pour la stabilité, GTD pour les techniques spéciales et CEDIA pour l’acoustique. Il est développé pour le compte de in BW scrl intercommunale et s’inscrit dans un site paysager marqué par une vaste ouverture sur la vallée.

L’intervention prolonge les qualités spatiales du bâtiment existant, conçu par j2a, tout en répondant à de nouveaux besoins fonctionnels. L’approche privilégie la continuité, tant dans l’organisation des parcours que dans l’intégration au paysage.

ANCRAGE DANS LE PAYSAGE EXISTANT

Le crématorium se situe au cœur d’un large espace vert donnant sur la vallée. Cette relation directe au paysage constitue un élément structurant du projet initial. Le bâtiment existant, conçu en dialogue avec cet environnement, organise une progression spatiale qui accompagne les différentes étapes du recueillement.

L’extension s’inscrit dans cette logique. Elle évite toute emprise intrusive sur les aménagements paysagers conçus par Anne-Marie Sauvat. Le projet se développe principalement en façade avant et sur les zones latérales, afin de préserver les pelouses et les allées existantes.

Une organisation des flux maîtrisée

Le projet prolonge le principe de stratification spatiale déjà en place. L’architecture ne livre pas immédiatement l’ensemble des espaces. Elle guide les usagers à travers une succession de séquences, depuis l’entrée jusqu’à l’ouverture vers le paysage. Elle structure ainsi un cheminement progressif, du recueillement initial vers l’extérieur après l’adieu.

Une attention particulière est portée à la gestion des flux à l’intérieur du bâtiment, en fonction des moments d’affluence et des usages simultanés. Le dispositif prévoit une séparation claire des parcours afin d’éviter les croisements entre les familles arrivant pour une cérémonie et celles quittant les lieux après le moment de deuil.

UNE ENTRÉE REDÉFINIE ET UN PARCOURS LISIBLE

L’extension introduit une nouvelle zone d’accueil extérieure, pensée comme un geste d’ouverture. Cette séquence mène naturellement vers une entrée redéfinie, qui s’inscrit dans la volumétrie principale du bâtiment.

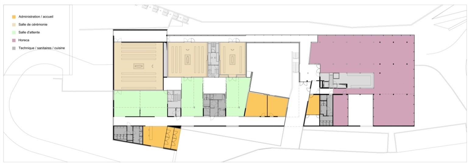
Depuis ce point, une circulation linéaire et fluide structure l’ensemble du projet. Implantée en façade, elle dessert les salles d’attente, les salles de cérémonie, puis le salon de condoléances, avant de conduire à la table de deuil. Cette circulation principale assure également la liaison entre l’accueil, les espaces administratifs et la zone Horeca via un passage couvert.

DES ESPACES INTÉRIEURS AGRÉABLES

Les espaces intérieurs sont conçus pour offrir des conditions d’accueil adaptées aux familles et aux proches. La lumière naturelle et la lisibilité des parcours participent à créer une atmosphère calme, sobre et maîtrisée.

La façade d’accueil est entièrement retravaillée dans le cadre des extensions programmatiques. L’intervention vise à renforcer le caractère apaisé du lieu dès l’arrivée, en cohérence avec la fonction du bâtiment.

Une approche architecturale cohérente 

Le projet adopte un gabarit à échelle humaine, en cohérence avec les différentes parties de l’édifice. Le travail volumétrique vise à unifier l’ensemble dans une écriture architecturale homogène.

Le positionnement latéral des extensions contribue à préserver l’ambiance du site. Les espaces extérieurs, composés de pelouses et d’allées, conservent leur caractère serein. Ils continueront à accueillir les cheminements et les moments de recueillement dans le temps.

Source Atelier d’Architecture Mathen

  • Partager cet article

Nos partenaires