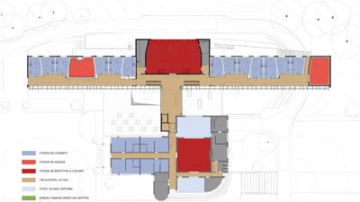
Chapelle Musicale Reine Elisabeth
- Waterloo (Waals Brabant)
- Regarder sur Google Maps
Souhaitez-vous rester au courant de l'actualité de l'architecture en Belgique ?
Inscrivez-vous à notre infolettre hebdomadaire.
Fabricant : Toitures
Entrepreneur : Gros œuvre
Architecte
Architecte
Architecte
Fabricant : Intérieur
Fabricant : Matériaux de gros-œuvre
Bureau d'études
Pas encore de compte ? Inscrivez-vous ici
Mot de passe oublié? Réinitialiser le mot de passe