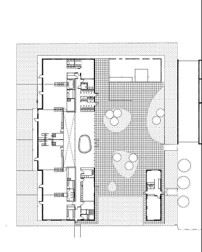
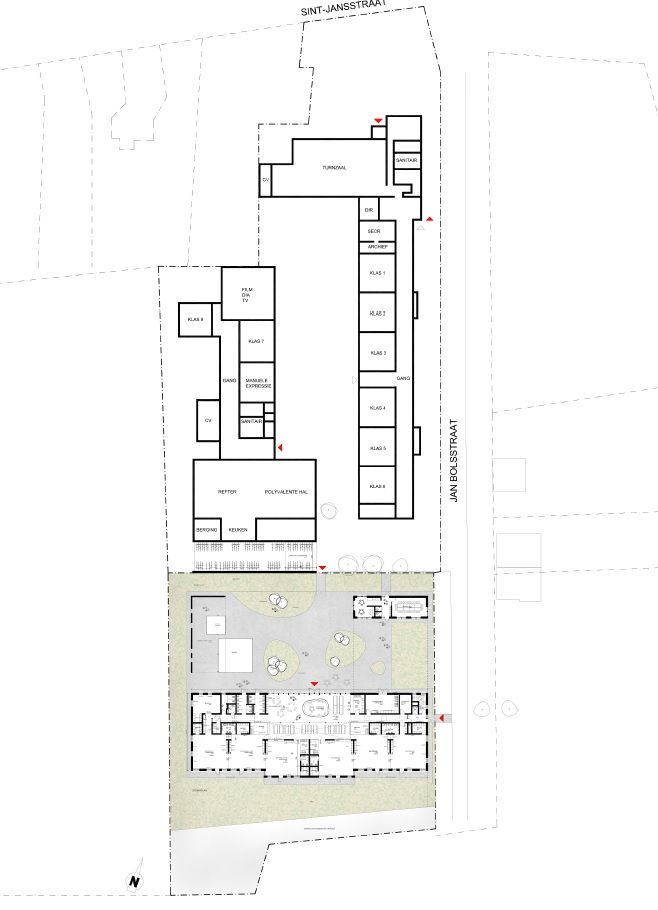
Ecole maternelle De Kameleon (Rotselaar)
Le projet consiste en l'extension d'une école fondamentale existante qui, en plus de 6 nouvelles classes, contiendra également une grande salle polyvalente avec un réfectoire, une plaine de jeux couverte et une salle des professeurs.
Le point de départ de la conception est de développer un environnement propice au jeu, à la croissance et à l'apprentissage adapté tant aux enfants qu'aux enseignants. Des estrades et des recoins supplémentaires proposent un environnement de jeu dans lequel les enfants peuvent être stimulés, mais peuvent également se retirer de l'agitation et du bruit de la classe. Des fenêtres de différentes hauteurs permettent aux enfants de regarder le monde extérieur de diverses manières.
