Habitat groupé
- Namur (Namen)
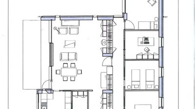
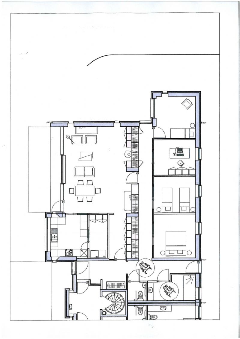
Un premier bâtiment abrite deux logements de plain-pied, conçus pour une adaptabilité pour les PMR. Par la suite, une maison de 120m2 conçue pour une famille avec deux enfants est venue compléter le projet.
Souhaitez-vous rester au courant de l'actualité de l'architecture en Belgique ?
Inscrivez-vous à notre infolettre hebdomadaire.
Un premier bâtiment abrite deux logements de plain-pied, conçus pour une adaptabilité pour les PMR. Par la suite, une maison de 120m2 conçue pour une famille avec deux enfants est venue compléter le projet.
Entrepreneur : Gros œuvre
Architecte
Architecte
Fabricant : Aménagement des abords
Bureau d'études
Spécification: Stabilité
Pas encore de compte ? Inscrivez-vous ici
Mot de passe oublié? Réinitialiser le mot de passe