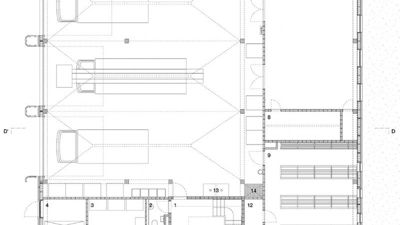
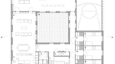
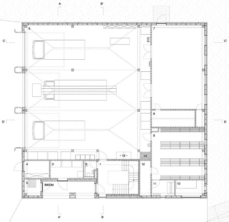
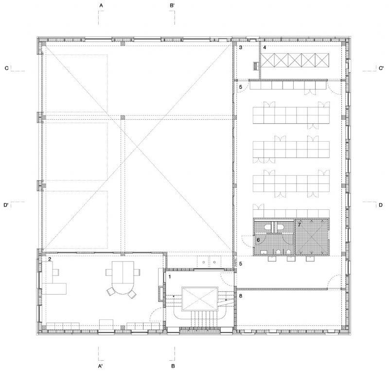
Poste avancé des pompiers Berendrecht
- Anvers (Antwerpen)
- Regarder sur Google Maps
Souhaitez-vous rester au courant de l'actualité de l'architecture en Belgique ?
Inscrivez-vous à notre infolettre hebdomadaire.
Architecte
Maître d'ouvrage
Fabricant : Autre
Spécification: Vectorworks
Pas encore de compte ? Inscrivez-vous ici
Mot de passe oublié? Réinitialiser le mot de passe