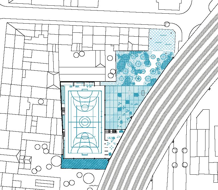
Terre-Neuve

La nouvelle salle de sport Terre-Neuve prend place le long de la jonction ferroviaire Nord-Midi, sur un site enserré entre l’imposant mur courbé du chemin de fer et un enchaînement informe d’annexes, à l’arrière de l’îlot éventré par le chemin de fer.