2020challenge - Aeropolis II - Brussel

- Innovatieve oplossing
Naast het beperken van de warmteverliezen en de koellasten van het gebouw door creatieve ingrepen op het gebouwconcept en de gebouwschil, zorgt een unieke combinatie en integratie van efficiënte installaties en passieve technieken voor een aanzienlijke besparing op het energieverbruik. Het globale energieconcept is een toonbeeld van duurzaamheid waarbij de vooruitstrevende passieve koeling een hoog comfort zowel tijdens de winter- als zomerperiode garandeert. Het gebouw zal naar schatting slechts 4,7 kWh/m²•jaar voor verwarming en 5,6 kWh/m²•jaar voor koeling verbruiken of bijna een factor 10 minder dan een standaard nieuwbouwkantoor.
Bovendien zullen de meerkosten reeds binnen vijf jaar gerecupereerd worden door de lagere gebruikskosten en het creatieve ontwerp.
- Energiebesparing en duurzaamheid
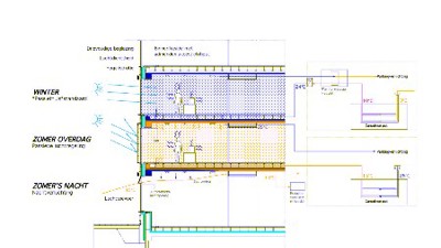
De focus ligt op het gebruik van low-tech passieve technieken. We gebruiken zeker geen hoogstaande nieuwe snufjes maar combineren betrouwbare innovatieve technieken op een andere manier om te komen tot een uniek concept. Flexibiliteit van het concept was een randvoorwaarde binnen dit project en werd als belangrijk aspect van duurzaamheid naar voor geschoven. Verlaagde plafonds werden weggelaten, binnenwanden zijn makkelijk verplaatsbaar en de duurzame techieken kunnen ook na toekomstige aanpassingswerken behouden blijven en dit met behoud van comfort. Ten slotte is regenwaterrecuperatie voorzien en is er bewust gekozen voor ecologische materialen zoals bijvoorbeeld een houtskeletgevel van FSC gecertificieerd hout.
- Andere voordelen
De toegepaste innovatieve oplossing blinkt uit door zijn eenvoud. De voorgestelde oplossing vergt geen geen extra aandacht meer van de gebruikers. Het uniek concept verhoogt de gebruiksvriendelijkheid en biedt hen een hoger comfortgevoel dan in een klassiek kantoorgebouw. Vermits er geen dure en complexe standaardtechnieken nodig zijn, kon er bespaard worden op installatiekosten en complexe regelsystemen. De meerkost ten opzicht van een standaard kantoorgebouw blijft dan ook beperkt en de total cost of ownership is beduidend lager. Ten slotte nemen de technieken niet veel plaats in beslag in het gebouw waardoor het verloren volume beperkt blijft. De luchtkanalen zijn correct en energie-efficient gedimensioneerd en nemen bovendien minder plaats in.
- Toepasbaar andere projecten
De combinatie van innovatieve technieken tot een unieke oplossing zoals toegepast in het integrale ontwerp van Aeropolis II kunnen zowel voor nieuwbouwprojecten als voor grondige renovatieprojecten gebruikt worden. Als laureaat van de Wedstrijd Voorbeeldgebouwen van het BIM kan Aeropolis II een voorbeeld zijn voor het ontwerp van alle kantoorgebouwen.

Technische fiche
Naam project: Aéropolis II
Adres: Britsierslaan, 1030 Brussel
Opdrachtgever: Huis van de Arbeid ism Groep ARCO/KWB/KAV/KAJ
Ontwerper: Architectes Associés
Datum toepassing innovatieve oplossing: einde werf maart 2010
Andere betrokken partijen: Cenergie, Stockman