29 april 2026
NL
FR
Login
Adverteren
Nieuws
Projecten
Producten
Producten
Product toevoegen
Product tarieven
Dossiers
Partners
Vacatures
Vacatures
Vacature tarieven
Podcasts
Webinars
Archilunch
2025
2026
Architectura Awards
Nieuws
Meest recent
Zoek een Artikel
Categorie
Projectinfo
Opinie
De praatstoel
Productinfo
Awards
Raar maar waar
Gewikt en gewogen
Internationaal
Sectornieuws
Duurzaamheid
Evenementen
Varia
Video
Alle thema's
Architectuur
Interieur
Technieken
Titel
Zoeken
Wis filters
Projectinfo
B-architecten en CORES Development aangesteld voor woonproject langs Gravenplein in Beveren
Varia
Vragen over intellectuele eigendom in de bouw? Stel ze op 15/2 gratis aan een specialist!
Opinie
De rol van de architect (2): de geëngageerde burger
Evenementen
Sarah Poot geeft lezing over architectuurwedstrijden in C-mine
Projectinfo
Medisch Centrum Huisartsen: “Dit is een renovatieproject buiten categorie”
Productinfo
Vande Moortel lanceert twee nieuwe gevelstenen
Varia
Betaalbaarheid of duurzaamheid om je woning te renoveren? De Belg twijfelt
Opinie
DWARSBEUK (Johan Rutgeerts): Een vermoeden van...
Productinfo
Modulyss breidt &-collectie uit
Projectinfo
Belgisch paviljoen maakt indruk op wereldtentoonstelling in Dubai
Projectinfo
De Zinnekes in Laken baadt in licht, ruimte en groen op dak van basisschool
Projectinfo
Winkelen en wonen blenden perfect in sterk ruimtelijk project
Projectinfo
Bescheiden basisschool wordt architecturaal pronkstuk (dbv architecten)
Video
De Zinnekes in Laken baadt in licht, ruimte en groen op dak van basisschool (1)
Video
Winkelen en wonen blenden perfect in sterk ruimtelijk project (1)
Projectinfo
Piekfijne detaillering en maatvaste uitvoering voor kersvers internaatgebouw (OM/AR)
Projectinfo
Agrotopia: een architecturaal gezicht voor tuinbouw op de daken van de stad (META + van Bergen Kolpa)
Varia
TECHNISCHE INFO. Ventilatie aan de onderzijde van onderdaken: zelden nuttig!
Projectinfo
Ontwerpteam onder leiding van Atelier Kempe Thill transformeert Droogdokkensite Antwerpen tot maritieme belevingssite
Varia
Waarom kiezen voor een geventileerde gevel?
Productinfo
Optigrün lanceert nieuwe circulaire waterretentiebox
Casestudy: Menslievendheid, Brussel
Evenementen
Totem organiseert gratis online opleiding
Varia
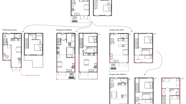
Duurzaam én betaalbaar wonen: VUB-onderzoek wijst uit dat het kan, met aanpasbare huizen
Vorige
Eerste
322
323
324
325
326
Laatste
Volgende
Onze partners
Login
E-mail
Wachtwoord
Ingelogd blijven?
Login
Nog geen account?
Registreer hier
Wachtwoord vergeten?
Reset wachtwoord
1141-nl
Nieuws