Contactformulier

ABSCIS ARCHITECTEN

Abscis Architecten renoveert historisch pand in Schuurkensstraat in het Gentse

  • image
  • image
  • image
  • image
  • image
  • image
  • image
  • image
  • image
  • image
  • image
  • image
  • image
  • image

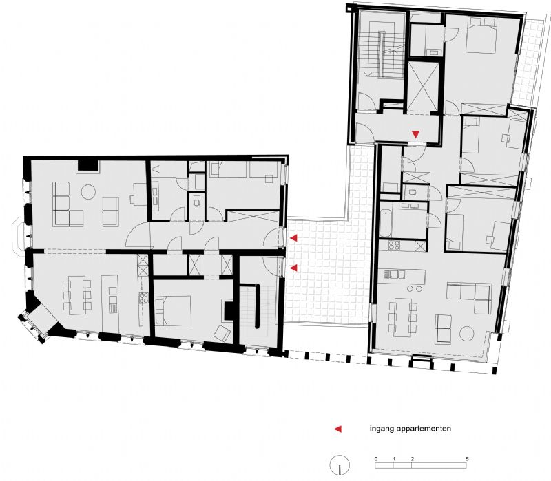
Het bureau blies twee historische winkelpanden aan de Veldstraat en Korenmarkt nieuw leven in met een gemengd project van winkelen en wonen. Een combinatie van renovatie en nieuwbouw versmelt de twee hoekpanden tot één project, met een grote duplexwinkelruimte onderaan en vijf bovenliggende appartementen rondom een gemeenschappelijke buitenruimte. 

De herwaardering van het neogotische hoekhuis met torentje uit 1885 vormt het uitgangspunt van het ontwerp. Zowel de gevels als het interieur en de ruimtelijke indeling van de woonvertrekken blijven in hun huidige vorm behouden en tonen de historische transformaties van het gebouw. De toevoeging van 3 moderne, zinken dakkapellen onthult subtiel de nieuwe woonfunctie van de zolderverdieping.

 

Architectonisch beton

De aanpalende panden in de Van Stopenberghestraat werden vervangen door een nieuw, functioneel volume met ondersteunende functies voor het hoofdgebouw aan de Veldstraat (circulatie, bergingen, technische ruimtes en terrassen). De gevel in wit architectonisch beton en glas vormt een nieuwe pleinwand aan de Kleine Korenmarkt en biedt een hedendaags antwoord op de historische context. Hier gaan de verschillende functies –winkelen, wonen, buitenruimte- schuil achter een transparant scherm van slanke betonkolommen, die qua compositie en ritme refereren aan de oorspronkelijke pandenindeling en de uitgesproken verticaliteit van de historische bebouwing.

 

Bestaande gevel behouden

In de Schuurkensstraat werd het harmonisch geheel van rode bakstenen steeggevels aangegrepen om de bestaande gevel te behouden in zijn materialisatie en architecturale vormgeving. Over de laag van oude ramen, balkons en schouwen voegde Abcis Architecten nieuwe raamopeningen en een zinken dakvolume toe, die qua materiaal en typologie duidelijk met het historische contrasteren.

 

Leegstand Veldstraat aanpakken

“De boeiende mix van oud-nieuw en winkelen-wonen maakt dit project tot een geslaagd en-en-verhaal,” klinkt het bij Abscis Architecten, “dat door zijn ligging, belevingswaarde en architecturale uitstraling een impuls kan zijn om de grote leegstand en verkrotting boven de winkels in de Veldstraat aan te pakken en het wonen er terug aantrekkelijk te maken, zowel voor de winkeliers als de toekomstige bewoners.”

  • Deel dit artikel

Onze partners