Abscis wint ontwerpwedstrijd jeugdhostel De Ploate
							Abscis Architecten heeft de ontwerpwedstrijd voor het nieuwe gebouw van jeugdhostel De Ploate in Oostende gewonnen. Het project omvat de  nieuwbouw van een jeugdhostel met overnachtingscapaciteit van 170 personen. Naast deze 170 slaapplaatsen, onderverdeeld in kamers van 2, 4 en 6 personen, komt er ook een onthaal met bar, een eetruimte voor 100 personen, 4 daglokalen voor 25 personen, een grootkeuken, zelfkookkeukens en dienstlokalen. Er wordt gewerkt volgens de DBF-formule.
						
					
						Abscis Architecten heeft de ontwerpwedstrijd voor het nieuwe gebouw van jeugdhotel De Ploate in Oostende gewonnen. Het project omvat de  nieuwbouw van een jeugdhostel met overnachtingscapaciteit van 170 personen. Naast deze 170 slaapplaatsen, onderverdeeld in kamers van 2, 4 en 6 personen, komt er ook een onthaal met bar, een eetruimte voor 100 personen, 4 daglokalen voor 25 personen, een grootkeuken, zelfkookkeukens en dienstlokalen. Er wordt gewerkt volgens de DBF-formule. 





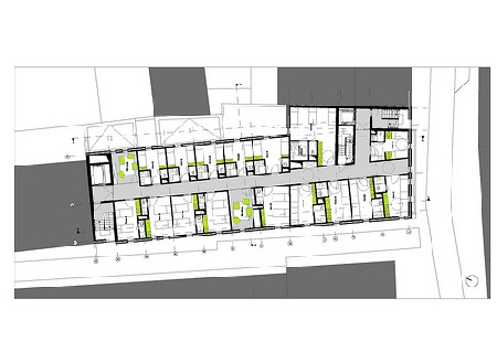
De kamers zijn evenwichtig verspreid over de verschillende bouwlagen en 17 van de 50 zijn onderling flexibel. Enkel de kamerscheidende wand in gyproc dient verwijderd te worden. Op die manier kan de beheerder zijn kamers aanpas¬sen naar de toekomstige noden, zonder grote werkzaamheden te moeten verrichten. De stille zithoeken die de gang tussen de kamers verrijkt zijn enkel voor een beperkt aantal personen en kunnen bovendien afgesloten worden.



  
 
				
Het projectgebied bevindt zich in het oudste en meest bruisende deel van de stad Oostende. De Langestraat, gekend voor zijn exuberante nachtleven, is de centrale as van actie en ontspanning, met veel cafés en restaurants, pensions en hotelletjes. Dit deel van de stad kenmerkt zich stedenbouwkundig door een grote verscheidenheid aan bouwvolumes, van superhoogbouw tot eenvoudige 2-laagse rijwoningen. Van eenduidige vormen- of kleurentaal is geen sprake, wat de levendigheid van deze volkse buurt extra benadrukt.

Door de inplanting op de hoek van het bouwblok en de nieuwe grote 
ononderbroken glaspartijen trekken we de publieke stedelijke ruimte 
binnen in het gebouw. Zo wordt enerzijds de transparante werking van 
deze jeugdhostel aan de voorbijganger getoond en kan men anderzijds van 
binnenuit zien wat er op straat gebeurt. Niet alleen werkt dit 
drempelverlagend, maar het versterkt ook het visuele ruimtegevoel.
Uit organisatorische en akoestische redenen is het gebouw functioneel opgesplitst in 2 delen: een semipubliek gelijkvloers en nivo -1 enerzijds, waar zich alle gemeenschappelijke ruimten bevinden zoals ruime inkomhal, café, daglokalen, eetruimte, bagageruimte en sanitair, fiets- en strandberging, én semiprivate slaapverdiepingen anderzijds.
Uit organisatorische en akoestische redenen is het gebouw functioneel opgesplitst in 2 delen: een semipubliek gelijkvloers en nivo -1 enerzijds, waar zich alle gemeenschappelijke ruimten bevinden zoals ruime inkomhal, café, daglokalen, eetruimte, bagageruimte en sanitair, fiets- en strandberging, én semiprivate slaapverdiepingen anderzijds.

Door de functionele opdeling in een semipubliek deel en een semiprivaat deel worden de basisfuncties van de jeugdhostel akoestisch automatisch gescheiden. De gezellige ‘ambiance’sfeer van het gelijkvloers verstoort daarbij de slaapvertrekken niet. De keuken en personeelsruimten bevinden zich ook op het laagste niveau en liggen bijgevolg niet in de looplijn van de gasten of bezoekers.

De gelijkvloerse verdieping is ontworpen als één grote flexibele open 
ruimte waar verschillende functies in elkaar overvloeien. Inkomhal met 
internetbibliotheek, café en daglokalen vormen, indien gewenst, één 
gezellige, maar akoestisch en overzichtelijk gecontroleerd geheel. De 
drie van de vier daglokalen zijn flexibel indeelbaar door accordeon 
deuren in middelgrote of kleine lokalen.

De kamers zijn evenwichtig verspreid over de verschillende bouwlagen en 17 van de 50 zijn onderling flexibel. Enkel de kamerscheidende wand in gyproc dient verwijderd te worden. Op die manier kan de beheerder zijn kamers aanpas¬sen naar de toekomstige noden, zonder grote werkzaamheden te moeten verrichten. De stille zithoeken die de gang tussen de kamers verrijkt zijn enkel voor een beperkt aantal personen en kunnen bovendien afgesloten worden.



 
			 
                             
                             
                             
                             
                             
                             
                             
                            