Appartementen zijn tweede en derde luik van project Parkview in Gentbrugge

  • image
  • image
  • image

De architecten en ingenieurs van Bontinck zijn druk bezig met de realisatie van drie appartementsgebouwen in Gentbrugge. Park View 1, een meergezinswoning van 48 appartementen, werd al in 2012 in opdracht van Immo Claes gerealiseerd. Het volgende luik - Park View 2 & 3 - zou eind 2014 afgewerkt moeten zijn.

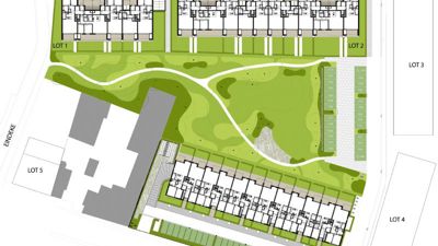
Het 4081m² grote terrein grenst aan een spoorweg en een openbaar park. De meergezinswoningen van 24 en 48 wooneenheden zijn opgesplitst in vijf loten. De omgeving bestaat uit private en sociale woonprojecten die andere meergezinswoningen omvatten. Park View 1 ligt aan de andere kant van het park.


Speelse accenten

De zuidwestelijk georiënteerde gevels van Park View 2 & 3 liggen langs de verfrissende groene zone. De architecten zorgen voor een extra oase centraal tussen de twee nieuwe gebouwen. Zo heeft elk appartement zicht op de natuur.

Een vijfde teruggetrokken bouwlaag zorgt samen met de asymmetrische verdeling van de ramen voor een speels uiterlijk. Balkons aan de spoorwegzijde geven een welkom accent aan de omgeving. De terrasgevel aan de parkzijde zorgt voor de nodige privacy van de bewoners.


Zonnig volume

Doorzonappartementen zijn in trek. Dit project speelt handig in op deze trend. De gebouwde één-, twee en drieslaapkamerappartementen kunnen maximaal profiteren van de invallende zonnestralen. Gemeenschappelijke functies zoals verschillende fietsbergingen zijn toegankelijk ingepland.

Een parkeerstrook voor bezoekers geeft samen met een groene parking op het openbaar terrein plaats aan 45 wagens. Het ondergrondse parkeervolume verbindt de twee gebouwen en geeft één plaats per wooneenheid. De technische ruimtes zijn hier ook ondergebracht.

  • Deel dit artikel

Onze partners