Architecten De Bruyn ontwerpt met hoekgebouw in Aalst ruimtelijke puzzel met maximale benutting

  • image
  • image
  • image
  • image
  • image
  • image
  • image
  • image
  • image
  • image
  • image
  • image
  • image
  • image
  • image
  • image
  • image
  • image
  • image
  • image
  • image
  • image
  • image

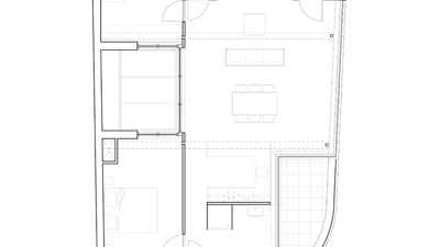
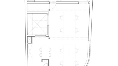
Op een compact hoekperceel in het centrum van Aalst realiseerde Architecten De Bruyn een multifunctioneel gebouw dat horeca, wonen en werken samenbrengt. PEPER, zoals het project heet, staat op de kruising van stadslijnen en maakt dankbaar gebruik van zijn zichtbare ligging aan het Utopiaplein. Met een uitgepuurde stapeling van functies en een uitgekiende lichttoetreding vormt het project een ruimtelijke puzzel waarin geen enkele vierkante meter verloren gaat. De architecten benutten de kleine oppervlakte tot het uiterste door ook het ondergrondse niveau actief in te zetten voor het restaurant 'Wally'.

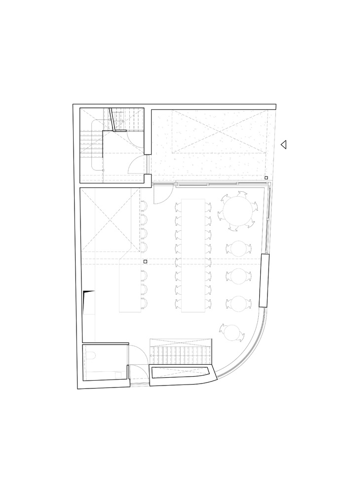
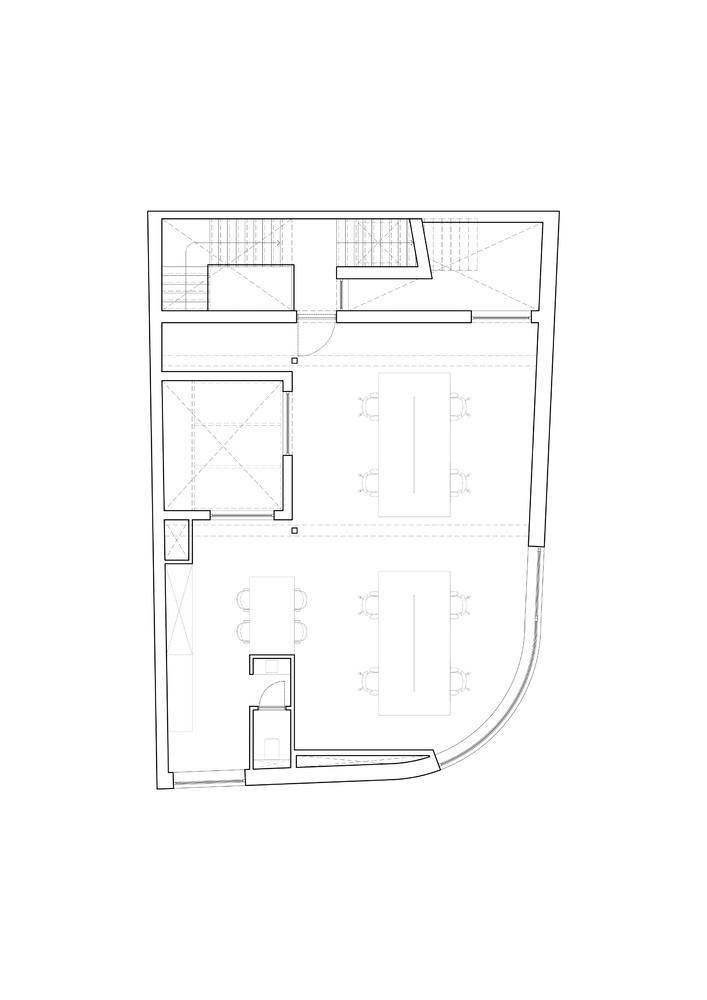
De horeca op het gelijkvloers is opgevat als één open ruimte met een open keuken en een duidelijke visuele relatie naar het plein. Grote schuiframen kunnen volledig geopend worden en zitten op zithoogte, zodat ze tegelijk dienstdoen als extra zitplaatsen en verbinding vormen met de publieke ruimte. Een vide met lichtstraat verbindt alle verdiepingen en zorgt voor daglicht tot diep in het gebouw. Dit verticale element maakt niet alleen circulatie mogelijk, maar fungeert ook als visueel anker tussen de verschillende functies. De kelder herbergt onder meer een voorbereidingskeuken en koelcel, die via een lift met de bovengrondse keuken verbonden zijn, waardoor het compacte restaurant functioneel goed uitgerust is.

Multifunctioneel gebruik en licht als bindmiddel

De inkomzone aan het Utopiaplein is overdekt en fungeert tegelijk als fietsenstalling, extra eetruimte en ontmoetingsplek. Ze versterkt de relatie tussen binnen en buiten en markeert het gebouw als toegankelijke stedelijke entiteit. Op de eerste verdieping vinden we een open kantoorruimte met kitchenette en afzonderlijk toilet. Net als het restaurant is ook deze werkplek opgevat als een open ruimte met zicht op het plein, de inkomzone en de centrale vide. Transparantie en visuele doorzichten staan centraal, zowel binnenin als naar de stad toe.

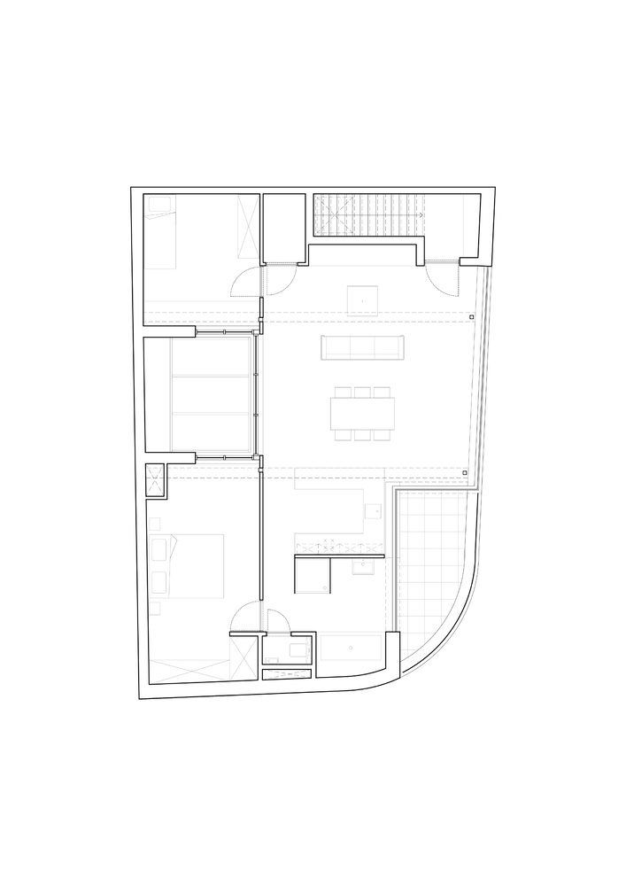
Op de tweede verdieping realiseerden de architecten een tweeslaapkamerappartement met een opvallend zicht op de nieuwe bibliotheek van Aalst. Het appartement beschikt over een inpandig terras aan de voorgevel, toegankelijk via zowel de leefruimte als de badkamer. Door de oostelijke oriëntatie en grote glaspartijen blijft het appartement voldoende licht, ondanks de schaduw van de omliggende bebouwing. De gevels bestaan uit aluminium vliesgevelprofielen, wat een maximale lichtinval combineert met een strakke detaillering.

Eerlijke materialen en zichtbare structuur

In het ontwerp werd sterk ingezet op eenvoudige en eerlijke materialen. Dragende muren in meegaand gevoegde snelbouwsteen, zichtbare betonstructuren en stalen elementen vormen samen een ruwe maar doordachte basis. Houten schrijnwerk in het restaurant en kantoor zorgen voor warmte, terwijl het appartement eerder industrieel oogt door de aluminium gevels. De trappenhal is opgebouwd uit prefab betonnen trappen, opnieuw zichtbaar gelaten om de bouwlogica leesbaar te houden.

De gevels zijn bekleed met rode keramische strengpersstenen in drie formaten. Dit zorgt voor nuance in ritme en textuur en verwijst tegelijk naar de baksteenarchitectuur in de buurt. Binnenin varieert het vloerafwerkingsmateriaal per bouwlaag, telkens aansluitend op het gebruik: van kleurrijk terrazzo tot soberdere vloerbedekking. De afwerking ademt overal een "less is more"-filosofie zonder karigheid: elk materiaal wordt bewust gekozen en prominent ingezet. PEPER nestelt zich aldus trefzeker in het stedelijk weefsel van Aalst: geen icoonarchitectuur, maar een fijnzinnig gebouw dat even vanzelfsprekend als vernieuwend aanvoelt.

Bron Architecten De Bruyn

  • Deel dit artikel

Onze partners