Architects in Motion verenigt techniek en menselijkheid bij abdijrenovatie
De Abdij van Onze Lieve Vrouw van Nazareth (Brecht) is in 1952 in neoromaanse stijl door de Paters Trappisten van Westmalle gebouwd. Destijds woonden en werkten er 120 trappistinnen; momenteel zijn dat er nog 22 en is het klooster te groot voor de gemeenschap geworden. De zusters zochten naar manieren om comfortabeler en compacter te wonen, zonder hun gewoontes, geloofsritme en rust te verliezen. Die zoektocht leidde naar Architects in Motion (AIM) en naar een uniek renovatietraject waarin Archicad, ondersteund door KUBUS, samen met BIM en VR een belangrijke meerwaarde leverden.
Hoewel de architecten van AIM breed georiënteerd zijn, vonden ze de renovatie van de Abdij van Brecht toch wel een heel speciale opdracht. “De trappistinnen leven grotendeels in stilte en volgen een eigen ritme”, legt architect en zaakvoerder Luc Vanhout uit. “Dat vroeg om een aanpak met respect en geduld. Je kunt niet zomaar binnenwandelen met een laptop en een voorstel. We hebben veel overlegd, geluisterd, en altijd getracht om hun manier van leven te begrijpen.”
Efficiënte start met pointcloud
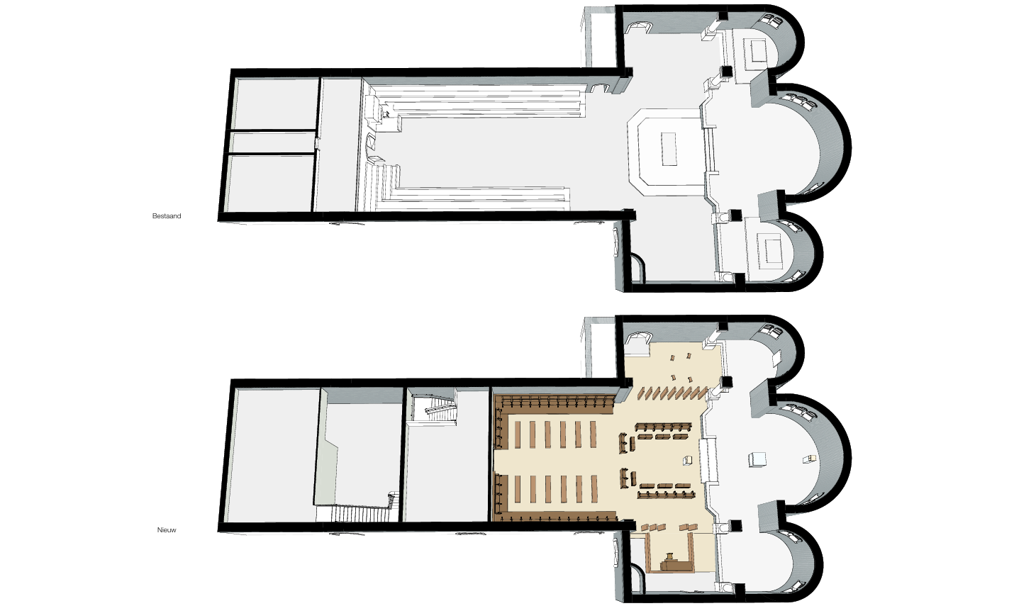
Voorafgaand aan het ontwerp bracht een drone het gebouw nauwkeurig in kaart. De buitenzijde werd vastgelegd via fotogrammetrie, terwijl de binnenzijde met LIDAR-technologie is gescand. Daarna zijn de beelden samengevoegd tot een gedetailleerde pointcloud die eenvoudig in Archicad kon worden geladen. Op basis hiervan werd de bestaande situatie gemodelleerd. Dit vormde een stevige en efficiënte start van het ontwerpproces.
Duidelijk communicatie door Archicad
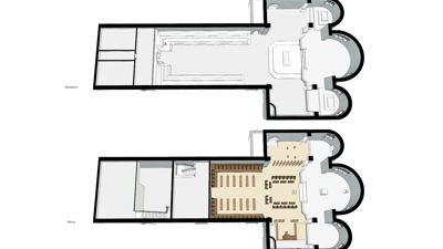
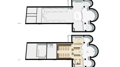
AIM werkte het ontwerp voor de Abdij van Brecht volledig uit in Archicad, waardoor de communicatie met aannemers en opdrachtgevers als vanzelfsprekend verliep. “Dankzij functies als de Renovatietool, Graphic Overrides en 3D-documents was vlot duidelijk wat er precies te gebeuren stond”, licht projectarchitect Didier Fleerakkers toe. “We deelden het model op in bestaande toestand, sloop en nieuw toe te voegen elementen, waarna elke bouwlaag overzichtelijk werd gepresenteerd met kleurcodes voor bijvoorbeeld nieuwe wanden, te verplaatsen meubilair en brandwerende scheidingen.”
Snel schakelen via meetstaten en IFC
De informatie uit het model werd rechtstreeks gekoppeld aan meetstaten, waardoor ramingen en hoeveelheden direct beschikbaar waren. Via IFC-uitwisseling konden studiebureaus hun technische modellen opzetten, die vervolgens opnieuw in het Archicad-model werden geïntegreerd. “Wat betreft het samenwerken met externe partijen in BIM, zijn we nog niet waar we willen zijn,” merkt Didier op. “Niet alle bouwprofessionals in België werken al op deze manier. Maar waar het wél lukt, merken we echt de voordelen. Daar werkt het gewoon goed.”
Liturgische visie vanuit Italië
Een bijzonder aspecten aan het renovatieproces, was de internationale samenwerking met broeder, én architect, Michele Badino van het Monastero di Bose te San Masseo in Italië. “Zijn diepgaande kennis van het monastieke leven en unieke kijk op architectuur bracht ons nieuwe inzichten en een waardevolle dynamiek in het renovatieproces”, vertelt Luc. “Het hielp ons een ontwerp te creëren dat voldoet aan hedendaagse normen, maar dat ook de authenticiteit van de abdij en leefwijze van de zusters respecteert.”
Verbeterslag in duurzaamheid
Omdat de abdij sinds de jaren vijftig nagenoeg onveranderd is gebleven, vormde ook verduurzaming een essentieel onderdeel van de renovatie. “Wat betreft isolatie en energieverbruik hebben we een flinke verbeterslag kunnen maken”, vindt Didier. “Zo worden onder andere de zoldervloeren geïsoleerd, wordt de bestaande stookolietank vervangen door een warmtepomp in combinatie met een zonneveld en maken de bewoners gebruik van een bestaande waterput om in waterbehoeften te voorzien.”
VR brengt ontwerp tot leven
Tijdens een bezoek van de zusters aan het kantoor van AIM, kregen ze een voorproef van hun toekomstige abdij via Virtual Reality. Met een VR-bril op konden ze letterlijk door alle ruimtes wandelen. “Voor hen was dat een nieuwe ervaring”, zegt Luc. “Niet iedereen was meteen vertrouwd met de technologie, maar het hielp hen wel om te begrijpen wat er zou veranderen. Eén van de zusters had tranen in haar ogen toen ze zag hoe het altaar in de kerk zou komen te staan. Dat moment vergeten we niet snel.”
Verbondenheid teruggebracht
De zusters wonen nu rondom de pandhof, met kamers op de eerste verdieping en voorzieningen als de eetzaal en leeszaal op de begane grond. Alles is verbonden via een trap en lift, zodat ze zelfstandig kunnen blijven functioneren. Het project bewijst dat innovatie en erfgoed elkaar versterken”, zegt Didier. “Voorheen woonden de zusters verspreid over meerdere vleugels en liepen ze letterlijk tientallen meters in hun eentje door de lege gangen. Nu wonen ze echt samen en voelen ze weer die verbondenheid van vroeger.”
Wat volgt
Met de verbouwing van het woon- en leefgedeelte zit de eerste fase van het project erop. In de volgende fases, zijn deherinrichting van de kerk, het inkomgebouw en de abdijwinkel aan de beurt. Daarna volgt het gastenhuis, en op de lange termijn krijgt ook de voormalige boerderij een nieuwe bestemming. De abdijsite, met haar grote oppervlakte en natuurlijke omgeving, biedt ruimte voor verdere invulling, natuurlijk weer met respect voor de stilte en structuur waar de gemeenschap om vraagt.
Betekenisvol project
Luc en Didier benadrukken hoe in dit project techniek en menselijkheid hand in hand gaan. Didier: “Het gaat niet alleen om het verbeteren van een gebouw, maar om wat je kunt betekenen voor de manier waarop mensen samenleven. Die extra dimensie in architectuur vind ik heel waardevol.” Luc is het daarmee eens: “Ik ben er trots op dat we dit mochten doen voor deze gemeenschap. Niet omdat het project groots is of veel aandacht trekt, maar omdat het echt iets voor mensen betekent.”
 
			 
                             
                             
                             
                             
                             
                             
										