Architectuurboek Vlaanderen Nr. 10: Villa Buggenhout van Office KGDVS - 3 ex. te winnen
Enkele weken geleden publiceerde Architectura.be al een artikel over Architectuurboek Vlaanderen Nr. 10. Deze week bekijkt Architectura.be Villa Buggenhout, een van de twee projecten van Office Kersten Geers David Van Severen die in het boek werden opgenomen, van naderbij. Het project werd in diverse tijdschriften gepubliceerd, waaronder Abitare, en is ook opgenomen in de recente 2G-monografie over het werk van Office KGDVS. En wederom mogen we 3 lezers verblijden met een exemplaar van Architectuurboek Vlaanderen Nr. 10!
Enkele weken geleden publiceerde Architectura.be al een artikel over Architectuurboek Vlaanderen Nr. 10. Deze week bekijkt Architectura.be Villa Buggenhout, een van de twee projecten van Office Kersten Geers David Van Severen die in het boek werden opgenomen, van naderbij. Het project werd in diverse tijdschriften gepubliceerd, waaronder Abitare, en is ook opgenomen in de recente 2G-monografie over het werk van Office KGDVS. En wederom mogen we 3 lezers verblijden met een exemplaar van Architectuurboek Vlaanderen Nr. 10!
Villa Buggenhout - Office Kersten Geers David Van Severen

Foto: Bas Princen
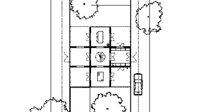
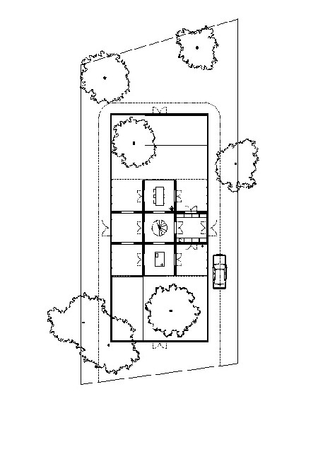
Deze vrijstaande woning staat midden op een kavel tussen bos en landbouwgebied in de periferie van Buggenhout. De afsluiting – een gemoduleerd stalen hekwerk - maakt integraal deel uit van het ontwerp en bepaalt de volumetrie van het huis. De omliggende, verwilderde tuin wordt niet ingenomen, en fungeert als oprit voor de auto rondom het huis. De woning zelf bestaat uit twee niveaus: een open ‘buitenhuis’ op de begane grond, en een gesloten ‘binnenhuis’ op de eerste verdieping, met zichten op het bos en het rurale landschap.

Het buitenhuis is opgevat als een patiovilla met tuin. De dikke muren - een dubbele dragende wand uit wit gekaleide snelbouwsteen - dragen een betonnen platform dat de basis vormt voor het ‘binnenhuis’. Het binnenhuis is een houten doos met een compacte set kamers, waterdicht gemaakt door het volledig te bekleden met een donkere kunststoffolie. Het project werd gedetailleerd met het oog op een perfecte ervaring van binnen naar buiten toe: de kamergrote schuiframen zijn opgelegd op de gevel dat de kaders onzichtbaarzijn en geen belemmering vormen voor de indrukwekkende zichten. Deze zijn steeds gericht op het open landschap, zodat de naburige huizen quasi onzichtbaar blijven. Door zich bewust met het hekwerk terug te trekken van de randen van het perceel, wordt de villa werkelijk ‘vrijstaand’ – een zeldzame luxe in verkaveld België.

Foto: Bas Princen
Wedstrijd
In samenwerking met het VAi mag Architectura.be 3 Architectuurboeken Vlaanderen Nr. 10 weggeven! Iedereen die als (interieur)architect, ingenieur of andere bouwprofessional beroepshalve actief is in de bouw- en architectuurwereld komt in aanmerking. Om mee te doen, zou u het antwoord op de wedstrijdvraag voor 31 oktober 2012 moeten mailen naar raf@architectura.be samen met volgende gegevens:
Voornaam:
Naam:
Beroep:
Bureau/bedrijf:.
Adres:
Wedstrijdvraag
Bij de auteurs staat ook een schrijver uit Engeland vermeld. Wat is zijn naam?? Het antwoord vind je hier.
Villa Buggenhout - Office Kersten Geers David Van Severen

Foto: Bas Princen
Deze vrijstaande woning staat midden op een kavel tussen bos en landbouwgebied in de periferie van Buggenhout. De afsluiting – een gemoduleerd stalen hekwerk - maakt integraal deel uit van het ontwerp en bepaalt de volumetrie van het huis. De omliggende, verwilderde tuin wordt niet ingenomen, en fungeert als oprit voor de auto rondom het huis. De woning zelf bestaat uit twee niveaus: een open ‘buitenhuis’ op de begane grond, en een gesloten ‘binnenhuis’ op de eerste verdieping, met zichten op het bos en het rurale landschap.


Foto: Bas Princen

In samenwerking met het VAi mag Architectura.be 3 Architectuurboeken Vlaanderen Nr. 10 weggeven! Iedereen die als (interieur)architect, ingenieur of andere bouwprofessional beroepshalve actief is in de bouw- en architectuurwereld komt in aanmerking. Om mee te doen, zou u het antwoord op de wedstrijdvraag voor 31 oktober 2012 moeten mailen naar raf@architectura.be samen met volgende gegevens:
Voornaam:
Naam:
Beroep:
Bureau/bedrijf:.
Adres:
Wedstrijdvraag
Bij de auteurs staat ook een schrijver uit Engeland vermeld. Wat is zijn naam?? Het antwoord vind je hier.