Architektenburo Jef Van Oevelen richt Mechelse Mahatma Gandhiwijk opnieuw in

  • image
  • image
  • image
  • image
  • image
  • image
  • image
  • image

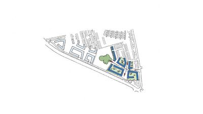
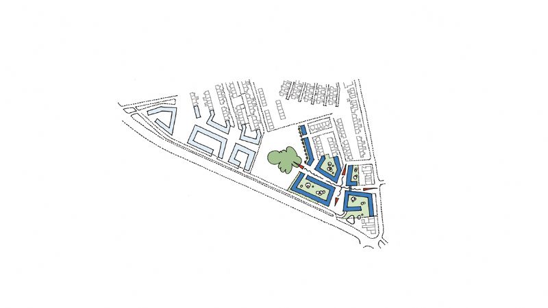
Een aantal verouderde gebouwen met appartementen zijn begin 2015 onder de sloophamer gegaan en met de toevoeging van dit wedstrijdontwerp van Jef Van Oevelen (175 koop- en huurwoningen) was het noodzakelijk om voor dit nieuwe geheel duidelijke ordeningsprincipes te ontwikkelen. Respect voor de bestaande schaal, oog voor variatie en nadruk op helderheid worden hier gecombineerd. De circulatie dient daarbij als norm en model. 

Verschillende typologieën worden in gesloten bouwblokken bijeengebracht, aansluitend bij de bestaande bebouwing. De onderlinge verschillen zijn subtiel genoeg om de wijkeenheid te bewaken en laten tegelijkertijd identificatie tussen bewoner en woning toe.

Ook de variatie in bouwhoogte (twee tot vijf bouwlagen) toont de zorgvuldige afweging van voetafdruk, openbare en private ruimte.

 

Park met wandelpaden

Een nieuw park voor de Mahatma Gandhiwijk werkt de inplanting af. Wandelpaden en niveauverschillen herinneren voortdurend aan de schaal, getoetst aan bewoning en bewoners.

De straat wordt verlengd vanaf het voetpad tot bij de toegangsdeuren van de hoogste verdiepingen. Elke inkomdeur wordt een volwaardige voordeur. Aan de binnenzijde van de bouwblokken is er hiervoor horizontale buitencirculatie uitgebouwd. Aan de straatzijden wordt op de hoeken herkenbare verticale buitencirculatie gegroepeerd.

Gerelateerd aan de bestaande woningen is er gekozen voor massiefbouw met baksteen, staal en geprefabriceerde betonelementen.

  • Deel dit artikel

Onze partners