ATAMA en V+ transformeren campus Kaai van Erasmushogeschool Brussel tot bruisende leeromgeving

  • image
  • image
  • image
  • image
  • image
  • image
  • image
  • image
  • image
  • image
  • image
  • image
  • image
  • image
  • image
  • image
  • image
  • image

De Erasmushogeschool Brussel (EhB) maakte de voortgang bekend van het campus Kaai-project in hartje Anderlecht. Campus Kaai, de thuishaven van studenten Design & Technologie, Musical en RITCS, ondergaat momenteel een complete transformatie, naar een ontwerp van architectenbureaus ATAMA en V+. Erasmushogeschool Brussel zet vol in op de uitbreiding van deze IT- en kunstcampus met nieuwbouw en renovatie, waaronder een akoestisch hoogstaande theaterzaal en hightechfilmstudio. EhB-, KCB- en RITCS-opleidingen zullen er elkaar vinden en bouwen aan een echte creatieve hub in Anderlecht.

"We investeren sterk in kwaliteitsvolle, moderne, duurzame en veilige campussen, die een voedingsbodem zijn voor creativiteit en innovatie”, zegt Dennis Cluydts, algemeen directeur Erasmushogeschool Brussel. “Dit project belichaamt niet alleen onze visie om te groeien als instelling voor professionele en artistieke praktijk, maar laat ook zien dat we een toekomstgerichte hogeschool zijn. Met ons onderwijs, onderzoek, dienstverlening en kunstontwikkeling stomen we studenten klaar om de maatschappij positief te beïnvloeden.

 

Geen eiland in de stad

Erasmushogeschool Brussel is vastberaden om met campus Kaai nieuwe studenten, partners uit het werkveld en toekomstige medewerkers aan te trekken. Het wordt een bruisende leeromgeving die niet alleen de kerntaken van de hogeschool versterkt, maar deze ook op een dynamische wijze ondersteunt.

"Campus Kaai wordt een open campus en zet de deuren open voor de (buurt)bewoners en samenwerking met lokale organisaties. Een echte ontmoetingsplaats dus. Erasmushogeschool Brussel toont zo dat ze geen eiland in de stad is, maar een actief onderdeel ervan"
- Raymonda Verdyck, voorzitter Erasmushogeschool Brussel -

 

Het bouwproject in Anderlecht betreft een grootschalige uitbreiding van de huidige campus. Momenteel zijn de opleidingen Toegepaste Informatica en Multec (Multimedia & creatieve Technologie) van het departement Design & Technologie, de opleiding Musical van het Koninklijk Conservatorium Brussel en de Ondersteunende Diensten van de hogeschool er gehuisvest. Binnenkort krijgt ook de opleiding Muziek van het Conservatorium hier een tijdelijk onderkomen, terwijl het Conservatoriumgebouw in de Regentschapsstraat grondig gerenoveerd wordt.

Maar met de nieuwbouw die nu gerealiseerd wordt, transformeert Erasmushogeschool Brussel deze locatie pas echt tot een kunstencampus, een toekomstgerichte leer- en werkomgeving waar ook het Graduaat Podium- en Eventtechnieken, de bachelor Podiumtechnieken & Productie en de academische opleiding Drama een nieuwe thuis krijgen.

 

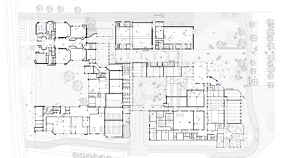
Koerenstructuur

De nieuwbouw en renovatie zal studenten, lesgevers, maar ook de buurt en andere gasten en gebruikers toegang geven tot een akoestisch hoogstaande theaterzaal en een hightech filmstudio. Een grote galerij-foyer - de agora - zal dienen als verbindende en creatieve productieruimte die de studenten en lesgevers van de diverse opleidingen zal bijeenbrengen. Daarnaast komen er ook tal van les- en oefenruimtes, vooral in het gerenoveerde deel.

Langs het kanaal en nauw verbonden met de hogeschool, zal het RITCS een gepaste plaats vinden in de productieve stad. Een stad waar het, aldus de ontwerpers van ATAMA en V+, mee gestalte aan zal geven. Het silhouette is tegelijk vertrouwd en nieuw. Het combineert en interpreteert dakvormen van filmstudio’s, theatergebouwen en industrieel erfgoed tot een nieuw beeldend geheel.

Door de nieuwbouw precies te positioneren wordt de bestaande structuur van ‘koeren omgeven door bebouwing’ vervolledigd. Elke koer is anders en geeft aanleiding tot een ander gebruik: de ‘theaterkoer’, de ‘koer cinema’ en de ‘verborgen tuin’. Door radicaal te vertrouwen op het ‘eenvoudige’ karakter van het bestaande gebouw zal er een bijzondere plek ontstaan.

Bron Erasmushogeschool Brussel & ATAMA

  • Deel dit artikel

Onze partners