B-ILD ontwerpt met De Boomgaard een coöperatief woonzorgproject in Kessel-Lo
Met De Boomgaard creëren de coöperatieve vennootschappen Stadsmakerfonds en Livez (een coalitie van vier Leuvense zorgorganisaties) een innovatief woonzorgproject. Het project komt tot stand op de terreinen van de voormalige basisschool De Boomgaard in Kessel-Lo. Deze gronden worden door AG Stadsontwikkeling Leuven voor 99 jaar in erfpacht gegeven aan Livez. Twee nieuwbouwvolumes combineren een ontmoetingsplek, modulaire zorgkamers, duo-woningen, gezinswoningen en studio’s in een groene omgeving. De boomgaard wordt terug in ere hersteld en aangevuld met een kleinschalig ecologisch tuinbouw- en moestuinproject.
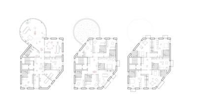
Tijdens de procedure om een ontwerpteam voor De Boomgaard te selecteren stelden zich eind 2022 zestien kwalitatieve teams kandidaat, waarvan er vier een ontwerp uitwerkten. Een jury met alle partners, Miss Miyagi (recent nog winnaar van Pioneer Award op de Belgian Building Awards 2024) en externe deskundigen koos uiteindelijk voor B-ILD (in samenwerking met BAS, STir, EA+ en Buitenruimte) als ontwerpteam. Het voorgestelde ontwerp is flexibel en laat verschillende ruimtelijke configuraties toe - helemaal in lijn van de heel verschillende zorgvragen die hier zullen passeren. Hét centrale concept hierin: veranderingsgericht (ver)bouwen.
Livez en Stadsmakerfonds mikken met het inclusief woonproject De Boomgaard op een gemengde bewonersgroep waarin mensen met diverse zorgprofielen (ouderen met zorgbehoefte, kwetsbare jongvolwassenen, mensen met fysieke beperking,...) samenwonen met niet-zorgbehoevenden en buurtbewoners vanuit het geloof dat zij elkaar iets waardevols te bieden hebben. De expertise van zorgpartners wordt ingezet om de wooncontinuïteit van mensen met een ondersteuningsbehoefte te verbeteren en om de samenleving voor te bereiden zodat ze verschillende doelgroepen kunnen insluiten in de maatschappij.
Zorgzame buurt
Naast het woongebouw komt er ook een huiselijke, laagdrempelige ontmoetingsplek. Die is opengesteld voor buurtactiviteiten maar is ook de plek waar bewoners die geen voltijdse zorgondersteuning hebben terecht kunnen. Een hecht sociaal weefsel is dan ook een fundament en een doel van dit project. In een eerste fase bouwen de initiatiefnemers de plek als katalysator van een zorgzame buurt, in de hoop en veronderstelling dat het sociaal weefsel stap voor stap deze rol overneemt.
Een academische raad omkadert Livez bij de uitwerking van het project en bij de ontwikkeling van de Hospiscore. Die score kwantificeert in hoeverre een buurt een bepaalde ondersteuning of zorg kan absorberen. Buurten met een hoge Hospiscore kunnen diverse en zware gezondheidsproblematieken het hoofd bieden en verzekeren daardoor een hoge wooncontinuïteit in hun buurt.
 
			 
                             
                             
                             
                             
                             
                             
										 
										 
										 
										 
										 
										 
										 
										