Bart Vanden Driessche (BLAF) op de Mies van der Rohe Awards
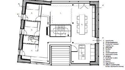
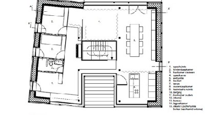
Onlangs liet Architectura.be Martine de Maeseneer (MDMA) aan het woord vanop de uitreiking van de Europese Prijs voor Architectuur - Mies van der Rohe Awards in Barcelona. Een andere Belgische architect die daar vertoefde was Bart Vanden Driessche van Blaf Architecten. Bart ging voor de camera van Architectura.be dieper in op hun project dat de shortlist haalde, het passiefhuis in Asse.
Onlangs liet Architectura.be Martine de Maeseneer (MDMA) aan het woord vanop de uitreiking van de Europese Prijs voor Architectuur - Mies van der Rohe Awards in Barcelona. Een andere Belgische architect die daar vertoefde was Bart Vanden Driessche van Blaf Architecten. Bart ging voor de camera van Architectura.be dieper in op hun project dat de shortlist haalde, het passiefhuis in Asse.
"Ons passiefhuis met huid van textiel in Asse haalde de shortlst van de Mies van der Rohe Awards. Het is fantastisch om hier te kunnen zijn, tussen vele gerenommeerde architecten in een paviljoen waar het voor veel architecten allemaal mee begonnen is. We waren geselecteerd met de passiefwoning in Asse, waarin het over veel meer gaat dan het passiefgebeuren zelf. Het gaat misschien nog veel meer over de sociale duurzaamheid, de ruimtelijke duurzaamheid, de context of nontext waarin er gebouwd wordt in Vlaanderen en de invulling in een verkaveling. De woning is een heel lang proces geweest voor het bureau. Ik denk dat het belangrijkste dat ik er aan overhoud, wat ook terugkwam in het debat hier deze morgen, het terugkeren is van het belang in architectuur van de 'meaning of things': het ontwerpproces is een geleidelijk proces waar goed over nagedacht moet worden. Sommige elementen kunnen later in het proces ingevuld worden, andere elementen kunnen eventueel nog toegevoegd worden nadien, soms als het gebouw er al staat, om zo tot een resultaat te komen waar iedereen voor zich kan uitmaken wat voor een resultaat dat juist is. Mooi, niet mooi, passend, niet passend, ... In België hebben we de kans denk ik om zo te werk te gaan."



"Ons passiefhuis met huid van textiel in Asse haalde de shortlst van de Mies van der Rohe Awards. Het is fantastisch om hier te kunnen zijn, tussen vele gerenommeerde architecten in een paviljoen waar het voor veel architecten allemaal mee begonnen is. We waren geselecteerd met de passiefwoning in Asse, waarin het over veel meer gaat dan het passiefgebeuren zelf. Het gaat misschien nog veel meer over de sociale duurzaamheid, de ruimtelijke duurzaamheid, de context of nontext waarin er gebouwd wordt in Vlaanderen en de invulling in een verkaveling. De woning is een heel lang proces geweest voor het bureau. Ik denk dat het belangrijkste dat ik er aan overhoud, wat ook terugkwam in het debat hier deze morgen, het terugkeren is van het belang in architectuur van de 'meaning of things': het ontwerpproces is een geleidelijk proces waar goed over nagedacht moet worden. Sommige elementen kunnen later in het proces ingevuld worden, andere elementen kunnen eventueel nog toegevoegd worden nadien, soms als het gebouw er al staat, om zo tot een resultaat te komen waar iedereen voor zich kan uitmaken wat voor een resultaat dat juist is. Mooi, niet mooi, passend, niet passend, ... In België hebben we de kans denk ik om zo te werk te gaan."


