BBA 2023 / Sustainability: G1609 (GAFPA)

  • image
  • image
  • image
  • image
  • image

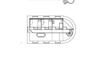
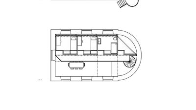
In Ninove stond GAFPA in voor het ontwerp van de herbestemming van de kapel van de Onze-Lieve-Vrouw ten Beukenboom. De architect vormde de kapel om tot een woning met een lichte staalstructuur. De architect schoof de staalstructuur tegen de oostelijke wand waardoor de royale ruimte bewoonbaar werd.

Twee geprofileerde stalen tussenvloeren kragen uit over een portiekstructuur op de middenas van de kapel. De aannemer sneed ze precies bij waardoor het halfronde koor, de oude voordeur en een ranke spiltrap de verschillende verdiepingen met elkaar verbindt. Een enkele deur in het koor breekt het gesloten karakter van de kapel en zorgt voor een uitzicht op de achterliggende velden.

Gevrijwaarde ruimte

De reconversie zorgt ervoor dat een belangrijk stuk erfgoed kan behouden worden. In een duurzaamheidsstrategie is het belangrijk om voorzichtig om te gaan met het bestaande. Na overleg met de dienst Onroerend Erfgoed koost GAFPA ervoor om met een hedendaagse aanpak de woning onder te brengen in de kapel. De beschikbare ruimte werd efficiënt ingericht met compacte kamers die ruimtelijk met elkaar verbonden zijn via een vide. Daarnaast respecteerde de architect de footprint van de kapel en werd het bestaande groen gevrijwaard.

 

Circulaire kapel

Via een buffertank wordt er regenwater gevangen als stockage. Hierop sloot de aannemer het sanitair en andere voorzieningen zoals een wasmachine aan. Het overtollige water wordt hier gefilterd. Daarnaast werd er een overloop aangesloten op een natuurlijke gracht rondom het veld.

De architect verwijderde enkel het meubilair uit de oorspronkelijke kapel. Het bestaande volume bleef intact, een bijkomende opening biedt de woning zicht op het landschap en zorgt voor een tweede ontsluiting. De originele tegels kregen een speciale reiniging en werden opnieuw geplaatst als nieuwe vloer. De overige elementen werden dus opnieuw gebruikt of gerestaureerd. Aan de binnenzijde zorgen op maat gemaakte voorzetramen voor een continue winddichte schil met behoud van het originele glas in loodramen.

Het opzet van de rationele staalstructuur volgt het principe van een intelligente casco. Deze aanpasbare en flexibele staalstructuur kan in de toekomst voor andere functies ingericht worden. Daarnaast is het geheel demontabel en bestaat het uit standaard staalsecties. De vloer bestaat uit droog gemonteerde houten vezelplaten met vloerverwarming. De aannemer plaatste de vloer via een kliksysteem.

Off grid systeem

Het volledige project werd aangesloten op een off grid systeem, op elektrische voeding na. Een BEO-veld op basis van geothermie zorgt, in combinatie met een warmtepomp, voor de klimatisatie van de ruimte. Het verwarmingssysteem bestaat uit vloerverwarming die zowel op de gelijkvloers als op de eerste verdieping actief is. Onder het dak kan de bewoner gebruik maken van lage-temperatuur radiatoren. Daarnaast werd de woning ook uitgerust met een ventilatiesysteem B met bijkomende zonnepanelen.

  • Deel dit artikel

Onze partners