BBA 2024 / Residential Real Estate Award: Woonproject De Meersen (URA Yves Malysse Kiki Verbeeck)
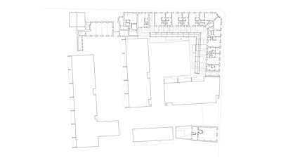
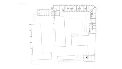
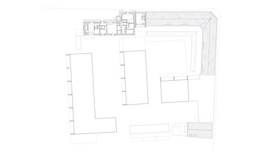
In het stadscentrum van Ieper realiseerde Ura Architects samen met Robbrecht & Daem Architecten een grootschalig woonproject op de site van een oude bibliotheek, jongensschool en cultuurcentrum. Een uitgekiende puzzel van diverse woontypes en -groottes werd ingepast in het bestaande patrimonium, met een balans tussen nieuwe en bestaande elementen. Een collectieve passage, die twee doorgangen verbindt met de omgevingen, ontsluit de woningen. Zo ontstaat een wandeling waarlangs de deuren, voortuinen en terrassen zijn gelegen, samen met collectief groen in de grotere omgeving.
Sinds het vertrek van de stadsbibliotheek en het archief stonden de gebouwen van De Meersen en De Looie leeg. De stad Ieper ging via een publiek-private samenwerking op zoek naar de ideale partner om de site een nieuw invulling te geven. Vastgoedontwikkelaar 3D Real Estate ging met de architectenbureaus Ura Architects en Robbrecht en Daem Architecten in zee.
Dynamische wooneenheden
De historische site ‘De Meersen en De Looie’ kreeg een nieuwe bestemming met een honderdtal wooneenheden: van flats met een, twee of drie slaapkamers tot woningen met een tuin. Het nieuwe rustpunt in de stad Ieper heeft ook commerciële ruimtes, een ondergrondse parkeergarage voor 130 wagens en een fietsenstalling met fietsenlift. Twee doorsteken geven toegang tot de binnenzijde van het terrein, een groen pad bezorgt toegang tot voortuinen en voordeuren. Dit zorgt voor sociale interactie. Daarnaast zijn in de doorsteken zelf, en in de plooi van het project, toegangen gecreëerd tot kleine clusters van woningen. Met subtiele ingrepen zorgen de openingen in het klassengebouw voor huiselijkheid.
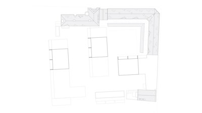
Het ontwerpteam besloot om het bestaande gebouw te behouden in zijn basis, en aan te vullen met specifieke raamopeningen en deuren. Het dak werd op bepaalde plaatsen opgetrokken om licht en lucht binnen te laten of terrassen aan te leggen op verdieping. Eigenzinnige dakkapellen zorgen voor maximaal licht in de woonruimtes bovenin. Een nieuwe dynamiek ontstond binnen een strak historisch geheel, waarbij geschiedenis en toekomst elkaar vinden in een uiterst aangename woonplek.
Harmonisch geheel
Binnen het project zocht het ontwerpteam naar de ideale balans tussen behoud en respect voor het patrimonium en de vernieuwing. Het project, dat de naam Gloria kreeg, toont op subtiele wijze aan dat herbestemming één van de mogelijkheden is om binnen stedelijke gebieden te kiezen voor vernieuwing. Het gebouw heeft namelijk zijn unieke karakter bewaard, toch wordt de identiteit versterkt dankzij een aantal specifieke ingrepen.
In de nieuwe ingrepen gebruikte de architecten dezelfde materialen en kleuren waardoor er een totale integratie is van nieuw en oud. Door deze bewuste methodiek toe te passen vormen de nieuwe interventies een volwaardig onderdeel van het geheel, en bekomt het één harmonisch geheel.
 
			 
                             
                             
                             
                             
                             
                             
                             
                            