BBA 2024 / Utility Award: De kleine sikkel (Volt architecten)
Het monument de Kleine Sikkel in de Nederpolder was toe aan een grootschalige renovatie. Volt architecten restaureerde het middeleeuwse pand met respect voor zijn historische waarde. Daarnaast transformeerde de architect het interieur tot een hedendaags functioneel kantoor voor verschillende verenigingen.
Het imposante gebouw, op de hoek van de Nederpolder en de Biezekapelstraat, was in de 14de eeuw de patriciƫrswoning van de familie Van der Zickelen. Van deze vroegste periode getuigt enkel nog de 13de-eeuwse overwelfde kelder op Romaanse zuilen. Met respect voor de historische waarde van het pand realiseerde Volt architecten een functioneel kantoorgebouw dat plaats biedt aan diverse culturele verenigingen die actief zijn in en ondersteund worden door de Stad Gent.
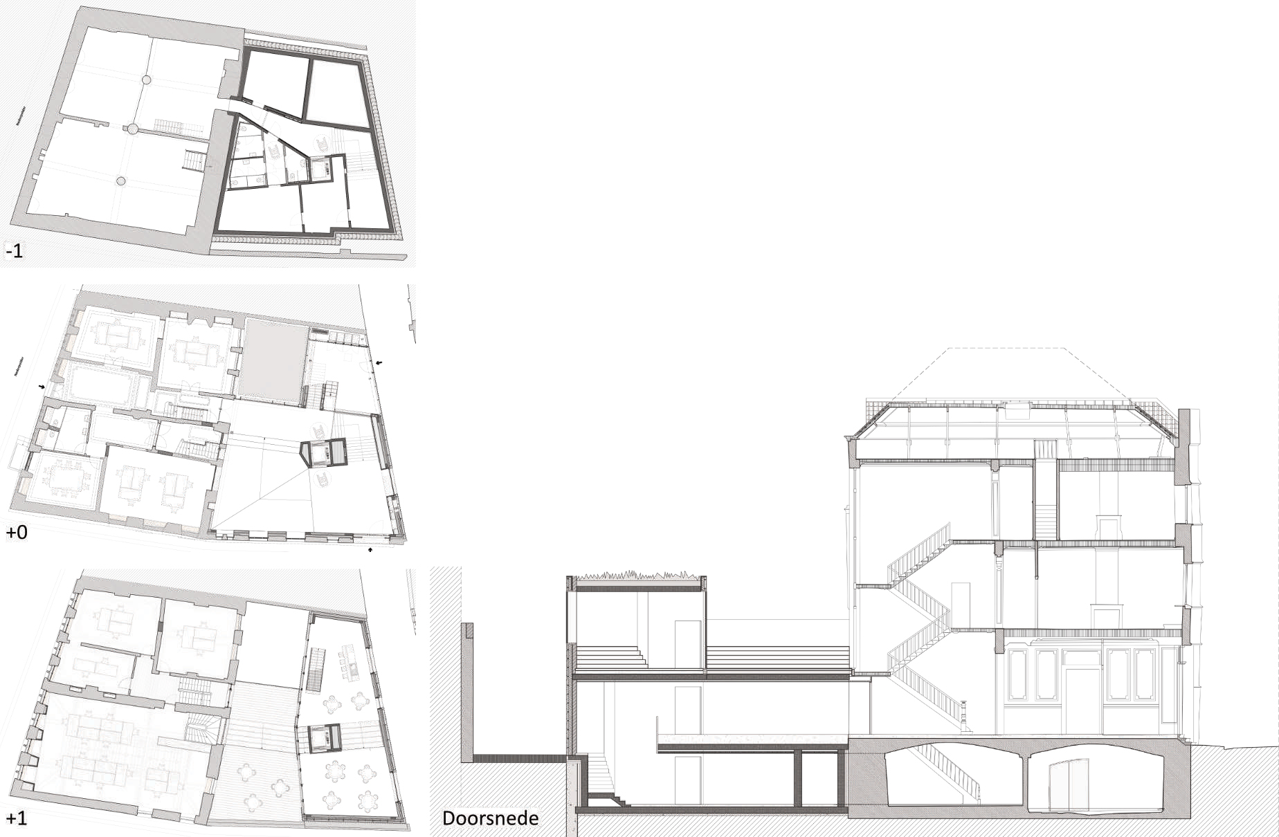
Sinds 1943 is de Kleine Sikkel een beschermd monument omwille van de historische, archeologische en artistieke waarde. Het pand bestond uit een beschermd hoofdvolume en een inferieure achterbouw. Een groene poort in de Biezenkapelstraat geeft toegang tot een derde deel: een oud steegje dat in de loop der jaren werd volgebouwd. Op termijn zal dit steegje opengesteld worden als voetgangersstraat.
Historisch waardevol
De Kleine Sikkel was toe aan een complete renovatie. In opdracht van Sogent startte Volt architecten in 2016 aan het ontwerp voor de restauratie en de verbouwing tot een dienstencentrum en kantoren. Het hoofdvolume is historisch waardevol en werd gerestaureerd in overleg met de Diensten Monumentenzorg en Archeologie van de Stad Gent en het agentschap Onroerend Erfgoed van de Vlaamse Overheid.
De hoofdingang is verschoven naar de Biezekapelstraat en geeft nu rechtstreeks toegang tot de imposante 13de-eeuwse kelder. In het hoofdvolume verwijderde het ontwerpteam de recente toevoegingen en bestaande technieken. Het volledige buitenschrijnwerk werd vernieuwd en het dak gerestaureerd. Dankzij de modernisering van het interieur doet het hoofdgebouw nu dienst als eigentijdse kantooromgeving.
Nieuwbouwvolume met lucht en licht
De bestaande aanbouw had geen historische waarde waardoor de architect besloot om het volledige gedeelte te slopen. Het nieuwbouwvolume herbergt ondersteunende functies en technieken voor de kantoren zoals een cafetaria, een fietsenberging en een technische ruimte. Daarnaast kreeg de nieuwbouw een kleine binnentuin, een groendak en een dakterras met uitzicht op de Sint-Baafskerk en de Achtersikkel. Deze ingrepen maken de historische achtergevel opnieuw zichtbaar en brengen lucht en (zon)licht in het binnengebied.
De Kleine Sikkel biedt nu ruimte aan verschillende culturele verenigingen die actief zijn in en ondersteund worden door de Stad Gent. De restauratie en uitbreiding beschikt over een netto vloeroppervlakte van 1.134 m2 en werd in april 2022 afgerond.
 
			 
                             
                             
                             
                             
                             
                             
                             
                             
                            