Bouw gestart aan Gentse transitwoningen naar innovatief ontwerp van FELT

  • image
  • image
  • image
  • image
  • image
  • image
  • image

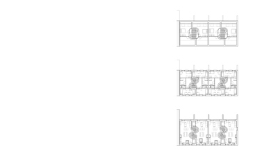
De werken aan Alfons, het nieuwe transitwoonproject van ontwerpbureau FELT architecture & design in Sint-Amandsberg, zijn officieel gestart. Het project omvat negen transitwoningen voor gezinnen die tijdelijk onderdak nodig hebben, bijvoorbeeld na een brand of een acute woonsituatie. Opvallend daarbij zijn de vier flexibele wisselkamers, die via dubbele toegangsdeuren aan twee aangrenzende woningen kunnen worden gekoppeld. Hierdoor kan de beschikbare ruimte snel worden afgestemd op de noden van elk gezin.

Gent telt vandaag 41 transitwoningen, maar die zijn vaak volledig bezet. Met dit nieuwe project komt daar broodnodige capaciteit bij in de vorm van vier eengezinswoningen en een compact volume met vijf appartementen, waarvan twee volledig toegankelijk zijn. De wisselkamers bevinden zich op het gelijkvloers en de tweede verdieping van het noordelijke gebouw, en vormen een belangrijk onderdeel van het flexibele woonconcept. Hun inzetbaarheid maakt het mogelijk om gezinnen van uiteenlopende grootte op een waardige en comfortabele manier op te vangen.

Ontwerp van FELT geïnspireerd door begijnhofstructuren

Het ontwerp van FELT zet sterk in op zachte overgangen tussen privéruimte en collectiviteit, cruciaal voor bewoners die opnieuw houvast zoeken. De architecten lieten zich inspireren door de Vlaamse begijnhoftraditie, waarin een tuinmuur een dubbele rol vervult: als grens én als verbindend element. Die muur vormt de ruimtelijke ruggengraat van het project. Ze koppelt de twee bouwvolumes langs de straat, organiseert circulatie en ingangen en omsluit een kleine buurtparkruimte die toegankelijk is voor zowel bewoners als omwonenden. Zo ontstaat een sequentie van gedeelde en meer private plekken, gedragen door een helder opgebouwd ruimtelijk systeem.

De buitenruimte krijgt een centrale rol in het dagelijks leven op de site. Een doorsteek opent het terrein voor fietsers en wandelaars, waardoor het project vanzelf in de buurtcirculatie wordt ingebed. De opeenvolging van open, groene en collectieve plekken stimuleert ontmoeting en sociale integratie, terwijl het materiaalpalet – baksteen, dakpannen en geplooid staal – en de reeks zadeldaken aansluiten bij de schaal van de omliggende woonstraten. Het geheel voelt vertrouwd en ingetogen aan, maar onderscheidt zich door de manier waarop buiten- en binnenruimtes in elkaar overvloeien.

Flexibele volumes met wisselkamers voor wisselende gezinssamenstellingen

De negen transitwoningen zijn verdeeld over twee compacte volumes: vier rijwoningen aan de zuidzijde en een meerlagig volume aan de noordzijde, waarin zich duplexappartementen rond de tuinmuur slingeren. In dit noordelijke gebouw bevinden zich ook de vier wisselkamers, die het project een uitzonderlijke mate van flexibiliteit geven. Dankzij hun dubbele toegangsdeuren kunnen ze worden ingezet als uitbreiding van verschillende woningen, waardoor het geheel snel kan inspelen op wisselende gezinssamenstellingen. Die aanpasbaarheid is een directe vertaling van de opdracht om een woonomgeving te creëren die meegroeit met onvoorspelbare situaties, zonder afbreuk te doen aan privacy, comfort of woonkwaliteit.

De inpassing in de buurt gebeurt met aandacht voor openheid en een menselijke schaal. Binnentuinen functioneren als voortuinen, informele paden verbinden de verschillende woonplekken en de tuinmuur begeleidt bewoners intuïtief doorheen het terrein. Het project zoekt een balans tussen geborgenheid en toegankelijkheid: het voelt open maar niet bloot, rustig maar niet afgesloten. De keuze voor een warm en ingetogen materialenpalet versterkt die leesbaarheid. Als de werken volgens planning verlopen, worden de transitwoningen eind 2026 opgeleverd, waarmee Alfons een vernieuwend voorbeeld wordt van waardig, flexibel en toekomstgericht transitwonen.

Bron FELT & Stad Gent

  • Deel dit artikel

Onze partners