Bovenbouw Architectuur ontwerpt Welzijnshuis in Mortsel met markante driedubbele optopping

  • image
  • image
  • image
  • image
  • image
  • image
  • image
  • image
  • image

In Mortsel starten binnenkort de werken aan een nieuw Welzijnshuis, naar een ontwerp van Bovenbouw Architectuur. Het project wordt gerealiseerd in opdracht van het OCMW van Mortsel en zal worden gebouwd door aannemer De Peuter. Het nieuwe welzijnscentrum krijgt een plek in het voormalige politie-interventiegebouw naast het stadhuis. Het ontwerp combineert de herbestemming van het bestaande gebouw met een optopping van drie verdiepingen, gedragen door een exoskelet en een lichte houtstructuur.

Het Welzijnshuis komt op een strategische locatie in het centrum van Mortsel, tussen het vernieuwde stadhuis, een publiek plein aan de westzijde, een drukke verkeersas langs de zuidkant en het Fortpark aan de oostzijde. Door deze ligging krijgt het gebouw een sleutelrol in het stedelijk weefsel. Het ontwerp voegt boven op het bestaande volume drie nieuwe verdiepingen toe, waardoor het gebouw opnieuw een duidelijke stedelijke aanwezigheid krijgt aan het plein.

Een historische structuur opnieuw in balans

Het bestaande gebouw dateert uit de jaren 1950 en werd oorspronkelijk opgetrokken als politie-interventiepost. Het herkenbare volume met roodbruine baksteen, natuurstenen raamomlijstingen en een steil leien dak met dakkapellen maakte ooit deel uit van een symmetrisch geheel dat het stadhuis flankeerde. Vandaag staat het gebouw alleen, waardoor de oorspronkelijke compositie van het plein uit balans raakte.

Het ontwerp van Bovenbouw Architectuur speelt hierop in met een duidelijke verticale uitbreiding van drie bouwlagen. Die optopping herstelt het ritme van de omliggende stedelijke bebouwing en geeft het gebouw opnieuw een herkenbare positie binnen het stedelijke ensemble. Bescheiden in schaal maar duidelijk in intentie vormt het vernieuwde volume een nieuw referentiepunt aan het plein.

Een open huis voor welzijnsdiensten

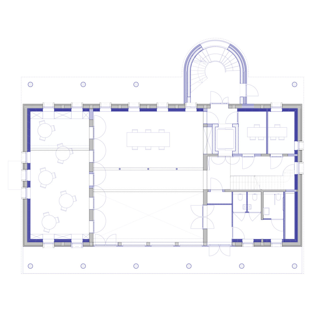
Binnenin wordt het voormalige politiegebouw omgevormd tot een toegankelijke plek waar verschillende welzijnsdiensten samenkomen. Het Welzijnshuis moet uitgroeien tot een centraal aanspreekpunt voor sociale ondersteuning in de stad. Zo zullen onder meer laagdrempelige dienstverlening en initiatieven zoals het Huis van het Kind er een plaats krijgen.

Daarnaast voorziet het project ook een centraal buurthuis waar bewoners elkaar kunnen ontmoeten. Op de hogere verdiepingen komen open kantoorvloeren voor de welzijnsdiensten van de stad Mortsel en voor lokale organisaties, aangevuld met gedeelde ruimtes die zowel dagelijkse werking als ontmoeting ondersteunen. Door deze functies onder één dak te verzamelen wil de stad de samenwerking tussen verschillende sociale actoren versterken en de dienstverlening overzichtelijker maken.

Lichte draagstructuur maakt optopping mogelijk

De structurele ingreep werd zorgvuldig uitgewerkt zodat de bestaande betonnen draagstructuur maximaal behouden kan blijven. De uitbreiding van drie verdiepingen wordt daarom georganiseerd rond een exoskelet, aangevuld met grote houten vakwerken en vloeren in kruislaaghout (CLT). Deze constructie maakt het mogelijk grotere overspanningen te realiseren zonder het gewicht van het gebouw sterk te verhogen.

Dankzij deze lichte draagstructuur kan de nieuwe optopping boven op het bestaande gebouw worden gerealiseerd zonder de oorspronkelijke constructie te overbelasten. Tegelijk sluit de keuze voor hout aan bij de duurzaamheidsambities van het project en beperkt ze de hoeveelheid nieuw materiaal die nodig is voor de uitbreiding.

Een uitnodigende entree aan het plein

Aan de voorzijde krijgt het Welzijnshuis een nieuwe, transparante entree met aluminium schrijnwerk en grote glaspartijen. De inkomzone laat overvloedig daglicht binnen en benadrukt het open en toegankelijke karakter van het gebouw. Vijf slanke kolommen markeren de ingang en lopen door in de verticale uitbreiding, waardoor de nieuwe architectuur een duidelijke ritmiek krijgt.

De schaal van de gevel verandert daarbij bewust: waar het bestaande gebouw een verdeling heeft in negen traveeën, wordt de uitbreiding georganiseerd in vijf grotere assen. Deze ruimere maatvoering zorgt voor genereuze kantoorvloeren op de nieuwe verdiepingen. De aluminium gevel weerspiegelt bovendien subtiel het omliggende groen, waardoor het gebouw mee verandert met het licht en de seizoenen.

Architectuur die verleden en context verbindt

Aan de korte zijgevels openen grote halfronde uitsparingen zich in de gevel, waardoor het houten draagwerk zichtbaar wordt voor voorbijgangers. Deze architecturale ingreep maakt de constructie leesbaar en geeft het gebouw een eigentijdse expressie. Aan de achterzijde wordt een deel van de gevel uitgegraven om een afzonderlijke ingang voor het Huis van het Kind te creëren, wat de toegankelijkheid voor gezinnen versterkt.

Een cilindervormig trappenvolume vormt daarbij een opvallend architecturaal element. De vorm verwijst naar zowel het stadhuis als naar het nabijgelegen fort en verankert het nieuwe Welzijnshuis in zijn historische omgeving. Zo slaagt het ontwerp erin een voormalige politiepost te transformeren tot een open en herkenbaar stedelijk gebouw waar welzijn, ontmoeting en dienstverlening samenkomen.

Bron Bovenbouw Architectuur

  • Deel dit artikel

Onze partners