BUROBILL en Wissel architectuur studio ontwerpen met Kinderdagverblijf Jacquet een speelse oase voor Koekelberg
In het hart van Koekelberg verrijst binnenkort een nieuw kinderdagverblijf voor 56 kinderen. Na een ontwerpwedstrijd georganiseerd door de gemeente en de Brusselse Bouwmeester werd de opdracht toegekend aan BUROBILL en Wissel architectuur studio, in samenwerking met L.A.B.E.A.U (landschap), Gilles Pieters (technisch ontwerp), STir (EPB/duurzaamheid), Stabico (stabiliteit), De Fonseca (technieken) en kunstenares Alice Van Innis. Samen realiseerden zij een ontwerp dat meer doet dan louter opvang voorzien: het gebouw fungeert als wijkanker en poort naar een publiek toegankelijk park in het binnengebied van het bouwblok.
Het gebouw wordt strategisch aan de voorzijde van het perceel geplaatst, waardoor achteraan ruimte vrijkomt voor een groene binnentuin. Die is publiek toegankelijk via een doorsteek langs het gebouw en vormt zo een uitnodigend, kindvriendelijk stukje stad dat het kinderdagverblijf, de omliggende woningen en het bredere stedelijke netwerk verbindt. Een artistieke ingreep van Alice Van Innis zal de toegang tot het park markeren en de identiteit van de plek versterken.
Ruimte maken voor kinderen en buurt
De gevel op de hoek van de Jacquetstraat en Piermezstraat wordt subtiel teruggetrokken, wat zorgt voor een verbreding van het voetpad, een betere circulatie en een herkenningspunt in de wijk. Een kleine voortuin aan de straatzijde maakt de overgang naar het gebouw zachter en creëert een plek voor toevallige ontmoetingen tussen ouders, kinderen en buurtbewoners. Deze drempelzone versterkt de publieke rol van het gebouw.
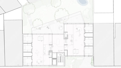
Op het gelijkvloers bevinden zich naast de inkom ook een buggyruimte, industriële keuken, sanitaire voorzieningen en een polyvalente zaal. Die laatste ruimtes zijn zo opgevat dat ze ook na de openingsuren van de crèche gebruikt kunnen worden door de buurt, zonder dat de rest van het gebouw toegankelijk is. Dankzij de slimme organisatie met gescheiden circulatie zijn gedeeld gebruik en veiligheid perfect combineerbaar.
Heldere opbouw, compacte footprint
Het programma is verticaal georganiseerd om de open ruimte op het terrein maximaal te vrijwaren. Op de tussenverdiepingen bevinden zich telkens twee leefgroepen met elk een eigen inkomzone, rustkamers, sanitaire cel en doorzonruimte met veel licht en directe toegang tot een privaat terras. De planopbouw is zo flexibel dat toekomstige aanpassingen eenvoudig mogelijk zijn.
Op de bovenste verdieping bevinden zich de personeelsruimtes. Die omvatten onder meer een refter met kitchenette, een vergaderzaal, wasruimte, vestiaires en opslag. De refter geeft uit op een terras met pergola en groendak, en vormt een rustige, aangename plek voor het team. De vergaderzaal is uitwisselbaar met een gelijkaardige ruimte op het gelijkvloers, waardoor het gebouw inzetbaar blijft voor wisselende behoeften.
Duurzaam materiaalgebruik en energie
BUROBILL en Wissel architectuur studio kiezen resoluut voor ecologie en circulariteit. De structuur bestaat uit hout, de isolatie is biobased, en alle technieken zijn fossielvrij. Regenwater wordt opgevangen en hergebruikt, de daken zijn begroeid en uitgerust met zonnepanelen, en een geothermische warmtepomp zorgt voor verwarming en passieve koeling. De ventilatie werkt via warmterecuperatie en CO₂-sturing, afgestemd op bezetting.
Ook binnenin heerst dezelfde duurzaamheidslogica. Er zijn robuuste, onderhoudsvriendelijke materialen zoals linoleumvloeren, HPL-meubilair en keramische tegels, gecombineerd met warme kleuren en houten accenten. De gevels worden bekleed met circulair materiaal en rusten op een betonnen sokkel die bestand is tegen stadsvervuiling. Alles is demonteerbaar opgevat, met een lange levensduur en lage milieu-impact.
Een tuin die mee opvoedt
De tuin achter het gebouw is niet zomaar groen, maar vormt een volwaardig speellandschap én leeromgeving. Het ontwerp voorziet een mozaïek van graszones, natuurlijke speelelementen, eetbare planten, een wadi en een gevarieerde beplanting met streekeigen bomen en kruiden. Verhardingen zijn minimaal en waterdoorlatend, zodat het regenwater ter plaatse infiltreert.
Biodiversiteit is geen bijzaak: insectenhotels, nestkastjes en klimplanten maken deel uit van het educatieve luik. Kinderen leren er spelenderwijs over natuur, seizoenen, voeding en ecologie. De tuin is bovendien visueel aanwezig vanuit alle leefgroepen, waardoor binnen en buiten in elkaar overvloeien. In samenspraak met de groendienst kan ook gemeenschappelijk tuinieren overwogen worden.
Een kindvriendelijke en wijkgerichte typologie
De architectuur is leesbaar, licht en aangepast aan de schaal van jonge kinderen. De circulatie is logisch opgebouwd rond een centrale kern, met telkens korte looplijnen en heldere zichtlijnen. Zicht op het park, vlotte oriëntatie en natuurlijke lichtinval zorgen voor een rustgevende omgeving waarin kinderen zich veilig voelen en zorgverleners efficiënt kunnen werken.
Ook voor de wijk is het gebouw een meerwaarde. Door de crèche open te trekken naar de buurt en tegelijk een nieuw park te activeren, ontstaat een gedeeld stuk stad waar kinderen, ouders en bewoners elkaar vinden. De polyvalente rol van het gebouw maakt het inzetbaar voor sociale functies die vandaag misschien nog niet gekend zijn, maar zich in de toekomst kunnen aandienen.
Logica en flexibiliteit in structuur
De structuur van het gebouw is rationeel en toekomstgericht. Kleine overspanningen worden gebruikt voor gesloten functies zoals slaapkamers of sanitair, grotere voor leefgroepen en polyvalente ruimtes. De draagstructuur laat toe dat de indeling op termijn aangepast wordt zonder structurele ingrepen. Enkel de assen zijn dragend, wat het gebruik en hergebruik vergemakkelijkt.
De vloeren lopen parallel aan de gevels, wat ook de gevelindeling vrij houdt. Daardoor kunnen openingen in de toekomst worden aangepast naargelang het programma. De combinatie van structurele helderheid, modulariteit en beperkte materiaalimpact maakt van dit project een toonbeeld van circulair en adaptief bouwen, ook op kleine schaal.
Deel van een grotere transformatie
Het project maakt deel uit van het Duurzame Wijkcontract Jacquet, waarin publieke ruimte, mobiliteit en sociale voorzieningen samen worden herdacht. De heraanleg van de Jean Jacquetstraat voorziet in ontharding en vergroening, met meer ruimte voor voetgangers en zachte mobiliteit. Het kinderdagverblijf versterkt die ambitie door het ontbreken van parkeerplaatsen en een sterk landschappelijk ontwerp.
Het gebouw volgt de korrel van de straat en sluit aan op de verschillende kroonlijntypes, maar creëert tegelijk een heldere hoekidentiteit. De voortuin en verbrede stoep vormen een logische overgang tussen straat en binnengebied, en verhogen het gebruikspotentieel van de publieke ruimte. Zo is het project ook stedenbouwkundig betekenisvol.
 
			 
                             
                             
                             
                             
                             
                             
                             
                             
										