Chazal School in Schaarbeek krijgt tweede huid die leren en landschap verbindt (MULTIPLE)

  • image
  • image
  • image
  • image
  • image
  • image
  • image
  • image
  • image
  • image
  • image
  • image
  • image
  • image
  • image

De renovatie van de Chazal School in Schaarbeek – een ontwerp van MULTIPLE Architecture & Urbanism – vertrekt van een helder maar ambitieus uitgangspunt: een verouderd schoolgebouw uit de jaren 1970 transformeren tot een hedendaags voorbeeld van energie-efficiëntie en ruimtelijke kwaliteit. Door niet te slopen maar te omhullen, kiest MULTIPLE voor een architectuur die voortbouwt op het bestaande en tegelijk nieuwe leercondities mogelijk maakt.

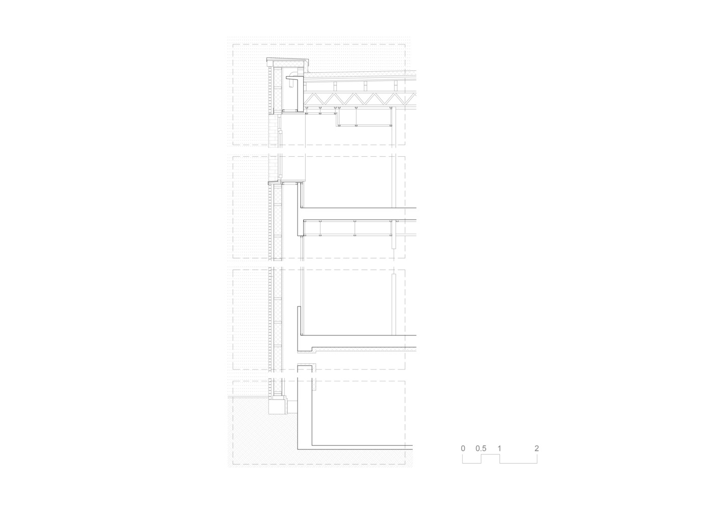
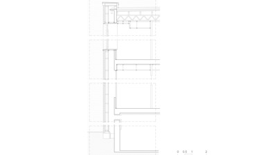
De Chazal School was een compact, niet-geïsoleerd volume dat decennialang onveranderd bleef. Verouderde technieken en een façade die niet meer voldeed aan hedendaagse comfortnormen maakten een ingreep noodzakelijk. In plaats van een klassieke renovatie ontwikkelde MULTIPLE een strategie die inzet op behoud, optimalisatie en precisie, met de bestaande gevel als vertrekpunt van het ontwerp.

Een energie-envelop als architecturale ingreep

Centraal in het project staat de toevoeging van een nieuwe energie-envelop rond het bestaande gebouw. Deze bestaat uit geprefabriceerde, geïsoleerde sandwichpanelen die de oorspronkelijke structuur volledig omsluiten zonder haar te vernietigen. Die aanpak beperkt de werfduur, reduceert afval en maximaliseert het hergebruik van de bestaande constructie.

De nieuwe schil is geen neutrale jas, maar reageert doelgericht op het programma erachter. Aan de straatzijde, waar vooral circulatiezones liggen, is de gevel meer gesloten om warmteverliezen te beperken, terwijl voldoende daglicht behouden blijft. Aan de speelplaats openen de gevels zich juist maximaal, zodat klaslokalen en kantoren kunnen profiteren van overvloedig natuurlijk licht.

Comfort en techniek als leerinstrument

Ook het interieur onderging een grondige maar gerichte update. Verouderde installaties maakten plaats voor energiezuinige en duurzame systemen, waaronder LED-verlichting, efficiënte warmteproductie en een dubbelstroomventilatiesysteem. Tegelijk werd sterk ingezet op akoestisch comfort, cruciaal in een leeromgeving waar concentratie centraal staat.

Deze technische ingrepen zijn niet louter ondersteunend, maar dragen actief bij aan de kwaliteit van het dagelijkse schoolleven. Ze verbeteren het binnenklimaat, verlagen het energieverbruik en maken van het gebouw zelf een didactisch voorbeeld van duurzame architectuur.

Een speelplaats als landschappelijk klaslokaal

Parallel met de gebouwrenovatie hertekende MULTIPLE ook de speelplaats, die voorheen bestond uit een verharde, monotone vlakte. Vandaag is ze een groen, doorlaatbaar en veelzijdig landschap waar water, bodem en beplanting zichtbaar en beleefbaar zijn. Regenwater wordt opgevangen via open goten en wadi’s, waardoor kinderen letterlijk leren hoe het watersysteem werkt.

Inheemse beplanting en diverse biotopen versterken de biodiversiteit en maken van de speelplaats een verlengstuk van het pedagogisch project. De buitenruimte fungeert niet alleen als plek voor ontspanning, maar ook als openluchtklas waar leren en spelen samenvallen.

Spel, beweging en verbeelding

Het ontwerp combineert gestructureerde spelelementen, zoals sportzones en reliëfs, met informele speelprikkels in de vorm van rotsen, boomstammen en beschaduwde tuinen. Die mix stimuleert uiteenlopende vormen van spel en nodigt uit tot beweging, verbeelding en sociale interactie tussen leerlingen van verschillende leeftijden.

Door de speelplaats als volwaardige ontwerpopgave te behandelen, versterkt MULTIPLE de relatie tussen gebouw en landschap. Binnen en buiten vormen samen één leeromgeving, waarin architectuur en natuur elkaar aanvullen. De renovatie van de Chazal School toont zo hoe een doordachte combinatie van energetische en landschappelijke ingrepen kan leiden tot een coherent en toekomstgericht geheel.

Bron MULTIPLE Architecture & Urbanism

  • Deel dit artikel

Onze partners