Circulair wonen met karakter: p&p Architectes en Atelier A4 hertekenen Vandeurenwijk in Elsene
In Elsene zijn de derde en vierde fase van de renovatie van de Vandeurenwijk voltooid. De Brusselse Gewestelijke Huisvestingsmaatschappij (BGHM) en BinHôme sloegen de handen in elkaar om deze sociale woonwijk uit de jaren 1920 te transformeren tot een hedendaags voorbeeld van duurzame, inclusieve en circulaire stadsontwikkeling. De architecturale leiding lag bij p&p Architectes en Atelier A4, die met respect voor het erfgoed én een scherpe blik op de toekomst het bestaande herinterpreteerden. Het project werd in 2019 bekroond met een Be.Exemplary-award en is sindsdien uitgegroeid tot een referentie voor publieke renovatieprojecten in het Brussels Gewest.
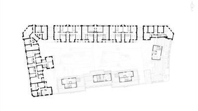
In deze renovatiefase werden zeven gebouwen aangepakt, goed voor 132 wooneenheden. De woningen zijn herverdeeld over een breed spectrum van studio’s tot appartementen met vier slaapkamers. Daarmee speelt het ontwerp in op een divers publiek: gezinnen, ouderen, alleenstaanden en personen met beperkte mobiliteit. De mix van woningtypes draagt bij aan de sociale diversiteit die kenmerkend is voor het Brusselse stadsweefsel. Tegelijkertijd investeerde men sterk in gemeenschappelijke infrastructuur die ontmoeting stimuleert. In de wijk zijn nu onder andere een polyvalente ruimte, een wassalon, een computerlokaal en een huiswerkschool ingericht. Het resultaat is een woonblok dat zich opent naar de buurt en inzet op samenleven.
Centraal in het geheel ligt de heraangelegde binnentuin, die met nieuwe paden, zitplaatsen en groenvoorzieningen is uitgegroeid tot een volwaardige verblijfsruimte. Deze tuin zorgt niet alleen voor ademruimte in een dense stedelijke context, maar bevordert ook de spontane interactie tussen bewoners. Waterinfiltratiezones, aandacht voor biodiversiteit en een doordacht afvalbeheer maken van deze buitenruimte bovendien een duurzame schakel binnen het geheel. De herwaardering van het binnengebied is exemplarisch voor de manier waarop het project inzet op leefkwaliteit, zowel binnen als buiten de muren van de woningen.
Circulair renoveren in de praktijk
De renovatie onderscheidt zich ook door haar consequente toepassing van circulaire principes. Het begon bij een selectieve deconstructie: bruikbare materialen werden ter plaatse gedemonteerd, gereinigd, gesorteerd en opgeslagen voor hergebruik. Zo kregen 813 vierkante meter cementtegels een nieuwe bestemming in gemeenschappelijke ruimtes als de polyvalente zaal en fietsenberging. Arduinen vensterbanken en schoorsteenmantels werden gerecupereerd en via een gespecialiseerde onderneming opnieuw in omloop gebracht. Het vloermateriaal — liefst 7.500 strekkende meter hout — werd manueel ontspijkerd, elders behandeld en opnieuw ingezet in dakconstructies en houten bergingen. Zelfs bakstenen uit de keldermuren vonden een nieuwe plek in de omheiningen rond het project.
Ook in de inrichting van de buitenruimtes en de afwerking van collectieve voorzieningen werd volop ingezet op gerecupereerde materialen. Dit alles maakt van Vandeuren een toonbeeld van circulair bouwen in de sociale huisvestingssector — geen abstract discours, maar een doorleefde aanpak die op elk schaalniveau voelbaar is. De werf fungeerde bovendien als opleidingsplek voor sociale economiebedrijven die actief zijn in de deconstructiesector. Zo werd ook op het vlak van werkgelegenheid en inclusie een concrete meerwaarde gegenereerd.
Erfgoed en energie hand in hand
De architecten gingen zorgvuldig om met het erfgoed van de wijk. De bestaande gevels werden gerestaureerd in hun oorspronkelijke staat, waardoor het historische karakter van de wijk behouden bleef. Tegelijk werden hedendaagse ingrepen niet geschuwd. Zo kreeg het voormalige kinderdagverblijf ‘Goutte de Lait’ een nieuwe invulling als polyvalente zaal, waarbij het ontwerp inspeelde op de culturele bestemming van het gebouw en tegelijkertijd een hedendaagse architecturale taal introduceerde. Het resultaat is een zorgvuldige balans tussen oud en nieuw, die het geheel fris en relevant houdt zonder de oorspronkelijke kwaliteiten te verloochenen.
De renovatie ambieerde bovendien hoge energieprestaties. De meeste woningen voldoen aan passieve of zeer lage energienormen. Groendaken, dubbele ventilatiesystemen en condensatieketels zorgen ervoor dat bewoners in een comfortabel en energiezuinig huis kunnen wonen, met lagere kosten en een kleinere ecologische voetafdruk. De combinatie van erfgoedzorg en energie-efficiëntie bewijst dat duurzame renovatie niet hoeft in te boeten aan karakter of kwaliteit.
Van voorbeeldproject tot Europees visitekaartje
Het project kostte bijna 28 miljoen euro en werd voor de helft gefinancierd door de BGHM. Daarnaast kwam er ook Europese steun via het FRR-programma (Recovery and Resilience Facility), goed voor ruim 10 miljoen euro. Die investering weerspiegelt zich niet enkel in het eindresultaat, maar ook in de brede uitstraling van het project. De Vandeurenwijk groeide uit tot een leerplek: tijdens de werf vonden er talloze bezoeken plaats van architecten, stadsplanners en beleidsmakers. De site werd gepresenteerd op het International Social Housing Festival in Barcelona en vormde mee de inspiratie voor toekomstige Brusselse renovaties.
Met deze ingreep hebben p&p Architectes en Atelier A4 een krachtig precedent geschapen voor hoe sociale huisvesting kan evolueren: duurzaam, inclusief, circulair én architecturaal verfijnd. De Vandeurenwijk bewijst dat een doordachte renovatie van bestaande structuren meer kan opleveren dan een nieuwbouwproject ooit zou kunnen: een wijk die haar verleden omarmt, maar tegelijk resoluut de toekomst instapt.
 
			 
                             
                             
                             
                             
                             
                             
                             
                             
                             
                             
                             
                             
                             
                             
                             
                             
                             
                             
                             
                             
                             
                             
										