Cohousing Dikken Eik van Havana architectuur: compact, collectief en geworteld in het groen

  • image
  • image
  • image
  • image
  • image
  • image
  • image
  • image
  • image
  • image
  • image
  • image

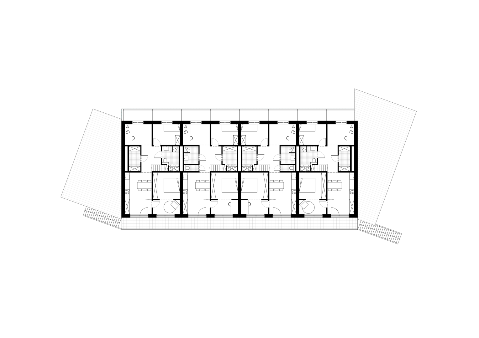
Op een wildgroeiend perceel in de Zandloperstraat in Mariakerke realiseert Havana architectuur voor wooncoop het coöperatief cohousingproject Dikken Eik. Het terrein, begroeid met spontane bosvorming, ligt in de 20ste-eeuwse rand van Gent. Om zoveel mogelijk bomen te behouden, werd de nieuwbouw zorgvuldig ingeplant op de plek van een voormalige zeepfabriek. Havana ontwierp een rechtlijnig en robuust gebouwvolume, dat betaalbaar wonen koppelt aan een sobere en efficiënte architecturale benadering. Op 19 juni geeft architect Tijl Vanmeirhaeghe toelichting bij het project tijdens de openingsavond van de Architectuurwijzer-expo Hier wil ik wonen! in het STAM in Gent.

Het project omvat acht wooneenheden, waarvan vier gelijkvloerse appartementen met twee slaapkamers. Deze zijn levensloopbestendig en identiek van opzet. Op de verdieping bevinden zich vier ruime duplexappartementen, ontsloten via een gemeenschappelijke galerij. In het ontwerp koos Havana voor gespiegeld geplande units met doorlopende scheidingswanden, eenvoudige overspanningen en functionele ruimtes. Elke woning beschikt over een eigen buitenruimte die aansluit op een grote, collectieve tuin – het hart van het project.

Flexibele woonvormen en gedeelde ruimtes

Een bijzonder aspect van Dikken Eik zijn de vier ‘studio’s’ die gekoppeld zijn aan de duplexwoningen. Deze zijn apart ontsloten en kunnen functioneren als semi-autonome units. Dankzij een eigen toegang en een afzonderlijke deur naar de badkamer kunnen ze ingezet worden als zorgunit, studentenkamer of gedeelde woningcomponent. Ook gebruik als atelier of praktijkruimte behoort tot de mogelijkheden. Zo ontstaat een flexibel woonmodel dat inspeelt op verschillende levensfasen en samenlevingsvormen.

De architectuur vertaalt de missie van wooncoop: collectief en duurzaam wonen betaalbaar maken. De bewoners delen niet alleen de tuin, maar ook binnenruimtes zoals een polyvalente leefkeuken, een zithoek met bibliotheek, een logeerkamer, een wasruimte en een tuinhuis. Sommige woningen bieden ruimte voor intensief samenhuizen, terwijl andere eerder individueel functioneren. Het resultaat is een gelaagde sociale structuur waarin gezinnen, alleenstaanden en zorgbehoevenden samenleven met behoud van autonomie.

Zorg voor natuur en verbinding met de buurt

De collectieve geest van Dikken Eik vertaalt zich ook in het beheer en de invulling van de buitenruimte. De bewoners hechten veel belang aan biodiversiteit. Er wordt bewust gekozen voor inheemse planten, er zijn geen pesticiden toegestaan, en huisdieren worden geweerd om ruimte te laten voor de aanwezige fauna. Het terrein biedt onderdak aan egels, eekhoorns en tal van vogels. Met deze ingrepen ambieert de groep een zorgzame relatie met de natuur en een ecosysteemvriendelijke leefomgeving.

Ook de relatie met de bredere buurt krijgt aandacht. De bewoners willen via wandel- en fietspaden de site fysiek openstellen, en zoeken uitwisselingen met buren. Zo is er sprake van gedeeld kippenhouden, het openstellen van de gemeenschappelijke keuken of het gebruik van het naburige zwembad. Door het autogebruik te beperken en in te zetten op deelmobiliteit, wil de groep niet alleen de eigen leefkwaliteit verhogen, maar ook een positieve impact hebben op de omgeving. Tot slot kiest Dikken Eik ook op technisch vlak resoluut voor duurzaamheid, met onder meer zonnepanelen, geothermie en ventilatie met warmterecuperatie.

Bron Havana architectuur & wooncoop

  • Deel dit artikel

Onze partners