DDS+ levert met Bervoets duurzaam project op met 38 lichtrijke woningen in Vorst

  • image
  • image
  • image
  • image
  • image
  • image
  • image
  • image
  • image
  • image
  • image
  • image
  • image
  • image
  • image
  • image

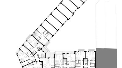
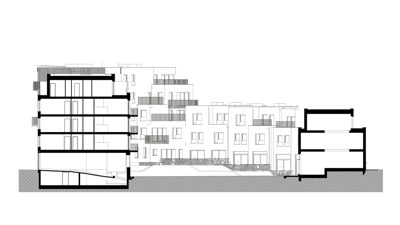
De Zuiderhaard en de Brusselse Gewestelijke Huisvestingsmaatschappij (BGHM) hebben recent de officiële inhuldiging gevierd van 38 nieuwe sociale woningen en de toekomstige lokalen van vzw Lire & Ecrire. Het project Bervoets, gelegen in de Marguerite Bervoetsstraat in Vorst, is een van de talrijke sleutel-op-de-deur aankopen van de BGHM en werd ontworpen door het Brusselse architectenbureau DDS+.

Het project Bervoets is gelegen in een voormalige industriële wijk in volle ontwikkeling vlak bij het Gemeentehuis en de site van de Abdij van Vorst. Het wordt geïntegreerd op de site van verlaten en vervallen opslagplaatsen en werkplaatsen, in een driehoek gevormd door de Brandstoffenstraat, Texasstraat en Marguerite Bervoetsstraat. De wijk is goed bereikbaar met het openbaar vervoer en er zijn heel wat winkels in de buurt.

De afgelopen jaren is er een groot aantal sociale woongebouwen gerenoveerd of ontwikkeld in Laag-Vorst, dat in volle groei is. Met dit sleutelklare project van 38 woningen breiden de BGHM en de Zuiderhaard hun patrimonium verder uit met energie-efficiënte woningen van hoge kwaliteit die een antwoord bieden op de uitdagingen van de klimaatverandering, het energieverbruik en het comfort van de bewoners.

 

Mix van woningen

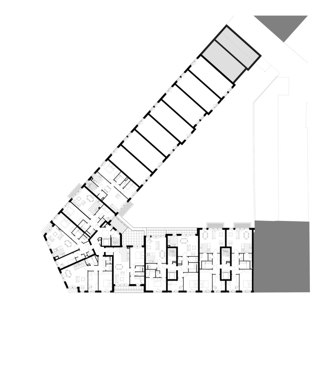
De 38 sociale woningen van het project Bervoets zijn onderverdeeld in een gebouw met 31 appartementen en 7 eengezinswoningen. Het project omvat ook 45 fietsparkeerplaatsen en 25 parkeerplaatsen voor auto's en motoren.

De meeste woningen hebben twee slaapkamers, maar we vinden binnen het project ook studio’s, 1-slaapkamerappartementen en huizen met drie of vier slaapkamers terug. Op die manier wordt zo goed mogelijk rekening gehouden met de woonbehoeften van zowel alleenstaanden als gezinnen.

 

Gemeenschappelijke groene ruimte

De woningen zijn ruim, licht, functioneel en gemakkelijk in te richten. Alle woningen hebben een buitenruimte, met ten minste één balkon of terras en een eigen tuin voor alle woningen op de benedenverdieping. Alle appartementen hebben ook een kelder.

De hele site heeft een open en groen karakter, met een grote gemeenschappelijke groene ruimte. Deze ruimte, bestaande uit binnenplaatsen en een tuin, vormt het middelpunt van het project en is rechtstreeks toegankelijk voor alle woningen. Het regenwater van de daken zal gedeeltelijk worden opgevangen in een regenput en voor het onderhoud van deze groene ruimten worden gebruikt.

 

Meerwaarde voor de wijk

Het architecturale ontwerp is hedendaags, zowel wat de materialen als de volume-indelingen en gevelinsprongen betreft. De gebouwen voldoen aan hoge energieprestatienormen. Ze zijn zeer goed geïsoleerd en verbruiken daardoor weinig energie, wat een voordeel is voor nieuwe huurders in deze tijden van energie- en klimaatuitdagingen.

Brussels Staatssecretaris voor Huisvesting Nawal Ben Hamou is opgetogen dat een ambitieus project als Bervoets gerealiseerd kon worden: “Dit toont de relevantie aan van ons antwoord op de huisvestingscrisis in Brussel: we bieden veelzijdige oplossingen, waaronder sleutelklare aankopen en publiek-private samenwerkingen. Met zijn grote kwaliteit op esthetisch, praktisch en energievlak, is het project Bervoets een goed voorbeeld van wat we wilden bewijzen tijdens deze legislatuur: onze projecten zijn niet enkel bakstenen, maar bieden een echte meerwaarde aan de hele wijk.

Bron BGHM

  • Deel dit artikel

Onze partners