De aanpasbare stad: masterplan groenblauwe woonas in Sint-Gillis-Waas

  • image

“Onze steden en dorpen hebben een erg verouderd woningpatrimonium. Om demografische evoluties te volgen zoals de stijging van de bevolking, een toenemende vergrijzing en gezinsverdunning moeten er de komende jaren in België elk jaar 30.000 extra wooneenheden bijkomen. Om een antwoord te bieden op de nood aan kwalitatieve woningen, zullen we eerder moeten kijken naar het reorganiseren van het bestaande patrimonium en het voorzien in alternatieve woonvormen, in plaats van ze allemaal nieuw te gaan bouwen. We moeten daarbij op zoek gaan naar kwaliteitsvolle en toekomstbestendige architectuur op maat en op schaal van het dorp.” Dat schrijven Eva Heuts (VIBE) en Erik Grietens (Bond Beter Leefmilieu) in het zopas gepubliceerde voorbeeldenboek 'Stedenbouw kan ook zo'. Daarin verzamelen ze zeven voorbeeldprojecten van 'De aanpasbare stad'. Het masterplan voor een groenblauwe woonas langs de Blokstraatbeek in Sint-Gillis-Waas, is er één van. Atelier Romain tekende het ontwerp.  

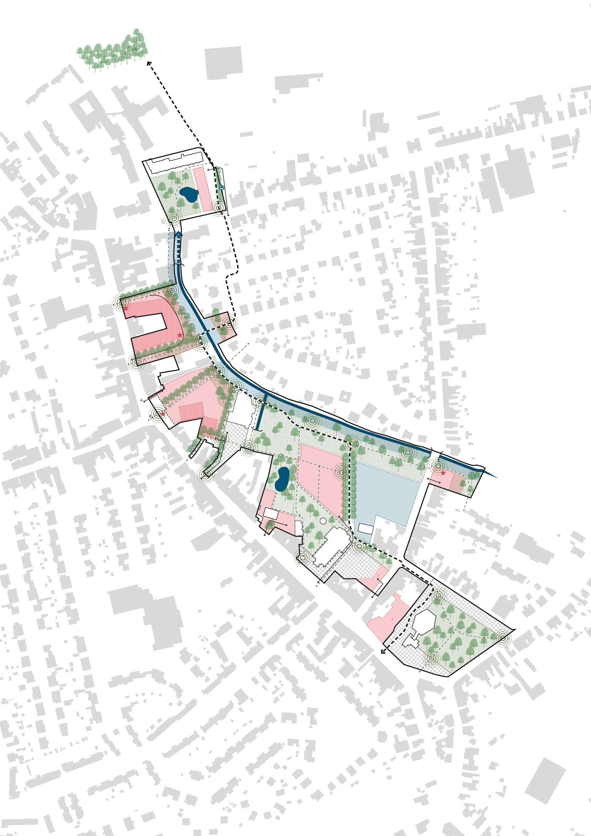
Kort na de start van de bestuursperiode in 2019 werd het gemeentebestuur van Sint-Gillis-Waas geconfronteerd met vijf aanvragen voor grootschalige bouwprojecten in het centrum van het dorp. Het gemeentebestuur zag hier een uitgelezen kans om vorm te geven aan een klimaatbestendige verdichting en kernversterking, gestructureerd rond een groenblauwe as – de Blokstraatbeek – die vandaag weggemoffeld is in de achterkanten van het dorpscentrum. Het totale gebied is 1,2 kilometer lang en gemiddeld 300 meter breed.

Het masterplan past de ‘strategie van de twee netwerken’ toe. Dat is een ruimtelijke aanpak waarbij het waternetwerk drager is van de groene vingers en het verkeersnetwerk drager van de stedelijke lobben. Het masterplan voorziet parallel aan de Kerkstraat een blauwgroene recreatieve as langs de Blokstraatbeek. De twee netwerken vormen de ruggengraat voor de verdere vernieuwing en invulling van de dorpskern.

De gemeente zal het masterplan consequent volgen in de gesprekken met projectontwikkelaars en bij de beoordeling van vergunningsaanvragen, ook al is het geen juridisch bindend plan met gedetailleerde voorschriften. Het masterplan zet de algemene principes uit waaraan een project moet voldoen. Het is aan de ontwikkelaar en de architecten om het om te zetten in concrete plannen voor elke specifieke site.

 

WIN EEN BOEK

Benieuwd naar meer? Deze tekst is een fragment uit 'Stedenbouw kan ook zo', het voorbeeldenboek dat VIBE zopas lanceerde in samenwerking met Bond Beter Leefmilieu, KU Leuven, VRP, ABLLO en Samenhuizen. Dit boek is geen analyse van wat er allemaal fout loopt. Het is een voorbeeldenboek: het toont aan dat het anders kan. Want ondanks de vele problemen bestaan er ook beloftevolle oplossingen. Dat bewijzen de 57 voorbeelden die in het boek zijn opgenomen, samengebracht rond zes centrale thema's: de participatieve stad, de natuurlijke stad, de verbonden stad, de aanpasbare stad, de circulaire stad en de inclusieve stad. Architectura mag de komende weken één project per thema publiceren. 

Het boek is te koop via uitgeverij Public Space, in de boekhandel en online. Architectura mag vijf exemplaren wegschenken van het boek. Laat ons weten via info@architectura.be waarom dit boek jouw architectuurpraktijk kan inspireren en wie weet win je een van de vijf exemplaren. 

Bron VIBE, Bond Beter Leefmilieu

  • Deel dit artikel

Onze partners