de Jong Gortemaker Algra vernieuwt stedelijke basisschool Hofstade

  • image
  • image
  • image
  • image
  • image
  • image

De stedelijke basisschool 't Hofje in Hofstade zal vanaf dit jaar een grondige transformatie ondergaan. Het ontwerp van de Jong Gortemaker Algra omvat een samenspel van nieuwbouw en oudbouw. Het studiebureau DWA zorgt voor installatie- en energieadvies bij het project.

Bestaand en nieuw

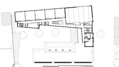
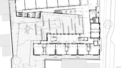
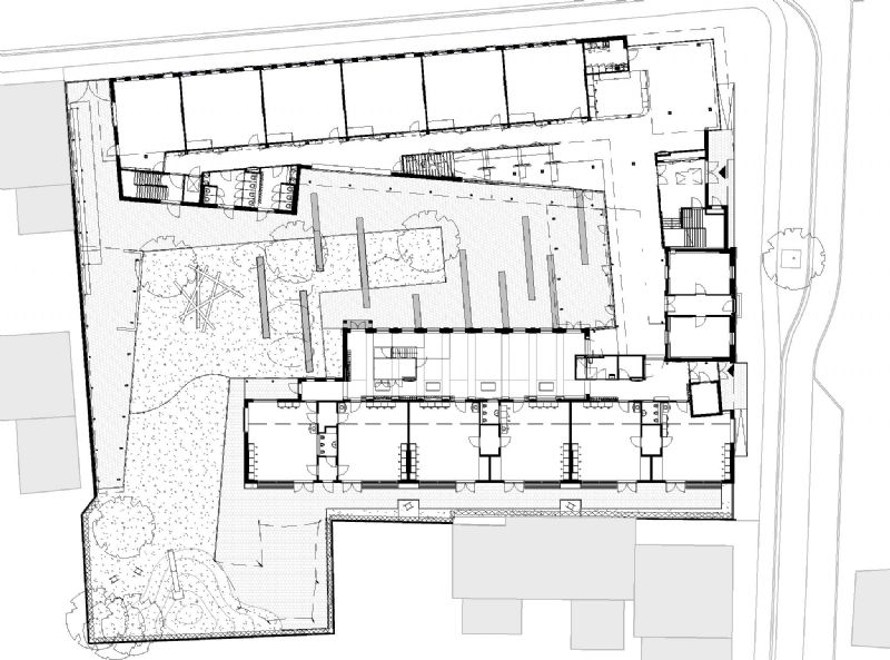
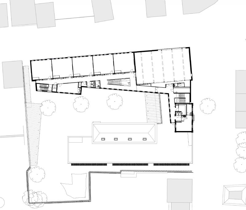
Het architectenbureau zorgt voor een vervanging van het huidige schoolcomplex op de site door een nieuwbouw, bestaande uit zes kleuterklassen, tien klassen lagere school en een turnzaal. De plannen behouden echter het oudste gedeelte van het bestaande schoolgebouw, daterend van 1867, waartoe de vroegere directeurswoning (nu gekend als het schoolhuis) en de turnzaal behoren. De school volgt nagenoeg de bestaande rooilijnen aan de straatkanten en is georganiseerd om een speelplaats. De bestaande, te renoveren gebouwen vloeien samen met de nieuwbouw tot de nieuwe school.

De integratie van bestaand en nieuw komt dus sterk naar voren, waarbij het karakter van de oudbouw de kwaliteit van de binnen- en buitenruimte versterkt. Bovendien sluit zowel de compositie van volumes op de site als het gebruik van verschillende materialen aan bij de schaal van de omgeving. Zo komt de identiteit van de school, waarin openheid en kindvriendelijkheid voorop staan, tot uitdrukking in de transparantie naar het binnenhof en in de aandacht voor daglicht. Een podiumtrap tussen de twee verdiepingen versterkt die ruimtelijke en open verbinding. Daarnaast vormt de gerenoveerde turnzaal, ter plaatse van de kleuterlokalen, een gemeenschappelijke speelruimte voor de kleuters.

Traditioneel en duurzaam

Op vlak van materialisatie ligt de nadruk op contrastwerking, wat de aanwezigheid en de combinatie van oud en nieuw naar voren brengt. Zo komen overwegend traditionele materialen aan bod die passen bij de omgeving, zoals houten en aluminium kozijnen, en metselwerk in twee kleuren. Ook voor de beide entrees, links en rechts van de directeurswoning, is een houten gevelbekleding voorzien. Bovendien controleert een duurzaamheidsmeter tijdens het ontwerpproces op tien duurzaamheidsambities: inplanting, mobiliteit, milieu, water, grondstoffen en afval, energie, gezondheid, leefbaarheid en toegankelijkheid, samenleving en economie. De verwachte einddatum van het gehele project is vastgelegd op 2016.

  • Deel dit artikel

Onze partners