Contactformulier

FVWW architecten

De Zeevlam: sociaal woonproject met oog voor architecturale harmonie (FVWW)

  • image
  • image
  • image
  • image
  • image
  • image

Aan de Nieuwpoortsesteenweg in Oostende, op een plek waar de verschillende woongezichten van het Westerkwartier samenkomen, komt binnenkort het sociale woningbouwproject De Zeevlam. Dit project, ontworpen door FVWW architecten in opdracht van Woonsprong, zal bestaan uit zes nieuwe wooneenheden en vormt een belangrijke toevoeging aan de sociale huurmarkt in de stad. Het ontwerp speelt in op de context van de buurt en het naastgelegen hoekpand Harlekijn, eveneens een ontwerp van FVWW, om een harmonieus geheel te vormen.

De Zeevlam zal verrijzen op een perceel waar nu nog oude bebouwing staat en zal aansluiten bij de karakteristieken van de Nieuwpoortsesteenweg. Met respect voor de schaal en structuur van de buurt neemt het gebouw de bouwhoogte en terugsprong van Harlekijn over, terwijl het zich naar de Goedheidstraat toe geleidelijk verlaagt tot een bescheiden volume met één bouwlaag en een extensief groendak. Deze ingreep garandeert de privacy en lichtkwaliteit van de naastgelegen woningen en versterkt tegelijk de kleinschaligheid en het domestieke karakter van het Westerkwartier.

Frisse uitstraling

Qua vormgeving en materialisatie bouwt De Zeevlam voort op de stijl van Harlekijn. FVWW kiest voor een sobere, verfijnde baksteenarchitectuur in genuanceerd wit met een subtiele gele schijn, een kleur die vertrouwd oogt in een kustomgeving. Contrasterende groene accenten in de plint, kroonlijst en rollagen geven het gebouw een speelse en frisse uitstraling. De ramen, uitgevoerd met witte vaste delen en zwarte opengaande delen, zullen door het kleurcontrast de slanke visuele proporties versterken.

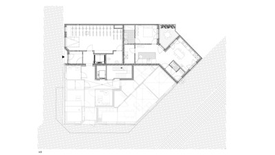
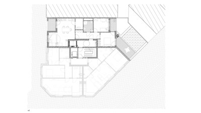
Het project zal vijf appartementen langs de Nieuwpoortsesteenweg omvatten en een autonome gelijkvloerse woning in de Goedheidstraat. De appartementen delen een circulatiekern met Harlekijn, wat efficiënt ruimtegebruik mogelijk maakt. Van de zes wooneenheden zijn er drie van het type 2/3 (met twee slaapkamers) en drie van het type 1/2 (met één slaapkamer). Dankzij een heldere planfiguur, met gestapelde sanitaire kernen en een kostenbewuste draagstructuur, wordt een efficiënte en functionele indeling gegarandeerd.

Hoogwaardige materialen

Duurzaamheid staat centraal in het ontwerp. Door complexe bouwkundige knopen te vermijden en optimaal gebruik te maken van de bestaande trapkern van Harlekijn, ontstaat er meer budgetruimte voor hoogwaardige materialen en energiebesparende systemen. Dit draagt niet alleen bij aan lagere onderhoudskosten maar ook aan het wooncomfort van de toekomstige bewoners.

Met De Zeevlam zet FVWW architecten een volgende stap in het ontwikkelen van kwalitatieve sociale woningen in Oostende. Het ontwerp slaagt erin om enerzijds aan te sluiten bij de bestaande buurtstructuur en anderzijds te voldoen aan hedendaagse noden op het vlak van duurzaamheid en betaalbaar wonen. Het project belooft een gebouw te worden dat functioneel en efficiënt is, maar tegelijk ook harmonieus deel uitmaakt van het architecturale verhaal van het Westerkwartier.

Bron FVWW

  • Deel dit artikel

Onze partners