dmvA architecten transformeert buurtschooltje in Rijmenam tot collectief woonproject De Mart
In het landelijke Rijmenam herbestemt dmvA architecten een voormalig buurtschooltje uit de late 19e eeuw. Wat ooit een bescheiden schoolcampus was, wordt binnenkort een modern en duurzaam woonproject met 13 woningen en appartementen, ingebed in een groene omgeving. Door een zorgvuldige reconversie van het bestaande gebouw en de toevoeging van een hedendaags volume, slaagt dmvA erin om de historische identiteit van de plek te behouden en tegelijkertijd eigentijdse woonkwaliteit te bieden.
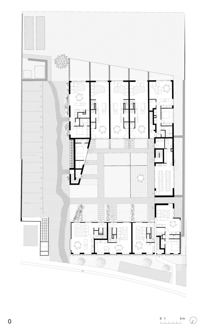
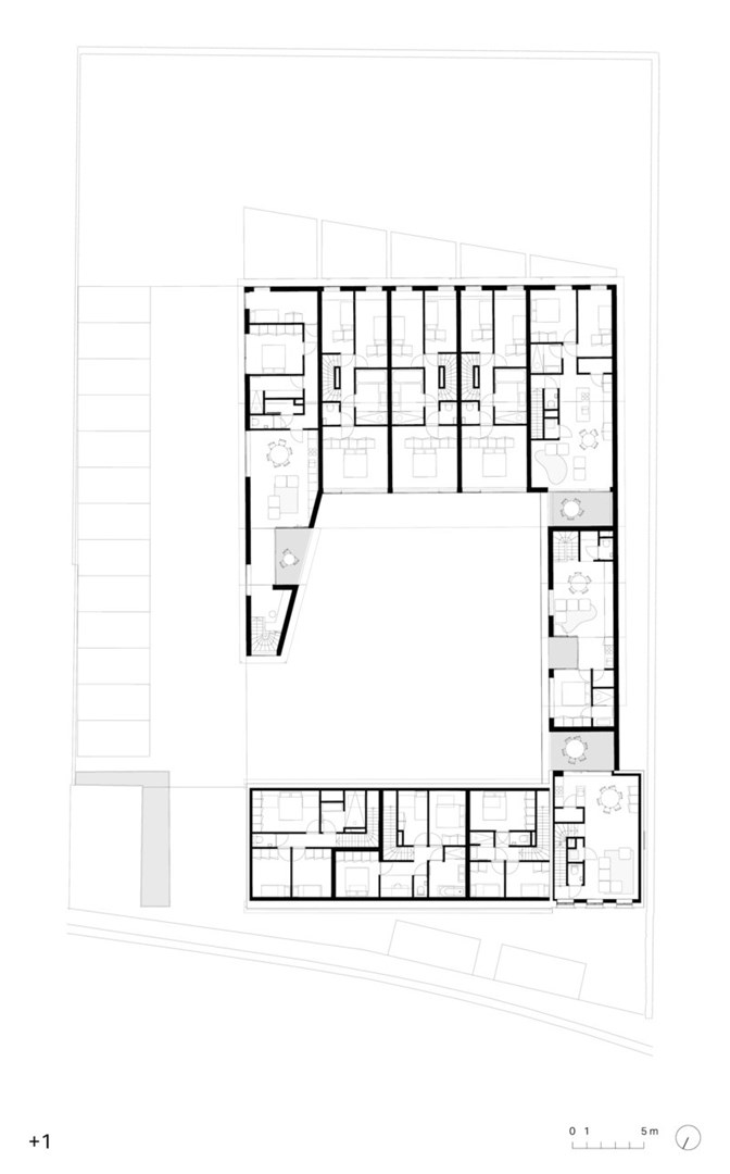
Het oorspronkelijke schoolgebouw en de directeurswoning blijven grotendeels behouden en worden herbestemd tot woningen. Aan de bestaande structuur wordt een L-vormig nieuwbouwvolume toegevoegd, waarin zowel woningen als een gemeenschappelijke ruimte ondergebracht zijn. Het zadeldak van de nieuwbouw sluit aan bij de vormentaal van de school en zorgt voor een harmonieus geheel. De inplanting van de gebouwen creëert een centraal woonerf dat het kloppende hart van de site vormt.
BEN 20-label
Dit woonerf, geïnspireerd op de typologie van een vierkantshoeve, bevordert het samenleven tussen de bewoners. Een lusvormig pad verbindt alle woningen en omkadert de gemeenschappelijke ruimte, die is uitgerust met onder meer een keuken, een wasplaats en een sauna. Op de verdieping zijn er polyvalente ruimtes die kunnen dienen als co-workingplek of logeerkamer. In de tuin worden een petanquebaan en andere ontspanningsvoorzieningen geïntegreerd, waaronder een infraroodcabine en een jacuzzi.
Duurzaamheid speelt een sleutelrol in het project. De woningen voldoen aan het BEN 20-label en zijn daardoor bijzonder energiezuinig. Zonnepanelen voorzien de gemeenschappelijke delen en private wooneenheden van elektriciteit, terwijl een uitgekiend waterbeheer met een wadi en groene infiltratiezones bijdraagt aan een ecologisch verantwoord landschap. De autoluwe opzet en oplaadpunten voor elektrische wagens en fietsen sluiten aan bij een toekomstgerichte mobiliteitsvisie.
Historische gelaagdheid
Een belangrijk uitgangspunt bij de ontwerpbeslissingen was de balans tussen collectiviteit en individualiteit. De bewoners genieten enerzijds van de voordelen van een collectief opgezet project, met gedeelde faciliteiten en buitenruimtes, maar behouden tegelijkertijd hun eigen private wooncomfort. Het woonerf en de gemeenschappelijke zones nodigen uit tot interactie zonder de nood aan privacy uit het oog te verliezen.
Door de integratie van het oude schoolgebouw blijft de historische gelaagdheid van de site behouden. De Mart herinnert zo niet alleen aan haar verleden als buurtschool, maar vertaalt ook de kernwaarden van die plek – samenkomst, ontmoeting en gedeelde ruimte – naar een eigentijdse woonvorm.
 
			 
                             
                             
                             
                             
                             
                             
                             
                             
										 
										 
										 
										 
										