Dossier Gemeenschapscentra: De Marc/kt te Merksplas
N.a.v. de publicatie van de Vlaams Bouwmeester rond Gemeenschapscentra, nemen we u deze week mee naar gemeentecentrum ‘De Marc/kt’ in Merksplas, een ontwerp van het Antwerpse bureau Planners.

‘De Marc/kt’: een gemeenschappelijke publieke ruimte
Het Gemeenschapscentrum de Marc/kt in Merksplas is een knap gebouw met een treffende naam. Met evidente, alledaagse middelen weet het iets merkwaardigs te bereiken: het creëert een leefbare en helder geformuleerde
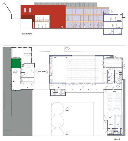
publieke ruimte. Door zijn inplanting heeft het een plein gevormd in een dorp dat voordien geen echt plein had. En dat plein loopt bovendien haast spontaan door tot in het nieuwe gebouw. Het gebouw is letterlijk doorwaadbaar. De straat loopt er gewoon door. Omgekeerd loopt het gebouw ook door in het plein. De foyer, eigenlijk een extra brede gang waar de grote zaal op het gelijkvloers op uitgeeft, heeft extra brede glazen deuren die uitgeven op het nieuwe plein.
Verwevenheid met de omgeving
Van op het plein bekeken is de gevel, met zijn drie niveaus en zijn stroken glas een soort bühne, een decor van het openbare leven. Op de eerste verdieping huist de bibliotheek, daarboven liggen de vergaderlokalen voor het verenigingsleven. Telkens loopt een brede gang, noem het een foyer, voor de ramen. Vanaf het plein zie je mensen na vergaderingen of voorstellingen (voorstellingen die nadrukkelijk wel uit beeld blijven: zo radicaal is de openheid
Echter nog niet) bijkletsen rond diverse tafeltjes. De rechterbovenhoek van het gebouw is een glazen doorkijkdoos. Burgers zijn hier als het ware als acteurs die figureren op het plein. Beneden in de zijvleugel tenslotte is bovendien een café gehuisvest. Ook daardoor vormt het plein een uitnodigend en levendig terras, een ‘markt’.

Nadruk op het verenigingsleven
Net als in Loker (zie ons eerder artikel hieromtrent), legde het gemeentebestuur in de open oproep vooral de nadruk op ‘ontmoeten’ en op het ‘verenigingsleven’ van de gemeente. De architectuur moest ‘laagdrempelig’ en ‘open’ zijn, een ‘vrijblijvende’ en ‘ongedwongen’ sfeer uitstralen. Ze moest ‘eten en drinken’ toestaan, recepties en kookateliers, vergaderingen en feesten. Het moest een gebouw worden ‘op maat van Merksplas’. Net daarom heet de Marc/kt een ‘gemeenschapscentrum’, en niet een ‘cultuurcentrum’. De‘levende volkscultuur’ is de eigen cultuur van het eenvoudige dorp. Ze hoort thuis op de markt: op het utopische marktplein is iedereen acteur, er is geen beknellend onderscheid tussen hoge en lage cultuur, het volk is er zichzelf, iedereen praat, danst, zingt, drinkt en eet er broederlijk naast en met elkaar. Alles is er publiek. Helemaal anders dan in een Cultuurpaleis waar de toeschouwer voor het gesloten theaterdoek keurig wacht op de voorstelling.

Een nieuw ‘centrum’ voor het dorp
De architecten, het jonge bureau Planners uit Antwerpen, deden bij de wedstrijd van de Open Oproep een gewaagde zet. Ze hielden zich niet aan de opgave. Planners stelde niet in de eerste plaats een nederig en bruikbaar gebouw voor, maar een ruimtelijk concept om een probleem op te lossen dat de gemeente zelf pas ervoer nadat ze erop gewezen was: Zij vonden dat hier geen echt centrum was: voor de kerk ligt een amorfe open ruimte die als parkeerplaats dienst
doet, voor het gemeentehuis verderop ligt meer parkeerplaats. Het ‘centrum’ was niet veel meer dan een uitwaaierend kruispunt van steenwegen.

De gemeente plande het cultuurcentrum aanvankelijk in een binnengebied temidden van een bouwblok even weg van het centrum; Planners presenteerde daarentegen een gebouw op een open ruimte pal naast het gemeentehuis. De architecten argumenteerden dat de gemeente twee keer langs de kassa zou passeren. Het perceel dat ze eerst voorzien hadden, kon ze te gelde maken voor andere bebouwing. En door de leegte in te vullen naast het gemeentehuis, kreeg Merksplas voor het eerst een marktplein. De Marc/kt heeft Merksplas dus zowel symbolisch als functioneel een centrum gegeven. Het gemeenschapscentrum herdefinieert op die manier de publieke ruimte door er zelf middenin te gaan staan. Enerzijds verhoudt het gebouw zich enigszins beschermend ten opzichte van de basisschool die er net achter ligt – de passage door het gebouw functioneert als een schuilplek. Anderzijds tempert het ook de stuursheid van het formele gemeentehuis en creëert een gemoedelijke zij-ingang. Het komt dan ook niet geforceerd over dat het gemeenschapscentrum veel en erg uiteenlopende openbare functies samenbrengt: aan de ene kant van de binnenstraat heeft de wijkpolitie een kantoor, Kind en Gezin kreeg een consultatieruimte, de toeristische dienst houdt een loket open en de gemeentelijke administratie heeft er een nieuwe publiekstoegang. Aan de overkant van de binnenstraat liggen de bibliotheek, foyers, grote zaal, vergaderzalen en ateliers. Een loopbrug boven de straat ter hoogte van de eerste verdieping verbindt de twee werelden. Op vele manieren is het dus een toegankelijk, ‘publiek’ gebouw geworden.

Projectgegevens:
Open Oproep 0309
Bouwheer Gemeentebestuur Merksplas
Ontwerp Planners
Budget 3,5 miljoen é (exclusief btw en ereloon)
Status uitgevoerd
In het ‘Dossier Gemeenschapscentra’ worden diverse voorbeelden toegelicht. In de komende weken brengen we u op Vlaamsearchtectuur.be een vervolgreeks waarin telkens één project uit dit dossier zal belicht worden.